查看完整案例

收藏

下载
场地 Context 项目改造的原建筑的历史可以追溯到 1895 年,苏州苏纶场当时由两江总督兼南洋通商大臣张之洞创办,原建筑名字为苏纶纱厂,前身是苏州第一家现代化的纺织工厂。原建筑在 20 世纪经历了多次扩建和改造之后,纱厂最终在 2005 年宣告破产。2012 年,此处整个园区里的所有建筑都经历了一个完整的改造,整体转型成为一个城市商业综合园区进行使用。© Atelier IN The history of the original building in this project dates back to 1895, when the Suzhou Silk Spinning Factory was founded by Zhang Zhidong, the Governor of Liangjiang and the Minister of the Nanyang Trade. It was the first modern textile factory in Suzhou. The original building underwent multiple expansions and renovations throughout the 20th century before the factory was declared bankrupt in 2005. In 2012, a comprehensive renovation was carried out across the entire industrial park, transforming it into a mixed-use urban commercial complex.
▼MARUS COFFEE 前立面,MARUS COFFEE facade© 陈逸帆
苏州这个城市原本地域建筑的特性是鲜明的,我们将园林建筑中的“亭”“廊”“景”等三大元素,抽象出空间本质之后,想去与原建筑本身自带的一些属性去进行结合。原建筑底层有一排隐形存在的柱廊,2012 年的那次改造将原本的柱廊弱化,立面均被玻璃幕墙封闭上,从而划分出了清晰的室内室外空间。
Suzhou, as a city, has distinctive regional architectural characteristics. We abstracted three key elements from traditional garden architecture—“pavilions,” “corridors,” and “views”—and sought to combine these elements with the inherent attributes of the original building. The lower floor of the original structure contained a row of hidden columned corridors, which were downplayed in the 2012 renovation, and the facades were enclosed with glass curtain walls, thereby clearly separating the interior and exterior spaces.
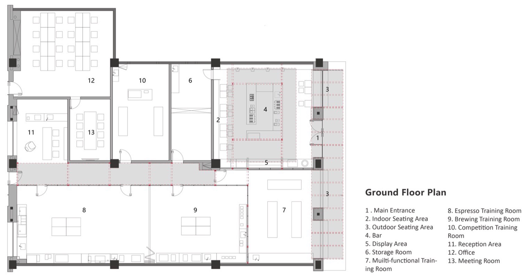
▼MARUS COFFEE 平面图,MARUS COFFEE Plan© Atelier IN
▼MARUS COFFEE 立面分析图,MARUS COFFEE elevation analysis drawing© Atelier IN
所以我们在拿到原始图纸后的第一件事,是想要去回应最初因诸多原因而消失掉的柱廊和留存于立面的灰空间。我们的原始出发点是还原立面本该存在那一个灰空间,但是未经转译的空间性还原显得些许直白与傲慢。最终在对比多个方案之后决定以下图的方式去放置一个“亭”。原先的玻璃幕墙被替换成为了镀锌板,柱子以嵌入的方式去呈现,而倾斜挑出的屋顶在向外为客人或路人提供灰空间的同时,也让一层底商在立面上的呈现状态从最初沿街的廊道延展成为嵌入整个楼体的体块,也就是所谓的“房子”。
Therefore, the first task upon receiving the original drawings was to respond to the columned corridors that had disappeared for various reasons and the residual “gray space” on the facade. Our initial approach was to restore the gray space that should have existed on the facade, but this direct restoration of the space felt somewhat simplistic and imposing. After comparing multiple proposals, we decided to use the following design approach, illustrated in the axonometric view, to place a “pavilion.” The original glass curtain walls were replaced with galvanized steel panels, and the columns were presented in an embedded manner. The inclined, cantilevered roof not only provides gray space for visitors or passersby but also transforms the commercial spaces on the ground floor, extending the facade from the original street-side corridor into a volume embedded within the building, thus forming what we call the “house.”
▼MARUS COFFEE 前入口屋檐,MARUS COFFEE Front entrance eaves© Atelier IN
亭
Pavillion
亭中的“驻足”|Lingering in the pavilion
所谓“亭”,被定义为有屋顶,屋顶之下不完全封闭的一种带有欢迎人停留属性的一种建筑物。我们在整体空间中置入了两个不同属性的“亭”。第一个是从立面向外延伸的斜屋面,实际并未切断于立面,而是斜插在立面之上,在室内能够感知到斜屋顶的穿插关系。这个未被切断的斜面在纯粹的符号性上便与墙面装饰脱离,使其成为了一个即是立面本身,也是抽象意义上的“亭”,具有了属于亭的空间性。
The so-called “pavilion” is defined as a structure with a roof, where the space beneath the roof is not fully enclosed, and it has an inviting quality that encourages people to linger. As shown in the diagram, we have incorporated two pavilions with different characteristics into the overall space. The first pavilion is an inclined roof that extends outward from the facade. It does not detach from the facade but instead slopes over it, creating an interplay between the inclined roof and the interior space. This undetached inclined surface, in its pure symbolism, distances itself from the decorative elements of the wall, transforming it into both a part of the facade and, in an abstract sense, a “pavilion,” thus giving it a pavilion-like spatial quality.
▼亭与廊的表达,paviliondiagram© Atelier IN
亭中的“表演”|Performance in the pavilion
第一个“亭”是关于场地的,第二个“亭”则是聚焦于咖啡师与客人之间的状态。“亭”中通过围合的吧台,将“亭”屋檐下的空间分成了两个部分,一部分空间是属于咖啡师的,一部分空间是属于客人的。居中布置的回型吧台是属于咖啡师的一方天地,可以理解为是属于咖啡师的表演“舞台”,能够在有一定围合感的空间里同时进行操作出品和保留与客户之间充足的对话性。而吧台外,“亭”的屋檐和屋檐下的四根立柱之间的虚空间,则是属于客人的,兼具依旧位于亭下场所的归属感和围坐观看舞台中心的体验感。
The first “pavilion” is related to the site, while the second “pavilion” focuses on the interaction between the barista and the customer. Within the “pavilion,” the space under the eaves is divided into two parts by an enclosing bar counter: one part belongs to the barista, and the other part belongs to the customer. The centrally located oval bar counter is the barista’s domain, which can be understood as the barista’s performance “stage.” It allows the barista to both prepare and serve coffee while maintaining an adequate sense of enclosure and enough space for interaction with the customer. Outside the bar counter, the space between the eaves and the four columns beneath them is reserved for the customer. This area offers both a sense of belonging to the pavilion and the experience of sitting around and watching the “stage” at the center.
▼入口看向吧台及休闲区,Entrance looking towards the bar and lounge area© Atelier IN
▼MARUS COFFEE 室内屋檐及展示,MARUS COFFEE indoor eaves and display© Atelier IN
▼廊下的休闲区,Rest area under the corridor © Atelier IN
我们理解的这个“亭”并非遗世独立的一个孤岛,而是在“园”中看似孤立,实则与周边的景物、空间,甚至原始建筑都是连接在一起,并不断产生对话的。为了构筑这样的关系,我们将属于“亭”结构中的工字钢梁和钢柱从“亭”内向周边延展,在西侧与原始建筑的墙面相交,在东侧的延申过程中构筑成新的墙面与廊道,与亭之外的环境产生联结。
The “pavilion” we envision is not an isolated island, but rather a structure that appears to be isolated within the “garden” yet is actually connected to the surrounding landscape, spaces, and even the original building, constantly generating dialogue. To establish this relationship, we extended the I-beams and steel columns of the pavilion structure from within the pavilion outward, intersecting with the wall of the original building on the west side. On the east side, the extension forms new walls and corridors, creating a connection with the environment outside the pavilion.
▼檐下的休闲区,Rest area under the eaves© Atelier IN
▼檐亭中的“表演”以及休闲区,Performance in the pavilion and rest area© Atelier IN
▼檐下的休闲区,Rest area under the eaves© Atelier IN
廊
Corridor
业主的原始诉求是将三个主要功能完全分隔开互相独立。为了满足使用需求的同时减少隔绝感,我们想要尽可能的去创造一个充满弹性和层级的边界。所以,我们将一个半透的廊道置于三个功能分区之间,既分隔了空间,自然的成为边界,又将这三个区域串联了起来,形成一个缓冲屏障,使得教学区,办公区和咖啡店三个空间虽然在可达性上被分隔开,但从视觉感知上却是一个整体。
The client’s original request was to completely separate the three main functions, making them independent of each other. To meet the functional requirements while reducing the sense of isolation, we aimed to create boundaries that were flexible and layered. Therefore, we placed a semi-transparent corridor between the three functional zones. This not only separates the spaces, naturally becoming a boundary, but also links the three areas together, forming a buffer zone. As a result, although the teaching area, office area, and coffee shop are separated in terms of accessibility, they appear as a cohesive whole from a visual perspective.
▼可以打开的边界,Boundaries that can be opened© Atelier IN
▼教学区的走廊,Corridor of teaching area© 陈逸帆
▼教学区的走廊间的互通,Corridor of teaching area© Atelier IN
在传统园林廊道中行走,人之于周边景物的关系和距离感是在不断变化的,我们也尝试将这种变化以改变通透性的方式转译到这个走廊中。通过在改变廊道中的材料和开孔位置以及方式,空间的使用者能够在廊道中行走时感受到这个边界的弹性——有时可实际穿过;有时能直接看透;有时能看到临近空间中婆娑的人影;有时能隔着实墙,通过顶部的开窗感受到与相邻空间的连接感。
In traditional garden corridors, the relationship and sense of distance between a person and the surrounding landscape are constantly changing. We sought to translate this dynamic into the corridor by altering its transparency. By changing the materials and the placement and method of openings in the corridor, users walking through the space can experience the elasticity of the boundary. At times, they can pass through it; at other times, they can see through it; occasionally, they might glimpse the moving shadows of people in adjacent spaces; and sometimes, they can feel a connection to neighboring spaces through openings in the ceiling, separated by solid walls.
▼学院教学区,Teaching area© 陈逸帆
▼后入口,Rear entrance© 陈逸帆
▼后立面的廊,Back facade corridor© 陈逸帆
细部
Details
我们所理解的细节,应该是服务于整体的。构成“亭”的主结构,工字钢梁和钢柱,在视觉上让人们感知到空间的体积和重量,同样也是构成一切室内元素的结构基础。所以我们置入的第二层级的细部是依附于主要构造系统的——沿着钢梁、钢柱和桁架挑出再悬吊,形成了灯具,座椅和置物架。插座和开关也是以寄生的方式依附在钢柱上。
The details, as we understand them, should serve the overall design. The main structure of the “pavilion,” consisting of I-beams and steel columns, visually conveys the volume and weight of the space, and at the same time, forms the structural foundation for all the interior elements. Therefore, the second level of details we introduced is attached to the main construction system—suspended along the steel beams, columns, and trusses, forming light fixtures, seating, and shelving. Electrical outlets and switches are also parasitically attached to the steel columns.
▼新旧结构细节,Details of old and new structures© 陈逸帆
▼入口细节,Entrance details© 陈逸帆
▼家具细节,Furniture display details© 陈逸帆
▼灯具细节,Lighting details© 陈逸帆
▼屋檐结构细节,Details of the roof structure© 陈逸帆
▼亭的剖面,paviliondiagram© Atelier IN
项目名称:苏州 MARUS COFFEE 及咖啡学院
项目地址:苏州市苏纶场工业园区
建筑事务所:知一设计研究室
客户:MARUS COFFEE
项目竣工: 2024 年 11 月
建筑面积: 437㎡
主创建筑师团队: 毕舟希/李金龙/雁森/徐大伟
施工团队:苏州广鑫装饰工程有限公司
摄影师:陈逸帆
Project Name: MARUS COFFEE & Coffee Academy
Address: Sulunchang Industrial Park,Suzhou
Architecture Firm: Atelier IN
Client:MARUS COFFEE
Completion: September 2024
Building Area: 437㎡
Architect: Zhouxi Bi/Sen Yan/Dawei Xu/Jinlong Li
Construction Team: Suzhou Guangxin Decoration Engineering Co., Ltd.
Photographer: Yifan Chen
Email:
客服
消息
收藏
下载
最近

























