查看完整案例


收藏

下载
双地铁线一城轨,三横四纵高速路网。50 分钟便可抵达珠江新城,辐射范围内商业、教育、医疗资源 360°全配套。
INVESTIGATION ANALYSIS
USER ANALYSIS
对项目客群定位及客户描摹分析
通过近距离接触目标客群现有家庭现状,通过倾听、观察来洞察客户诉求。
USER EXPERIENCE 用户体验
家是共聚欢乐的空间,我们以人性化的设计切入实际生活、通过不同时间变化场景模拟舒适甚或体验,将生活的仪式感带入舒适极致的体验高度,是此次设计的主题与理念所在,以此重新演绎生活方式与生活态度。
PRODUCT VALUE / FOCUS 产品价值点/关注点
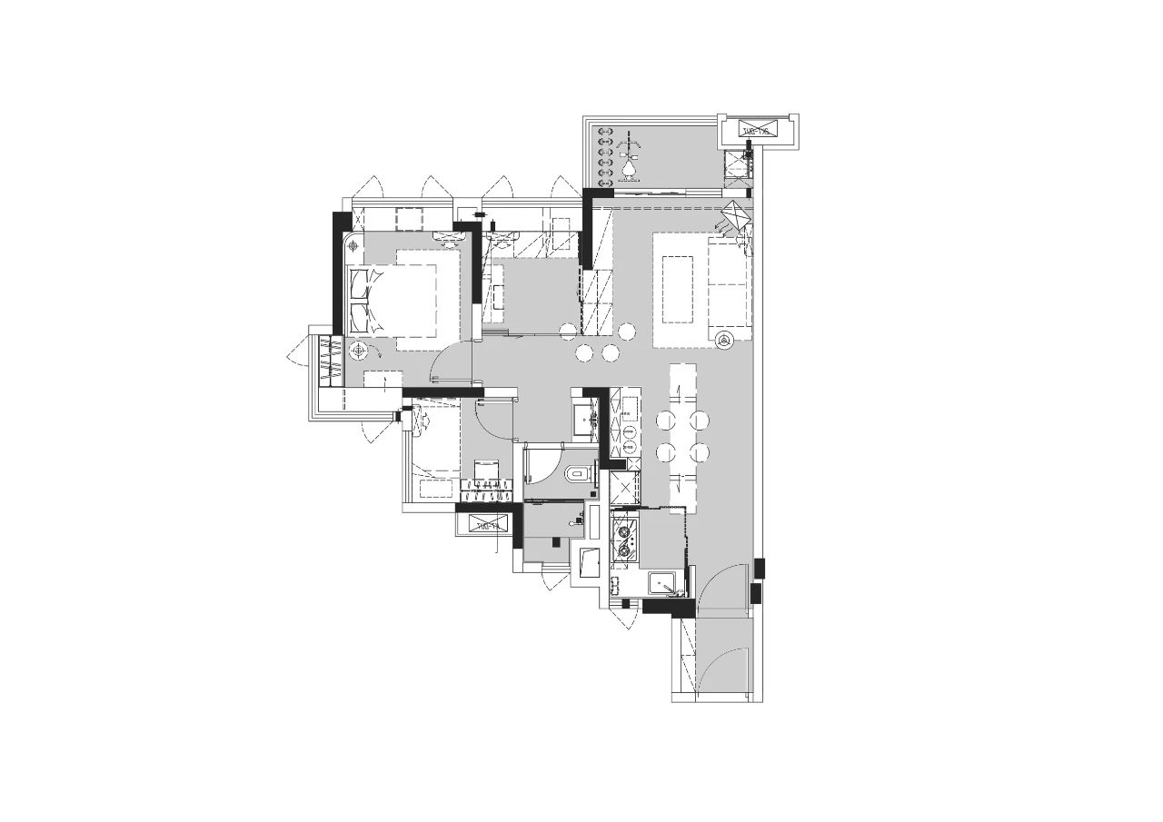
- 充分利用空间,实现空间实用可变形最大化。
- 梳理动线与收纳,满足日常收纳与整洁度。
- 通过灯光设计营造出舒适的歇息温馨环境。
- 提供不同时间不同情境下的多样体验。
- 生活致趣的诠释于各优质材料、触手可及的品质感。
产品价值敏感点及关注点
DESIGN STRATEGY:
- 重点关注于用户体验,多维度切入生活当中。
- 通过智能系统,提高舒适度与便捷度。
- 运用设计策略把空间功能性发挥到最大化。
- 在有限空间发挥无限可能,多样流动增加空间可变力。
- 贴合生活需求顺理出七大系统。
- 实现空间能动性的高效规划。
- 遵循空间属性、满足功能需求的原则前提下强化。
- 利用不同材料与灯光设计营造氛围感。
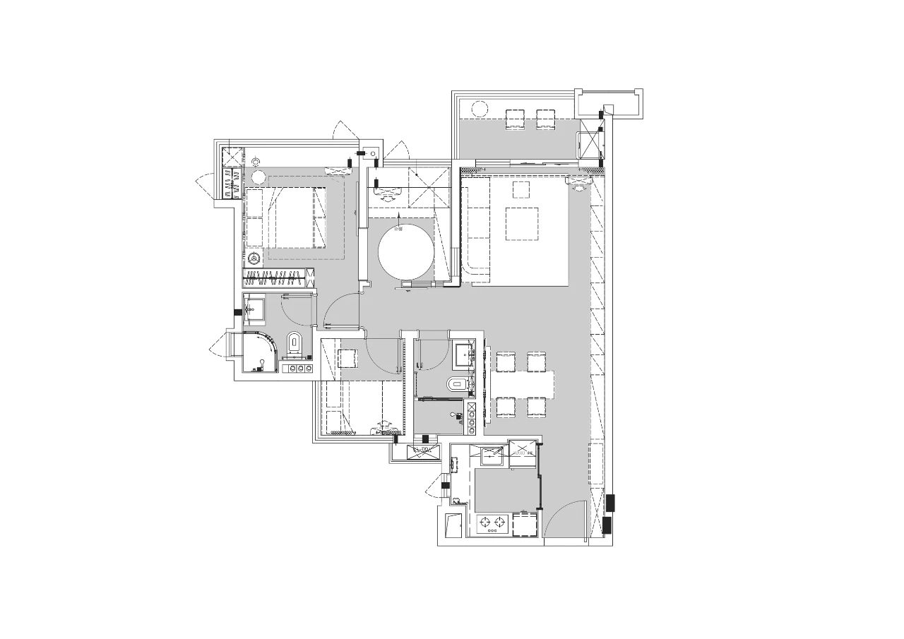
DEARM BEDROOM 利用飘窗位,打造干净、整洁、舒适空间,让时间懒懒的慢下来,身心放松,做个好梦。
LIBERATION OF NATURE BATHROOM
洗手台外置,提倡高效率生活观、适龄生活观。设置镜柜,方便收纳存放高频使用物品,浴室柜侧面杂志柜可放书籍。
PLAY SPACE WITH CHANGEABLE HOUSE TYPES
独立又互联的多变户型,驾驭生活多种可能。当一些变量随着时间推移产生改变,我们通过设计上的生活预设,满足多元化的居住需求,成就美好生活的承载空间。
充满体验感的艺术趣味印记空间,让自然元素与现代材质结合凸显主题,诠释未来生活方式。平静,和谐,自然,又富有张力。干练,硬朗又魄力十足。就像优雅琴谱上添加金属的音符,让其有内涵而不张扬的气质无处不散发在空间每个角落。
人生真正美丽的东西必须一方面跟自然一致,另一方面跟理想一致。
随着光影的转移至餐厅区域,不同物件的高低错落映射在不同反光材料中。温文尔雅,简约大气的线条勾勒出硬、软装陈设的简逸典雅,丰富视觉层次之余亦营造温暖出亲密互动环境。
在满足日常功能需求外,每一件物品的装饰都恰到好处。呼应色彩搭配,延续客厅采用的材料肌理在餐厅位置带来不一样的感觉,提高整体空间格调。
在客餐厅与静谧的卧室区域之间打造出一个多功能房,既是一个整体,同时又是不同的个体。光和爱贯穿着整个家,也使得整体空间更开阔,无时无刻变得放松、惬意。
动静有序,相互对立而又融合。卧室对于居住者来说尤为重要,在主卧中温暖的木色调下绽放着色彩鲜艳的配饰,两者不相悖,更为整个空间撑起视觉亮点。
我们探究,取舍,在有限空间发挥无限可能。
优雅知性彰显典雅的气质。直白不繁复,轻奢又独到。灿烂、富足、质感的点缀是对每一个家庭温暖生活的呼应。包裹所有感官并通过巧妙的构思,橘色的摆件萦绕视觉点亮起温暖舒适的灰暖色调,恰好能让人倍感温馨。
简约舒适的空间气息中无处不透露着对于生活品质的追求。在餐厅,和谐温润的氛围是与家人、朋友共聚的氛围追求。墙面利用层架作为收纳摆件更甚于一幅画,轻松便彰显出高雅、细致与内敛。
在客餐厅与儿童房之间的隔断大胆勾勒出一个圆,使得彼此空间交互,也在灵活中多了些通透感。孩童与父母成为彼此画框里的景物。
充满童趣幻想的壁纸仿佛体验着童年吃糖果时的那份甜蜜,淡雅的色彩如同糖果的色彩一样丰富着童年记忆。在设计师的手下,空间亦发挥着最大作用,收纳柜可收纳起所有儿童玩具与书本,孩子的休息区域亦被充分的阳光沐浴着。
我陪你长大 你陪我变老
成熟沉稳的长辈房,设计师以原木色与灰调软饰结合,简洁实用是它最大的特点,经久耐看,简洁舒适。
每一件陈列都让人深感生活的美好。保持整屋空间的设计氛围,相映成趣。
营造温馨慵懒感氛围,彰显品味。淡雅的灰调与原木的自然色系悄然碰触,和谐流动在室内的视觉呈现中。白天光线与空间的结合形成一种典雅的韵味,在夜幕人静下也能体验娓娓道来的舒适体感。
绿植与阳光,体验生活的几何。在同一屋檐下,表达属于各自的生活态度。
出界入格,不试图寻找,去试图感受。美的定义无处不在变化,洞察生活的本质。汲取新灵感,感受经典适意与艺术的生活方式。
挖掘不同的灵感源泉注入在每套空间,在这里我们使用经典大气的材料配色,加上鲜明的态度打造独特性。焕活空间艺术美感同时,客厅不仅可满足休闲需求,亦是与客人共聚高谈阔论的场景。
客餐厅一体的空间中,以极致的现代风格为基底,通过定制的软装陈设凸显质感。大理石台面、皮质沙发椅子、装饰画等营造独有的舒适体验感受。
引入充沛自然光下,一揽中心视野。
这是一个能冥想、阅读、沉思的空间。书房延续整体设计理念,以柔软的坐卧飘窗和坐墩构成下空间基调,自然光的引入投射出朦胧与婉约的影子。
在书房与客房间,读书办公与灵魂安放的静谧空间,我们贯通整体设计风格依照不同需求而改变。品质生活不只是舒适,更在于不同需求的全能适配。
打破空间沉闷感,用绿植、摆件唤醒空间活力,在阅读写作中寻找生活灵感。
光影随着时间发生角度变化,为不同媒介染上不同色泽。童趣的元素成为个性的表达,淡雅的气氛下用趣味表达空间序列感,装饰画与小玩偶构造属于孩子的遨游空间,打破平淡与时间一起成长。
空间的尺度与人之间产生的某种像诗一般的构想。在空间塑造更多的形态可能下也是塑造童年的妙想空间。
项目名称 | 雅居乐 · 从化滨江雅苑
项目委托 | 雅居乐集团
空间设计 | 研质建筑装饰设计(广州)有限公司
陈设设计 | 广州本末言建筑装饰设计有限公司
甲方团队 | 慕容启光、靳志强、李晓阳、林敏霓、莫少清
项目地点 | 广东·广州
竣工时间 | 2021.03
项目面积 | 77㎡、86㎡、97㎡
研本(研质建构-本末言)不拘泥于风格和手法,关注功能和运营,以空间美学场景的营造作为设计理念。在设计过程中,不断探寻空间的秩序和深挖最佳主题的表达,来塑造、诠释空间。同时,我们关注空间的工艺实施与成本控制,力求使原创意能得到最大程度的实现。
客服
消息
收藏
下载
最近















































































