查看完整案例

收藏

下载

翻译
Architects:IGArchitects
Area:83m²
Year:2024
Photographs:Ooki Jingu
Lead Architects:IGArchitects, Masato Igarashi
Construction:FUN SHARE Ltd., Yukimitsu Shimoji
Structure Engineer:Yousuke Misaki EQSD
City:Okinawa
Country:Japan
Text description provided by the architects. This residence was designed for a married couple. It is on a long, narrow site that slopes gently toward the back, and its three sides are surrounded by apartments and a cemetery, so the location feels like the bottom of a valley. The adjacent cemetery was like a forest, with plants crossing over into the site and blurring the boundary, making the site itself look like part of the cemetery. Having these site features, an "Okinawa-like" building style with large openings seemed somehow inappropriate for this location. Here, we envisioned a bright, open architecture while keeping a distance from its surroundings.
We envisioned a building with a dignified appearance with a bright and austere interior free from external influences. Such architecture has the power and the quality of space that architecture possesses even after its original purpose ends and can remain there for a long time. For this project too, we wanted to build an architecture that will be loved and used over time, even after the owner or its function changes.
The gently sloped site was organized into three levels for the living platform, the stepped earth retaining walls were used as two rows of foundation lining, and a square pyramid was placed reminiscent of a portable shrine. The square pyramid lifted from the hard Ryukyu limestone layer has a powerful form that will continue to stand there as if it were perched on clogs, even if the surrounding earth were to erode. The closed pyramid is not only structurally stable but also private and dignified. While providing functional support points in response to the site, opening the foundation and roof surface was to a limited extent, creating a peaceful space without losing the stable form.
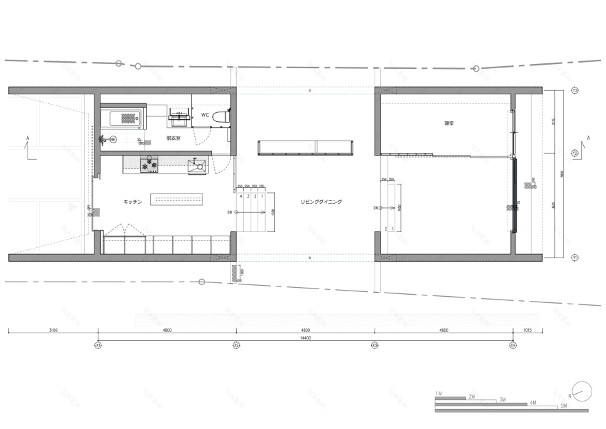
The interior space has a simple composition. The first level consists of a bathroom and entrance to efficiently gather plumbing, the next level which is stepped 1m down is a living/dining room and a study, and the third level at the back has a bedroom and other private spaces. The house was designed to create a living space within easy reach of wooden material under a skylight inside a concrete mass like a ruin.
Old tombs in Okinawa are very splendid. They are designed to withstand Okinawa's harsh climate and endure for generations. They provide a function as places of gathering, celebration, and reverence and a "home" for the ancestors, with the ancient wisdom, will and culture to be able to use them for a long time. The building that we designed and completed came out looking somewhat like a pyramid or a tomb. The shape of the building was derived from considerations of Okinawa's climate, wind and rain, the surrounding environment, and the budget. However, when I saw the completed structure, it felt as though it was imbued with the sense of permanence and festivity that Okinawa's ancestors instilled in their tombs. Although the form may seem bizarre, this concrete house resulted in a graceful Okinawan character.
Project gallery
客服
消息
收藏
下载
最近



































