查看完整案例

收藏

下载
项目名称:AGE 360 大楼
位置:库里提巴, 巴西
设计单位:ARCHITECTS OFFICE + Triptyque
图片数量:38 张
巴西 AGE 360 大楼外部实景图
来自建筑师。AGE 360 是格雷格-布斯凯(Greg Bousquet)为 AG7 开发公司设计的新住宅楼,它改变了库里提巴 Ecoville 社区的景观,是一座集技术创新、可持续性和生活质量于一体的垂直建筑地标。该建筑高达 124 米,旨在成为城市的标志性建筑,反映了 AO 项目中结构实用主义与建筑诗学之间的关系。
巴西 AGE 360 大楼外部实景图
巴西 AGE 360 大楼外部实景图。设计方案旨在建造一座住宅楼,从城市的不同角度都能看到,同时又不失与周围环境的联系。该建筑位于低密度地块,享有巴里吉公园的优美景观,这给结构和体量带来了挑战。经过 48 次容积研究后,设计团队最终确定了建筑结构,既遵守了当地法规,又最大限度地利用了城市和自然视角,展现了带有倒角的动态容积,这已成为该项目的特征。
巴西 AGE 360 大楼外部实景图
巴西 AGE 360 大楼外部实景图
巴西 AGE 360 大楼外部实景图
巴西 AGE 360 大楼外部实景图
为了保证室内空间的灵活性,并使公寓摆脱柱子的束缚,AGE 360 采用了混凝土外立面。这种结构解决方案不仅优化了内部布局,还重新定义了住户与空间的关系,提供了多变的布局和畅通无阻的视野。这一决定还带来了强烈的美学元素,强调了塔楼的垂直度,并与轻盈的概念进行了对话。
巴西 AGE 360 大楼外部实景图
巴西 AGE 360 大楼外部实景图
巴西 AGE 360 大楼外部实景图
巴西 AGE 360 大楼外部实景图
该建筑的公共区域位于塔楼的中心,而不是底层。泳池、水疗中心、高架花园等空间营造出城市全景的居住环境,强化“健康”理念,促进幸福感。天然木材与混凝土和绿色植物相结合,覆盖了这些区域,营造出温馨而安静的氛围。
巴西 AGE 360 大楼外部实景图
巴西 AGE 360 大楼外部实景图
巴西 AGE 360 大楼外部实景图
巴西 AGE 360 大楼外部实景图。植被是项目的一大亮点,强化了对生物的热爱和对可持续发展的承诺。露台上的花盆营造出一个连绵不断的花园,精心挑选的树种耐大风,维护成本低。裸露的混凝土与植被之间的对比创造了一种视觉和功能上的平衡,真正将居民与自然联系在一起。
巴西 AGE 360 大楼外部实景图
公寓花园
建筑遗产
AGE 360 已经赢得了一些具有全球意义的奖项,如 2021 年 iF 设计奖、"反思未来 "标签和 Fitwel 证书,该证书旨在表彰关注用户健康和福祉的项目。这些奖项彰显了该项目对房地产市场和库里提巴城市环境的积极影响。
巴西 AGE 360 大楼外部实景图
AGE 360 不仅仅是一个视觉地标,它还是建筑如何整合功能性、可持续性和文化影响的一个例子。建筑师事务所创始人 Greg Bousquet 强调说:“每个决定都以功能为指导,但最终都以诗意的方式融入了城市和自然环境。”该建筑是现在与未来对话的综合体,提供丰富城市及其居民日常生活的解决方案。
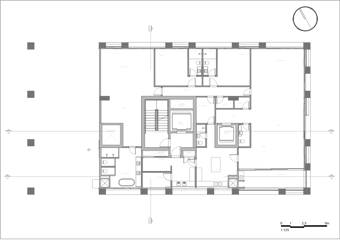
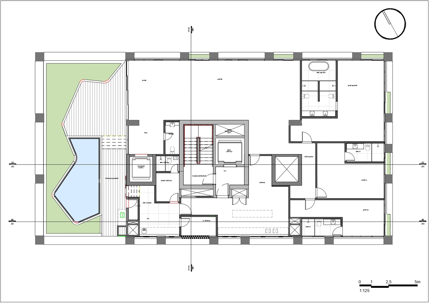
巴西 AGE 360 大楼平面图
巴西 AGE 360 大楼平面图
巴西 AGE 360 大楼平面图
巴西 AGE 360 大楼平面图
巴西 AGE 360 大楼平面图
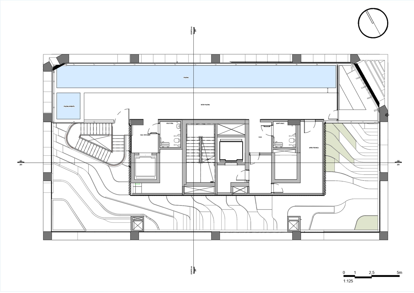
巴西 AGE 360 大楼剖面图
建筑师: ARCHITECTS OFFICE, Triptyque
面积:17000 m²
项目年份:2024
摄影师:Joana França
室内: Suíte Arquitetos
景观设计: Renata Tilli
照明技术: Estúdio Carlos Fortes
声学: Relacus Realizações
声学结构: Kálkulo
基础: MG&A
电气: Lumini
给排水方案: Vectra
空调: Michelena
建设: TEICH Engenharia
项目开始时间: 2018 年 2 月
项目结束时间: 2024 年 11 月
土地面积: 3978m²
客服
消息
收藏
下载
最近

























