查看完整案例

收藏

下载

翻译
Architects:HO Studio
Area:420m²
Year:2023
Photographs:Nguyễn Thái Thạch
Lead Architect:Hồ Văn Cường
Design Team:Hoàng Vân, Nguyễn Anh Nhật
City:Vinh
Country:Vietnam
Text description provided by the architects. Located within the expanded roadway area as part of Vinh City's new urban plan, the client's plot has been downsized and now intersects with a 40-degree diagonal to a new sidewalk, which is slated for development in the coming years. When we surveyed the site in 2023, the existing one-story house was quite enclosed, having been in use for over twenty years and built on a very low foundation. Standing on the roof of the old house with the guests, we immediately felt the refreshing coolness of the area due to the constant breeze, and the surrounding landscape was wide open, with urban voids on three sides. It was clear that this location had significant potential for a home that would enjoy expansive views, while also maximizing the flow of cool air throughout the interior spaces.
Positioned near two high-rise apartment buildings, one 15 stories and the other 23 stories, the house is conceived as a solid white tower. Diagonal lines and chamfered edges are used to create distinctive features in the building's exterior design.
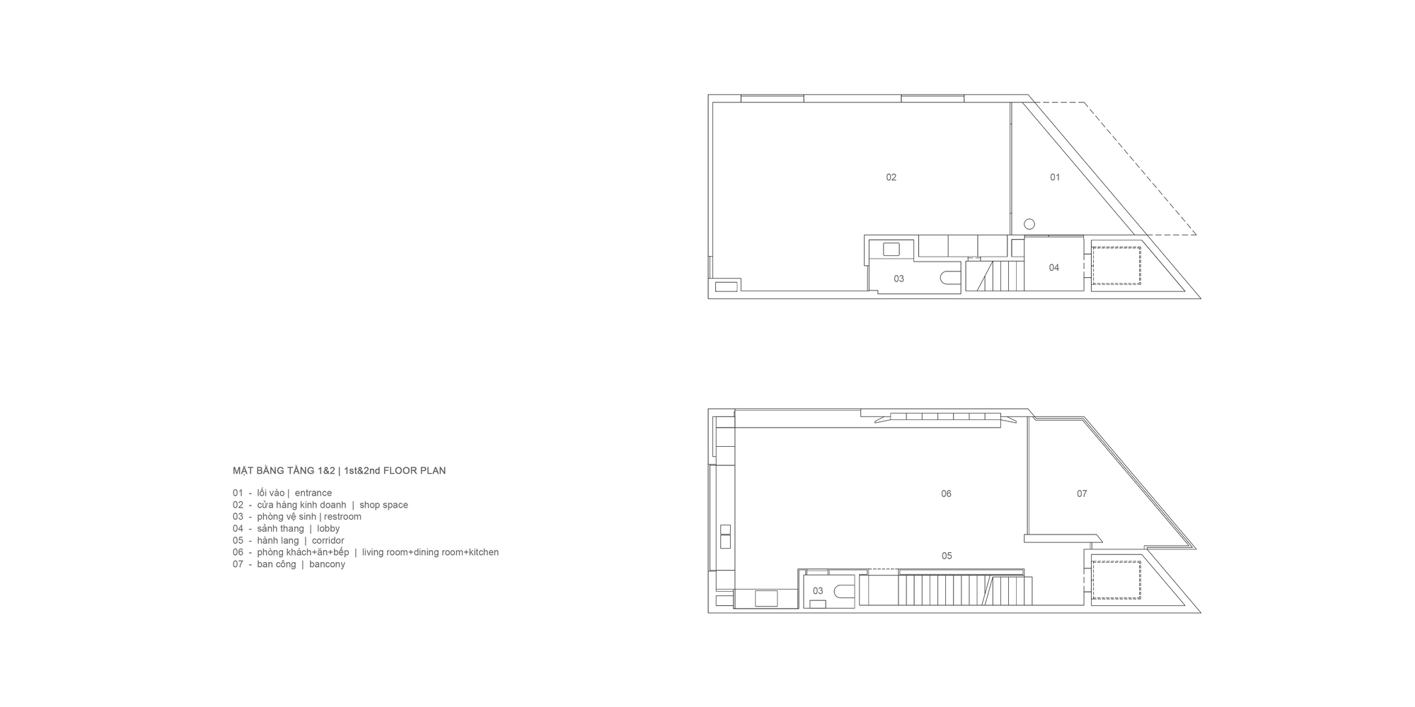
The house includes a ground floor for business purposes and four upper floors for family living, designed for the parents and two daughters. The solid tower is located on the west side, containing areas for circulation (elevator, stairs, hallways) and enclosed restrooms. The remaining space is allocated for various functional areas, with maximum openness extending from the front to the rear of the house. Internal walls are minimized, and entirely enclosed rooms are avoided. Voids and skylights are strategically integrated throughout to enhance spatial flow.
Natural light pours into the house through the building's form, the cuts, skylights, and large glass openings. Greenery will cover all three stepped balconies (of varying sizes), creating hanging garden-like terraces at the front of the house. The vegetation is anchored against the solid mass on the west side, improving the quality of life for the adjacent spaces.
The primary living area for the family is located on the second floor, offering expansive views of the tree canopies both at the front and rear. Here, a high void of over 5 meters opens up an unobstructed view of the sky, allowing the family to experience the changing light and atmosphere throughout the day.
Project gallery
客服
消息
收藏
下载
最近





























