查看完整案例

收藏

下载

翻译
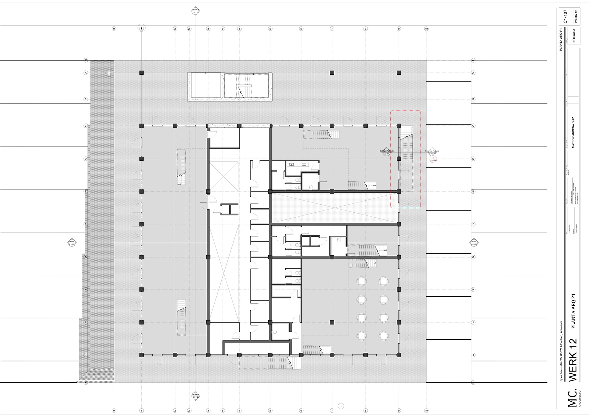
WERK 12 BY MVRDV - BIM MODEL
AUTODESK REVIT CERTIFICATION
This work, completed as part of my Autodesk Revit Certification, showcases my proficiency in BIM management through the comprehensive modeling of MVRDV's iconic WERK 12 building.
By developing a detailed BIM model, I demonstrated my ability to handle complex architectural projects, coordinate between disciplines, and produce high-quality construction documentation.
Key responsibilities included parametric modeling, family creation, visualization, and collaboration with project teams, utilizing Navisworks for model coordination.
STRUCTURAL DRAWINGS
GENERAL DRAWINGS
DETAIL DRAWINGS
IMAGES
PHASES
NAVISWORKS
SOLAR STUDY
12-3 pm
12-9 am
12-12 pm
dec 21
jun 21
mar 21
CERTIFICATIONS
客服
消息
收藏
下载
最近



































