查看完整案例

收藏

下载

翻译
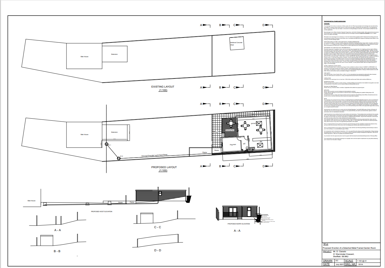
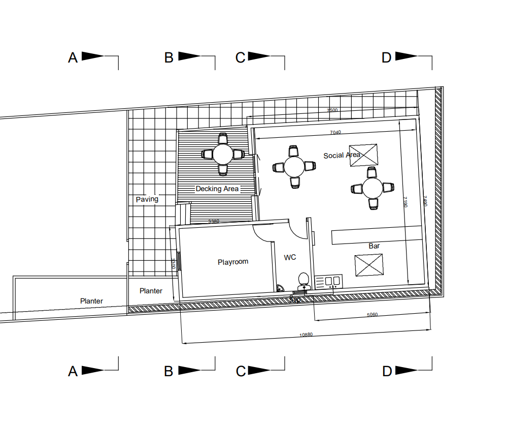
Hubs 31 Warminster Cres DWG Nr 001A
Project : 31 Warminster Cres DWG Nr 001ARequirements: Proposed Installation of Separate Metal Framed Garden SpaceLocation: Clifton, Nottingham, United KingdomOwner: ecolutionhubs
PROPOSED SINGLE STORE METAL FRAME GARDEN ROOM DONE:All construction details: structural stability design and calculations including foundation design details: Conformance to Part A,B, C, F, G, K , L, P & Approved Documents 7 Materials & workmanship Building Regulations to be provided by the ParkRoom manufacturer 28 days prior to starting work on site for approval from Local Building Superintendent.
客服
消息
收藏
下载
最近












