查看完整案例

收藏

下载

翻译
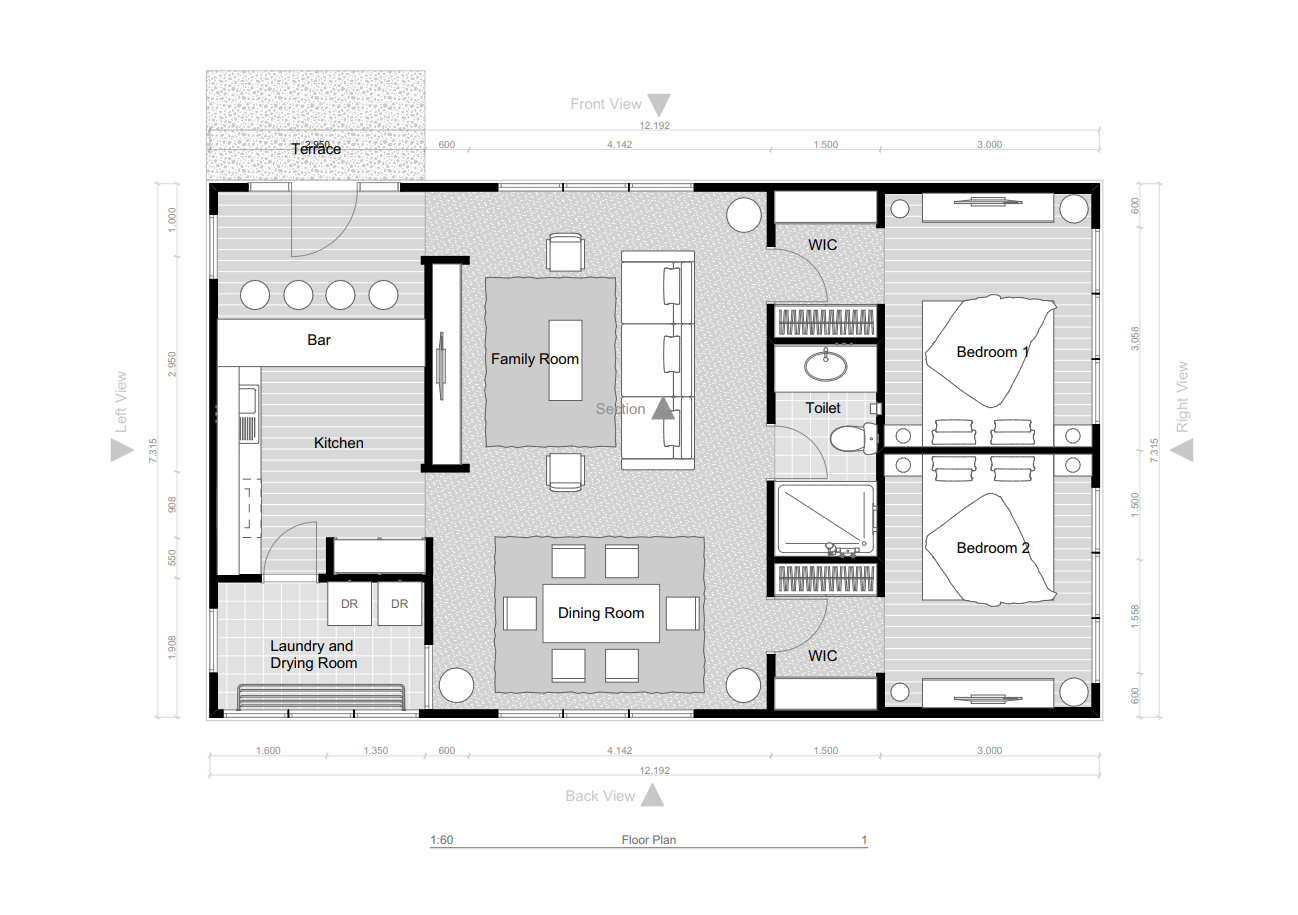
Family Recreation House Concept
Project : Family Recreation House ConceptLocation : Clifton, Nottingham, United KingdomOwner : ecolutionhubs
The construction of recreational homes during the COVID-19 pandemic aims to fill time with loved ones while still implementing joint health protocols. during the covid-19 pandemic, having to follow government regulations not to go to public places will certainly be boring, the solution so that you don't get bored at home, we can create entertainment with family without having to leave the house or go to crowded places.
客服
消息
收藏
下载
最近


















