查看完整案例

收藏

下载
这座艺术工作坊项目实现了艺术、建筑与设计学院(UMPRUM)的愿景,作为布拉格市中心的一个整体部分(无论是从物理层面还是非物理层面来看),即由两栋建筑组成的紧凑且“未分割”的学校(知识中心——工作室/技术设施——艺术工作坊)。而翻新与扩建并未改变城市天际线。
The art workshops project fulfills the vision of the Academy of Arts, Architecture and Design (UMPRUM) as an integrated part of Prague’s centre (both physical and non-physical aspects), the vision of a compact “undivided” school of two buildings (intellectual centre – studios / technological facilities – art workshops). The renovation and completion does not require a change in the city’s skyline.
▼项目概览,overall of the project ©Peter Fabo
主要入口得到了加强、突显并向外开放。通过去除整个立面入口的折衷风格,使原有立面焕发新生。通过切割建筑物的深度,并与内部道路的合理组织相呼应,预示了建筑的内部功能和活力,同时使其与城市之间建立了更紧密的联系。
The main entrance is supported, highlighted and opened up. By omitting the entrance segment of the eclectic façade across its entire height, the old façade is given new life. The cut through the depth of the building in relation to the rational organisation of the internal roads foreshadows the internal function and life, opening it up to the city.
▼主立面入口,the main facade entrance ©Peter Fabo
内部的沟通和空间布局尊重历史上的调制与处理方式,同时兼顾当代学校和城市的需求,优化了外部空间的关系。
The internal communication and spatial arrangement respect the historical system of modulation and treatment, involving external relations according to the needs of the contemporary school and the contemporary city.
▼与外部空间的关系,relationship with the exterior space ©Peter Fabo
大厅的覆盖设计使得大型项目得以顺利进行,保证学校全年稳定运营。技术设施集中布置在建筑的侧翼,而光线设施则位于中央区域。这种布局既允许自然光的充分进入,又在视觉上将中央的半透明设施与整个空间连接起来。
The principle of the covered hall allows for large projects and the year-round operation of the school at the required level. Technological facilities are concentrated in the side wings and light facilities in the centre of the layout. Their organization allows the entrance of natural light, the visual connection of the central semi-transparent facilities.
▼入口,entrance ©Peter Fabo
▼允许自然光的充分进入,allows the entrance of natural light ©Peter Fabo
捷克建筑奖评审团评价
Czech Architecture Award Jury Evaluation
位于市中心、邻近高端商业项目的这座空置学校建筑,通过UMPRUM的改造,焕发了公共与创意用途的生机。从一所小学到艺术大学的转变,不仅保持了教育功能,而且使这块地成为城市中心的一个充满活力的组成部分,带来了广泛的社区与创意活动。投资方、学院院长与建筑师们所提出的“由两栋建筑组成的紧凑且未分割的学校”的愿景,得到了成功且令人信服的实现。评审团特别赞赏这一重要市中心地块的复兴,以及通过公共倡议和建筑创意使其为公众所用,而非仅仅服务于私人利益。
A vacant former school building on a valuable, centrally located site next to a high-end commercial project was activated for public and creative use thanks to UMPRUM. The transformation from an elementary school to an art university not only maintains an educational function on the site but has become a vibrant, integral part of the city centre, with a wide range of communal and creative activities. The vision of the investor, the director of the Academy, and the architects of a “compact and undivided school consisting of two buildings” was implemented successfully and convincingly. The jury particularly appreciates the revitalisation of this important site in the city centre and its activation for public rather than private use thanks to the public initiative and architectural ingenuity.
▼中庭设计,atrium design ©Peter Fabo
翻新和扩建设计尊重周围公共空间的环境,并未改变建筑的高度。建筑通过精确定位主要入口与街道相连接,入口上方的立面被完全打开,突出了建筑内部的功能,使其与城市相呼应,充满透明感。
The refurbishment and addition respect the context of the surrounding public spaces and the city’s skyline without changing the building’s height. The building is well connected with the street through the precise positioning of the main entrance, which is accentuated by opening the façade above the entrance at its entire height, thereby making the internal function transparent and relating to the city.
▼中庭空间,atrium space ©Peter Fabo
内部设计中,一处绿意盎然的庭院营造出宜人的氛围,并与周围建筑形成良好连接。工作室、技术设施与艺术工作坊的整合充分利用了建筑空间,使所有公共区域、大堂和流通空间焕发活力。即使是走廊,也能作为学生展览的空间,发挥其双重功能。内部空间布局、通道和流通系统既尊重历史体系,又在功能性与美观性上达到了平衡。
Internally, an attractive green courtyard creates a lush and inviting atmosphere and connects well to the adjacent buildings. The integration of studios, technological facilities, and art workshops makes perfect use of the building and brings life to all the communal spaces, the lobby, and the circulation spaces. Even the hallways have a dual use and are equipped to host student exhibitions. The internal spatial arrangement, access, and circulation respect the historical system and are functional and attractive in equal measure.
▼工作室、技术设施与艺术工作坊,The integration of studios, technological facilities, and art workshops ©Peter Fabo
▼表演空间,performance space ©Peter Fabo
将大厅覆盖上玻璃屋顶的设计,在中心位置创造了一个多功能、富有吸引力的沟通空间,使学校得以全年运营。因此,周末和假期期间,学生和社区成员都能充分利用这一空间。内部组织设计加强了视觉联系,并通过中央的半透明设施引入了充足的自然光。
The idea to cover the large hall with a glass roof created an attractive, multi-functional communicative space at a central location and allows for the school’s year-round operation. As a result, the space is also well-used on weekends and during holidays by students and the community alike. The internal organisation supports visual connections and the entrance of natural light through the central, semi-transparent facilities.
▼大厅覆盖上玻璃屋顶的设计,The idea to cover the large hall with a glass roof ©Peter Fabo
▼通过中央的半透明设施引入了充足的自然光,natural light through the central, semi-transparent facilities ©Peter Fabo
总结来说,该项目不仅是一次在复杂背景下成功的建筑干预,也是如何遵循循环经济的10项原则的优秀范例。通过重用与激活市中心的地块、使用耐用且天然的材料,以及灵活的内部布局为未来适应提供了可能,项目展示了可持续发展的巨大潜力。
In summary, the project is not only a successful architectural intervention in a complex context, but an excellent example of how to follow the 10 R principles of Circular Economy by reusing and reactivating a downtown site, the use of durable and natural materials, and the flexibility of the inner layout to enable future adaptations.
▼地下室平面图,underground floor plan ©Projektový ateliér UMPRUM
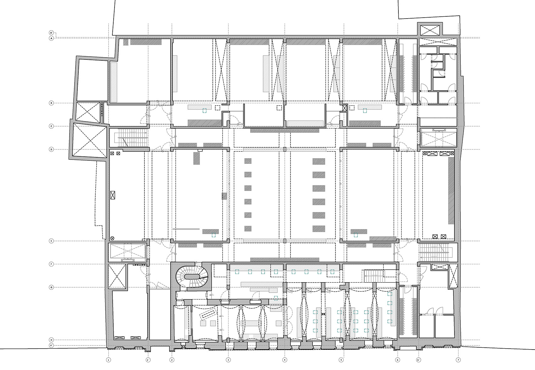
▼一层平面图,ground floor plan ©Projektový ateliér UMPRUM
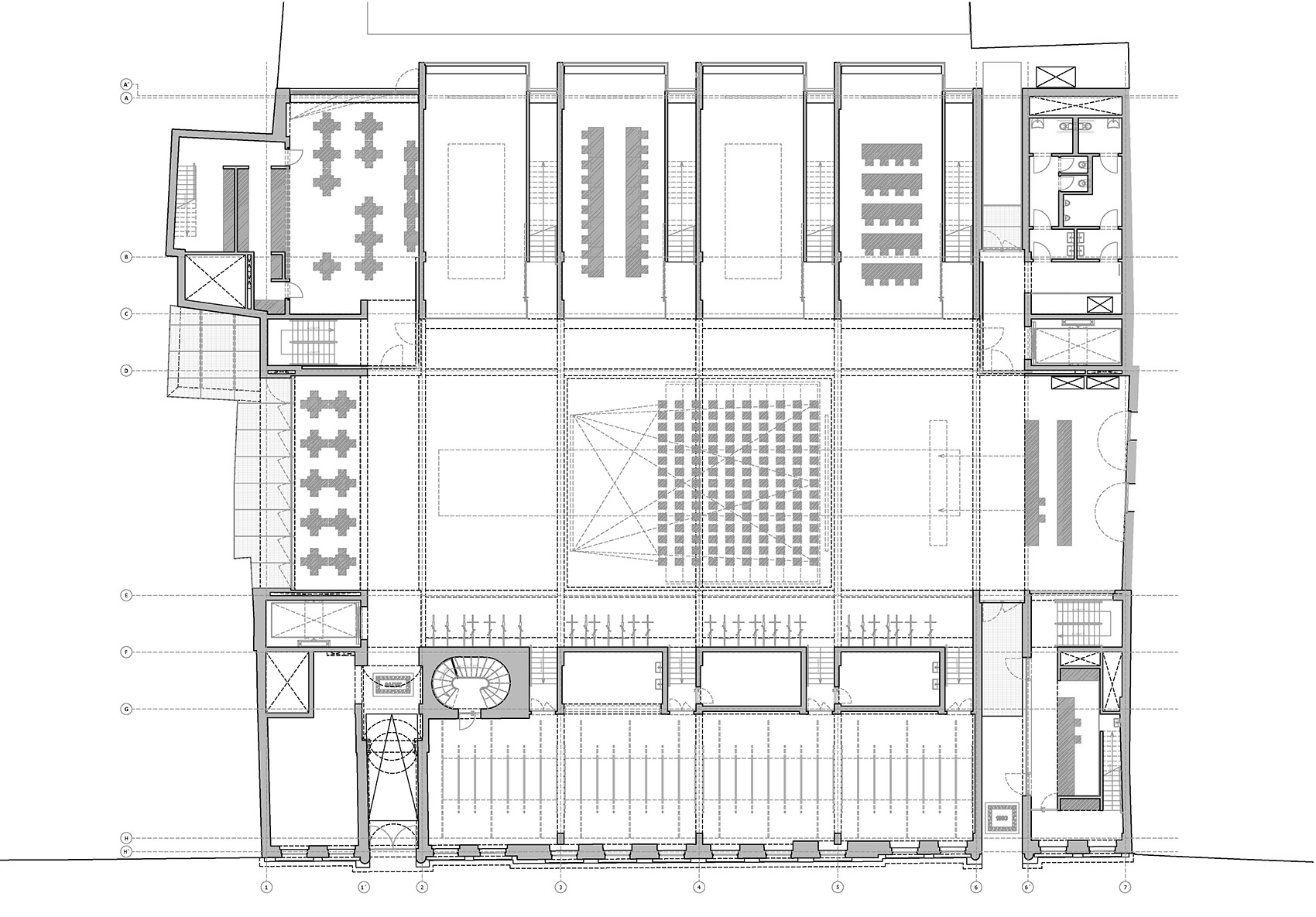
▼二层平面图,second floor plan ©Projektový ateliér UMPRUM
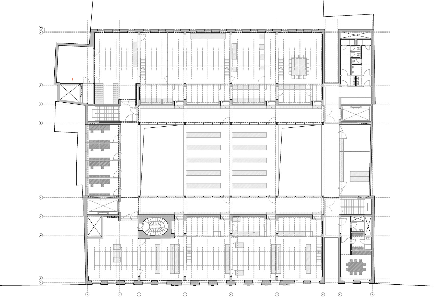
▼四层平面图,fourth floor plan ©Projektový ateliér UMPRUM
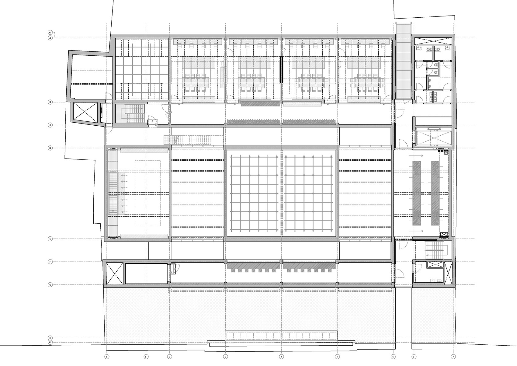
▼五层平面图,fifth floor plan ©Projektový ateliér UMPRUM
▼剖面图,section ©Projektový ateliér UMPRUM
Studio:Projektový ateliér UMPRUM
Author:Ivan Kroupa, Jana Moravcová, Tomáš Zmek
ivankroupa@ivankroupa.cz, jana.moravcova@fa.cvut.cz,tomas.zmek@fa.cvut.cz
Project location: Mikulandská 134/5, 110 00 Prague
Project country: Czech Republic
Project year: 2012-19
Completion year: 2021
Built-up area: 2025 m²
Client: Academy of Arts, Architecture and Design in Prague (UMPRUM)
Photographer: Peter Fabo,
客服
消息
收藏
下载
最近




























