查看完整案例

收藏

下载
HUMAN UNBORED人类不无聊,是一个致力于推广国际潮流艺术的平台,它融合了文化展览、创意活动、大众媒体和品牌孵化等多个方面。
作为全国首店,HUB选址于成都市东郊记忆的超中心区域,这里不仅是成都的文化地标之一,更是一个充满创意与活力的场所。
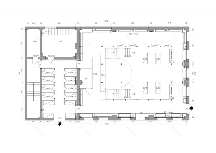
整个项目场地分为了“潮流展览内场”东郊原有旧工业建筑和“三棵树潮流快闪平台”新搭建建筑体两个不同的建筑场域。一座工厂新旧的场域链接,也是旧工业与新锐艺术的链接,其中的旧工业建筑限制因素,两块场域的零售布局和动线链接梳理都极具挑战。
晓欧团队从项目起草概念到项目完整落地历时7月,为潮流消费群打造了东郊记忆潮流服装零售空间新地标。
建筑东立面朝向主街和广场,保留原本存在的树木,并将树木纳入建筑内部,从而穿过建筑局部打开的二层露台,自然的过度且让空间更加有延伸感。
从室内到露台、从一楼树干到二楼树冠,内与外、灵与物,都顺着空间的脉络延伸,无遮挡地向外展示内部的空间,整体通透感十足,同时也为内部空间提供光线及景观,使得东立面层次更为丰富。
设计没有在露台做过多的硬体限制,更是为日后空间的永续发展留下使用弹性,日后的艺术装置也在此会有大量的曝光呈现。
门头根据原有的建筑形态,梳理简化外皮,用不同材质的“线”去呈现空间站外部的结构和秩序感。
在逻辑清晰的设计语言基础上,用电子屏的视觉去打破这种条理与规律,电子屏多变化的视觉为其注入鲜活的生命力。
同时创造出一个充满想象力的场域,用画面和视觉与顾客进行一场无声对话,充分勾起人们进店铺探究的兴趣。
沿街用特意采用钢构和大面积的透明玻璃材质去构成,玻璃通过折叠方式可完全打开,将室内商业氛围展现给公众,也为建筑带来了充足的自然采光。
同时由于旧工业建筑的条件限制,为了更好地让新旧场域接驳,设计团队在室内空间创造了层次丰富的接口。
两处斜插式楼梯入口分别面向东郊记忆园区的广场和主街,以便更好的向处在旧工业建筑二层的“潮流展览内场”引流。
同时保留了东郊记忆工业园区的视觉印象元素红砖材料用于楼梯饰面,令楼梯的体积感受更为强烈,外立面视觉更为丰富,也更具探究感从而形成虹吸人流的效应。
沿街钢制悬挑的平行屋檐下设置了休息区域,向城市和街道释放出一种善意与友好。
设计从“HUMAN UNBORED人类不无聊”的品牌原点出发,以人类创造出飞行器、第一次离开地表圈的伟大瞬间为灵感,旨在打造一个充满想象力和创造力的空间。
希望通过这样的设计,让“空间起飞”,让顾客的想象力也随之出发。
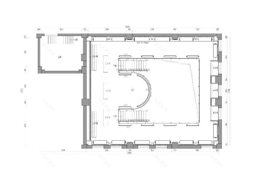
内场轴测图
潮流展览内场,以和飞行场所相关的“探索”与“停靠”动势统领内部创作。
为了更充分的利用旧工业建筑的空间,以向内叠级的手法,利用悬挑结构在空间的四周搭建出二层空间。
从而形成内场视觉中心的悬置平台,在悬置平台上打造了一个拟飞行场所的“停机平台”,给消费者提供一个可以“停靠”饱览内场场域的区域。
凝练设计语言转译为符号化在空间内部呈现,刚好“停机平台”装饰语言“H”与品牌名首字母的“H”高度契合,将其置于中心,地面运用和品牌蓝色相似的地毯与金属logo紧扣飞行场所这个超现实主题。
通过在内场顶面大量使用镜面材料让空间交相辉映,营造出一种摆脱地心引力的视觉效果,这种设计不仅让空间显得更加开阔和自由,更能够激发顾客的创造力和冒险精神。
区别于寻常的扶手栏杆,将航空飞机机翼横剖面的造型元素运用在楼梯和二层平台的金属栏杆上,让一层到二层的动态过程充满“探索”精神。
两侧用异形的LED构建成驾驶舱的监视器,后期通过视觉的变化,不断的丰富内部的惊喜感,充分展示空间超现实的感官体验。
种类繁多的商品,意味着必须有足够丰富的陈列方式和尽可能地高效利用空间,以更全面地展示商品。
搭建平台的置入制造出了两层环绕的选购传输通道,充分利用通道一侧的墙面作为多品牌的产品展示区能更好的在空间分层中聚焦产品的陈列突出产品的特征。
中间的控制台展示中岛,在HUB空间进行有主题性的漫游选购,在金属构件和水泥质地的墙面印衬下,布料的柔软愈发突出,而店铺中心则释放了更宽松的空间和高质量的陈列,实现分流及呈现不同的商品质感。
在HUB空间中,致力于将“空间特质”与“品牌属性”兼容并蓄,创造出让人具有超现实探索性,每次都能惊喜慢逛的店铺印象。
HUMAN UNBORED | 在成都进站停靠项目的成功落地,不仅为成都潮流群提供了一个全新的潮流艺术空间,更推动了成都潮流文化创意产业的发展。同时,该项目也展示了晓欧设计团队在空间设计方面的卓越能力和创新精神。
模型图
平面图
PROJECT NAME/项目名称:HUMAN UNBORED | 在成都进站停靠
LOCATION/项目地点:成都市成华区东郊记忆中央大道
AREA/项目面积:849.5.268560㎡
TIME/项目时间:2024年10月
STUDIO/设计机构:晓欧设计事务所
PHOTOGRAPHER/项目摄影:十聿
晓 欧 设 计
2020年,晓欧设计事务所(XIAOOU Office)成立于中国成都。事务所专注于建筑、室内设计,深耕餐饮、时尚、新零售业态领域,擅长材料和构型的再生长,相信设计驱动美好。
客服
消息
收藏
下载
最近





































































