查看完整案例

收藏

下载

翻译
Architects:BLDUS
Area:1600ft²
Year:2023
Photographs:Ty Cole
Manufacturers:Amorim,BamCore,Hempitecture,Jelinek,Pella EFCO,Vermont Natural Coatings
Lead Architects:Jack Becker, Andrew Linn
Structural Engineering:JZ Engineering
MEP Engineering:KK Engineering
Civil Engineering:CAS Engineering
Carpentry:Artwork
City:Washington
Country:United States
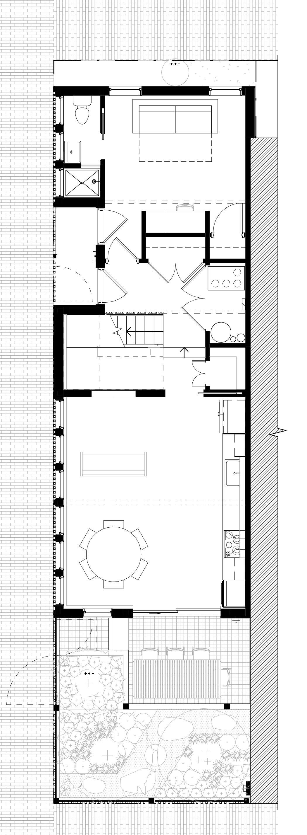
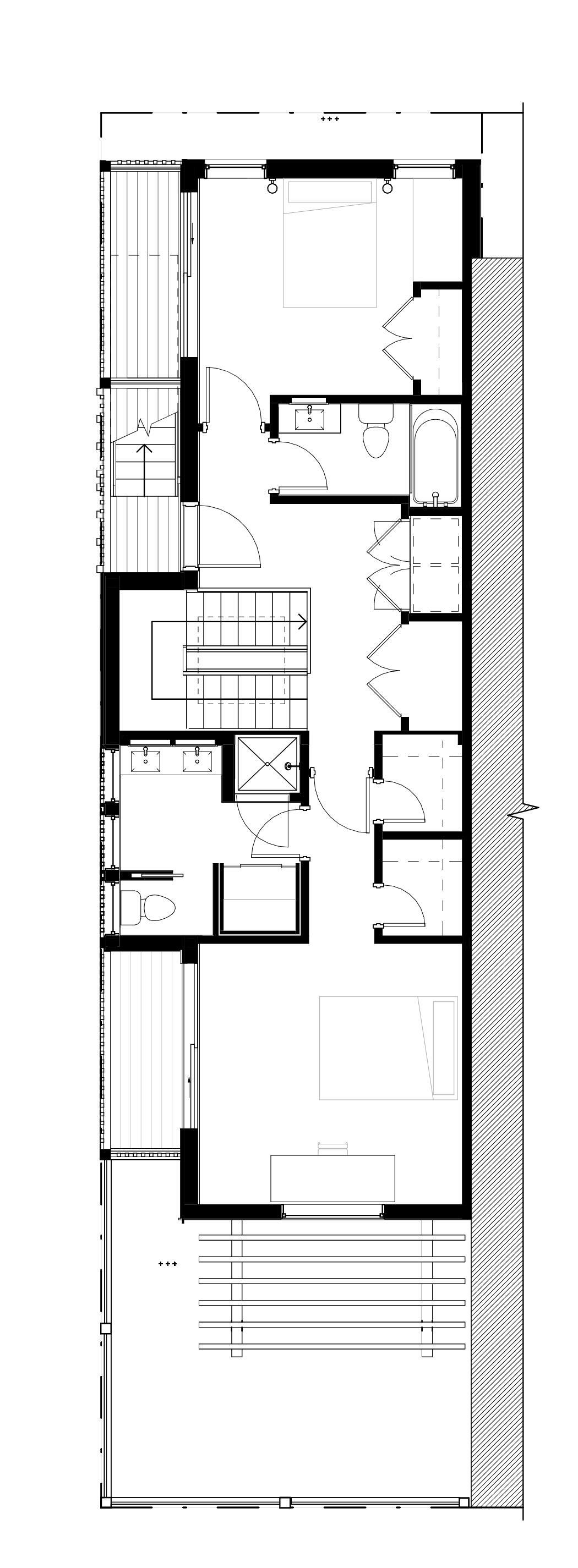
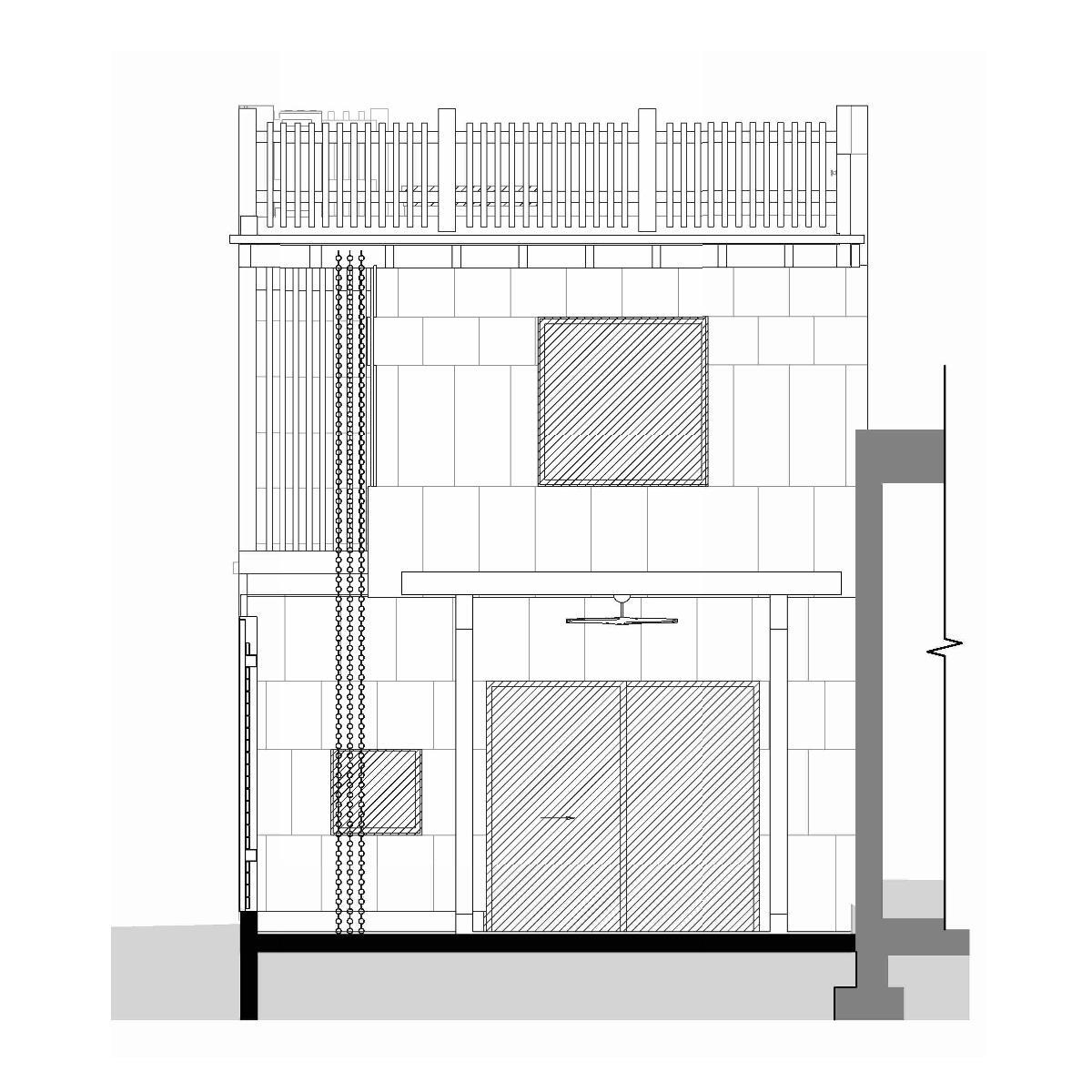
Text description provided by the architects. A single-family house in a newly named alley in Capitol Hill is an opportunity to elaborate upon a healthy material palette featuring black locust wood, cork cladding, hemp insulation, and bamboo structural walls. The design of the linear alley house strikes a balance between privacy and light, using balconies, a vestibule, a terrace, and a rooftop garden to mediate the site and its surrounding context. Durable black locust slats protect cork cladding, screen balconies, structure a fence, and provide fall protection on the rooftop. The exterior cork cladding is echoed by a spray cork finish on interior ceilings, while the bamboo structural panels are exposed on the interior and stained with PolyWhey, a by-product of the cheese industry. Cellulose and hemp insulation fill the hollow wall cavities and flat roofs. Copper details handle precipitation and highlight the layers of the house in Overbeck Alley.
Healthy material environments facilitate healthy lifestyles. Spaces made from healthy materials that are natural, straightforward, and recognizable allow people to relate to them at a visceral level more than anonymous painted-drywall spaces, endearing them to their users over time. Using materials ideally suited for their purposes throughout the houses pushes the role of materiality in the project beyond the purely aesthetic and symbolic. Apart from materials, the organization of the house encourages efficient and long-term living.
With a bedroom-bathroom suite on the ground floor, life could be lived entirely on the ground floor if necessary, and a daylit, switchback central stair leads to the second floor and rooftop. Brown House is defined by its material economies, from the efficient and cutting-edge hybrid bamboo-wood structural panels to its cellulose, cork, and hemp insulation to its rough-sawn black locust screens. Additionally, the house contributes to a broader mission in DC to add residential density wherever possible as a means to alleviate the housing shortage. Alley houses are full of complex, site-specific problems, yet recent municipal legislation was designed to encourage alley house development as one of several methods to encourage housing production.
Rooftop planter beds allow the inhabitants of Brown House to grow the majority of their diet during some periods of the year and supplement them during others. These beds utilize rainfall in the most direct way possible, feeding the plants growing in the beds. Rainwater that lands on the rooftop drains into cisterns that are used to irrigate plantings along the north facade and in the south garden. Materials were sourced as locally as possible and with as light a carbon footprint as possible while creating a structure that uses as little energy input as possible. The effort has been recognized: two different bird nests have already been made in the enclosed exterior spaces of the house during its first spring, a sign of recognition by the birds of the health and safety afforded by the house.
Project gallery
客服
消息
收藏
下载
最近














































