查看完整案例

收藏

下载

翻译
Architects:Rodapé Arquitetura
Area:926ft²
Year:2024
Photographs:Carolina Lacaz
Lead Architect:Luciana Ligeiro
Interns:Carolina Moraes, Eliza Previato, Fernanda Teixeira, Giulia Giagio, Mayumi Iwasse
Execution:M1 acabamentos + Lanco Engenharia
Facade:Fábrica de Fachadas
Illustrations Of The Nuu Espaço Facade And Suite:Layse Almada
Program:Motel
City:Tatuapé
Country:Brazil
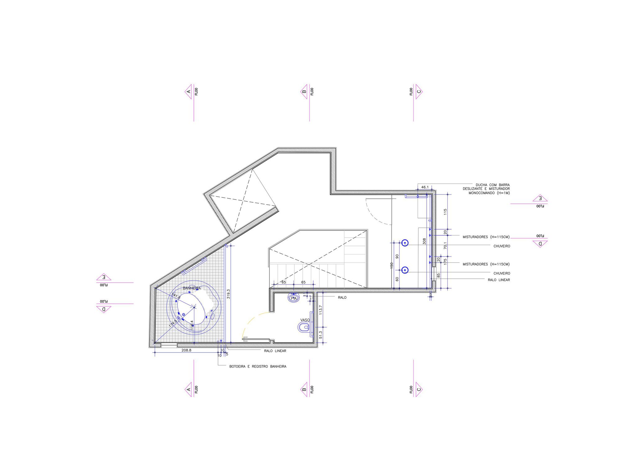
Text description provided by the architects. The Nuu.Motel project created a design methodology that initiated the Rodapé architecture office and is structured on the understanding that it is impossible to practice architecture without research. Research, in this specific project, aimed to identify common imaginaries of the motel space in Brazil to re-signify elements and propose new ones, with the goal of confronting sex as the main action of appropriating bodies in the created spaces - the suites. This sex should be light, fun, permissive, and still protected within four walls, preserving the anonymity that is so prevalent in the origins of Brazilian motels. The entire preliminary study took into account precisely what was preserved from this imaginary, what is re-signified from there, and what we would create anew.
In this particular suite, one of the challenges that arose was the dimension of accessibility. Beyond the architectural requirements established by current technical standards, thinking and designing an accessible motel suite means facing the relationship of bodies with space from the many ways of existing and experiencing sexuality. Thus, a space that is oriented towards sexual practices and seeks to be a place of pleasure cannot be accessible if it only meets the parameters of ABNT. The space needs to serve as a platform for experimentation and support for the most varied sexual practices and performances, accommodating and associating in distinct ways with multiple bodies in order to allow plural occupations and appropriations.
Can the material elements of a motel suite - bed, glass, mirror, etc. - function as prosthetics, that is, as external bodies to the subjects, but that associate with them in order to expand the extent and possibilities of a body? Can architecture challenge the boundaries between the body and the world, between inside and outside? Which spaces are capable of catalyzing bodily practices that challenge sexual and gender normativities?
Project gallery
Project location
Address:Tatuapé, São Paulo, SP, Brazil
客服
消息
收藏
下载
最近




























