查看完整案例


收藏

下载
高等教育设施, 教育建筑室内设计, 上海, 中国
建筑设计:同济大学建筑设计研究院
面积:50176 m²
项目年份:2020
摄影师: Yuan Ma
项目负责人:王文胜
建筑(含室内)专负&项目经理:史巍
建筑(含室内)设计:奚秀文、张帆、向萌
结构设计:耿耀明、胡锡勇、张思奇
给排水设计:赵晖、韩欣洋、冯玮
暖通设计:周鹏、李昊翔、苏志
电气设计:王坚、程贵华、郑剑锋
声学顾问:王静波、杨小军
何斐德设计团队:Frederic Rolland, Polly Lo Rolland, 刘志尧
委托方:上海音乐学院
合作设计单位:法国何斐德建筑设计公司
City:上海
Country:中国
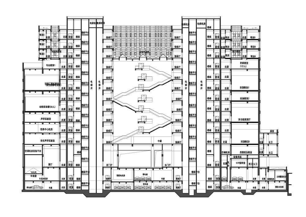
2013年,上海音乐学院筹备在零陵路530号(原上海中医药大学)扩建新校区,建成后将有6个系的教学实践及配套迁入。校园总用地面积38753㎡,通过整体规划、分期实施,一期的生活区先建,本项目是二期的教学区。二期用地面积19278㎡,总建筑面积 50176㎡,地上建筑面积36576㎡,地下建筑面积13600㎡,地上13层,地下2层。
首先是场地的限制:用地周边密布着住宅、中学、医院、老房子,满足日照、避免光污染、避免扰民、安全防范等一样不能少;还有北退地铁50米,南退保留建筑和三棵大雪松;建筑限高60米等。其次是造价的限制,建安费标准是参照普通高等院校的,不包含建筑声学额外所需;再有是周期的限制,作为校园建筑,9月开学是对设计建造周期的刚性要求……
除了上面的场地、造价、周期这些在其他项目多少都会遇到的难点,最后大楼需经得住使用者的检验。他们是出类拔萃的音乐专业人士,不乏世界级大师,职业令他们对声音的敏锐度是异乎寻常、远超常人的。因此,设计服务的重任是在各种限定中,创造性地将声学设计贯穿总体、单体、构造设计的全过程,为这所享誉海内外的高等音乐学府创造最佳的建声条件。
所幸的是,校园相邻的唯一一条城市道路的交通噪音大体能被两幢高层宾馆遮挡住;而来自地铁的固定传声,也因相距50米可大致忽略。因此,本项目最大挑战是如何将各类大小相差悬殊的各系用房合理布局,更重要的是如何确保各类声学用房的声学效果,且相互之间不能有噪音干扰。对于场地宽裕的音乐院校,通常是将各声学用房各自独立分散建造,从源头上避免空气传声和固体传声。而本项目在有限的场地内需容纳6个系的音乐教学和创作实践,因此,建筑注定成为集中布置、层叠向上的格局,后续须通过建筑声学方方面面的技术措施,确保声学质量。
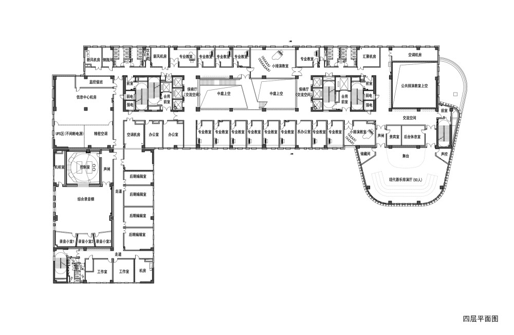
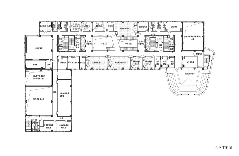
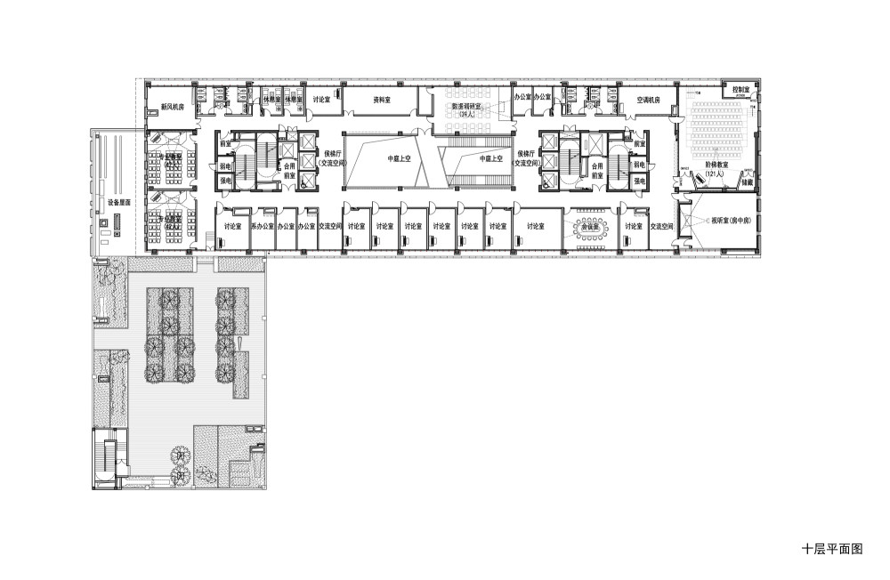
均衡布局:校方组织设计院和6个系的老师进行了多次交流,双方充分了解彼此,对大楼布局达成共识。根据各用房的不同声学及功能要求,将小空间的琴房、专业教室放在主楼,将挑空两或三层的动效拟音、综合录音棚、剧场及排演厅放在西侧9层和东侧5层;结构均衡布置,形态自然生成。在主楼内,6个系各用一层,与公共教学层共享8层高中庭,上下楼层有开敞楼梯相连。顶部三层是280间琴房,间隔着设置了三个屋顶庭院,这样差不多每个琴房都能有自然采光通风。
空间通透:局促的场地和多样的需求,更催生了对建筑空间通透性的强烈愿望。在大楼主入口设挑空2~3层的过街楼,向北和马路对面的南洋模范中学大门相望,向南和庭院空间渗透;过街楼两侧分别是教学门厅和实践基地门厅,两层挑空加落地玻璃,在入口区实现最大的通透感;同时在凸出主体的5层和9层屋面设有露天舞台和屋顶花园,丰富高区户外活动空间;在大楼内设置东西两组交通核,电梯厅均朝向中庭;在各楼层均设有两处可俯瞰庭院的开放交流空间。
土建隔声:根据ISO标准的噪音评价曲线(NR曲线),确定各用房本底噪声限值标准,从围护结构和空调通风系统两方面做好隔声;通过隔声墙、隔声吊顶、浮筑地面、房中房、隔声窗、隔声门、声闸等方法,提升空气隔声及楼板撞击声隔声性能;对录音棚、动效拟音、虚拟演播、排演厅、小剧场等声学要求较高的房间,均单独设置空调机房及消音风管;所有的机电设备均设置在金属阻尼弹簧隔振基础上。
室内声学:首先确定各用房混响时间,结合墙、顶、地装修,将吸声和声反射材料,均匀、交替布置,增加声音扩散,获得均匀声场。例如,为提高房间有效面积,确保琴房数量,突破常规梯形平面,琴房全采用矩形平面;经过声学计算,将墙、顶的吸、反声材料,合理配比布置,不仅得到良好声学效果,还设计有五种声学特性琴房,满足不同类型乐器的音质要求。
隔声墙:重质墙隔声最佳(70dB),本应作为首选,但由于本项目是高层,且房间多、墙也多,为减少自重,宜采用轻质墙与重质墙的组合,隔声量55-70dB,满足不同房间的隔声要求。本项目隔声墙种类达十多种。 隔声吊顶:在楼板下以弹性吊钩悬挂吊顶,上面放离心玻璃棉,隔声量50-55dB。
浮筑楼面:在双层钢筋混凝土楼板之间以双向600的间距,均布50至100见方的橡胶垫块,隔声量55-65dB。为控造价,对占比较大的专业教室均采用了局部浮筑楼面,即,仅在放钢琴的区域做局部浮筑楼面(房间地面面积的一半)。
房中房:采用隔声墙、隔声吊顶、浮筑楼面,内侧声学墙、顶、地与围护结构无任何刚性连接,隔绝空气声和固体声的传播。录影棚、视听室等声学要求极高的房间均采用房中房。 外窗及幕墙:采用不跨层的隔声窗,在窗子四周结合防火、防水做好封堵;石材幕墙在层间也做严格封堵,避免幕墙在跨层处因处理不当而传声。
经过业主、设计、总包等参建各方的共同努力,项目建成后,各类用房经过声学检测,均达到声学设计要求。在做设计回访时,师生反馈效果满意。我们自始至终将这个项目当作一件“乐”器而精心设计,希望能为上音师生打造最专业的音“乐”学习创作场所,营造快“乐”的教学空间,并希望在这里能诞生更多优秀音“乐”作品。
项目完工照片 | Finished Photos
设计师:同济大学建筑设计研究院
分类:高等教育设施
语言:简体中文
客服
消息
收藏
下载
最近




























