查看完整案例

收藏

下载
| 项目背景
项目地处北京一所弃用的制药工厂园区,需将老园区南侧部分做规划改造,包括原固体制剂车间、厂区绿地、室外场地及锅炉房等配套建筑,有限造价内通过适度改造形成适配美术教育的教学场地,作为厂区南侧既有美术教学校区的扩展区域。
改造要求旧建筑保持原有形态,其中体量最大的固体制剂车间为混凝土框架结构,内部空间通高,外部形态上下两分,头顶帽子的姿态轮廓颇具特点,车间南临柏油道路,北临园区绿地,南北自然形成不同的场地氛围。
| 场地特征
设计试图在保证校区基本使用的前提下,强化原有场地氛围:对室外环境而言,突出南向高效便捷的市井忙碌和北向陈旧荒废的寂静清幽,共现时代裂缝般的双向氛围。对室内环境而言,保留原有厂区的车间气息,一种高耸略带幽暗粗犷的工业氛围。
| 改造策略物体映衬环境 室外重新规划场地,场地环路配合活动场与停车场。保留北侧原始的厂区植被,并将改造的建筑外表统一处理,模糊厂区建筑间参差不齐的外表细节,意在突出原始体量的物体之感,如标尺般凸显南北各异的环境氛围,身临其境宛如历经时代穿梭。
模式组织空间
与以往传授教育模式的单一不同,美术教育机构秉承开放的教学态度,增添类美术学院的工作室模式与公开讲座般的讨论式模式,三类模式共存互补形成完整多元的受教体验。就空间的要求而言,讲授模式数量少面积大,同时兼具教学与展览的使用转换;工作室模式种类多数量大但面积较小;讨论式模式不强求固定位置,需要提供较多的弹性可能。
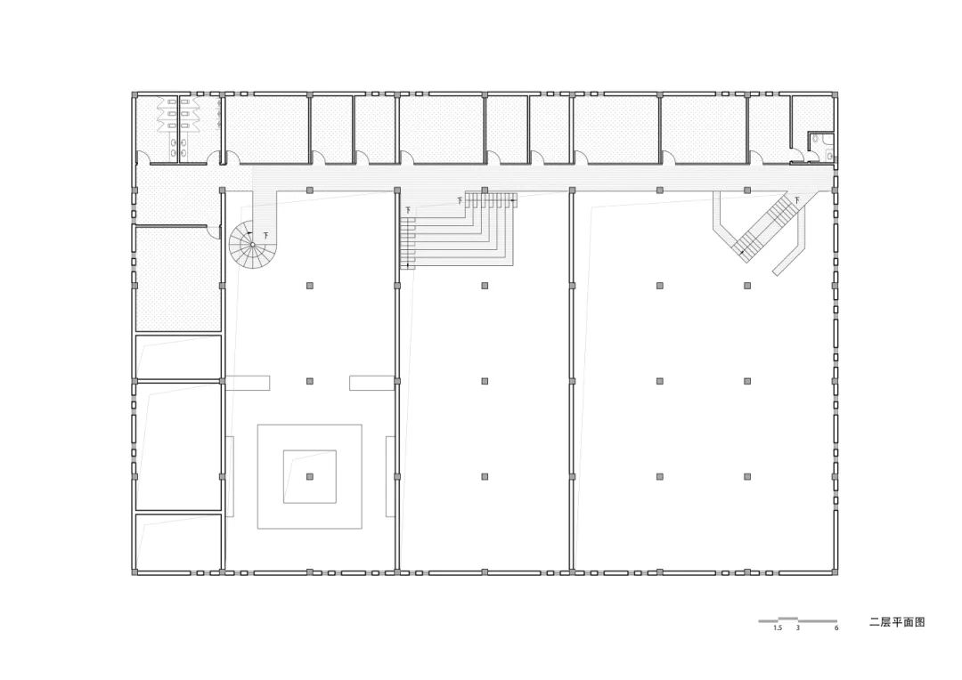
设计利用车间原始高度,将工作室模式教学区的诸多房间紧邻北侧做二层布置,车间南侧的通高空间做讲授模式教学,利用两类场所的交接边界,成为讨论式模式教学的发生地。
“夹心”三明治
交接的边界如三明治夹心,起到粘合和串联作用。“夹心”部分由三组构筑物组合完成,对应三组通高空间的使用布置。复合垂直交通的使用要求,支持展览、讲座、观演、秀场、评图、赏画、休憩等发散性活动,伴随讨论式教学的主动发生。
| 材料表达设计突出车间特殊的物体之感与粗犷的工业氛围,外部统一喷漆模糊旧立面参差的构造细节,仅保留原有材质的肌理特征。
内部同样保留原始材料肌理,裸露电气管线、照明灯具与暖通设备。视觉中心聚焦“夹心”部分。三组构筑物连同走廊形成剧场舞台与幕后通道般的联动场景,同为深灰色又因使用行为的差异,引发木头、钢板、石英石等不同的触觉感受。应对大空间的弹性展览需求,利用方管形成格构框架,以轻量的方式提供画作展览。
| 项目图纸
| 项目信息
项目名称:巅峰广艺校区扩建
项目地址:北京市,通州区
项目类型:园区规划,建筑改造
项目阶段:已建
用地面积:10650㎡
建筑面积:2400㎡
摄影:刘立强,BUFF Architects
客服
消息
收藏
下载
最近






















