查看完整案例

收藏

下载
本项目的客户是一家有着80多年历史的,如今已覆盖汽车内外饰等各种产品系统的全球化企业。其金桥工厂自2019年起,以柔性自动化、网联数字化和大数据智能化为智能制造实施路径,进行了全方位的数字化升级,已成为该企业第一个“黑灯工厂”---全球数字化样板工厂。金桥办公楼建成于2006年,距今已有约20年时间,空间已无法承载日益发展的办公、展示及接待需求。
▼ 门厅原始照片
▼ 改造后门厅
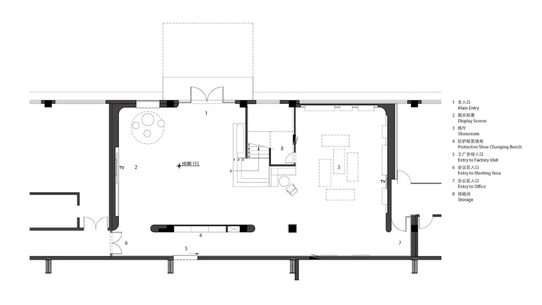
客户希望扩大原办公楼一层的门厅,增设一处小型展厅,在原本的访客数字化工厂参观流线上,增设成品产品的直观展示。同时该空间还需要作为办公门厅,满足员工日常上下班进出使用。通过调研沟通,设计师构想将原本老旧的空间转化为一个兼具未来科技感与温暖感的空间,期望通过空间微焕新,向外传递企业日益发展的科技创造精神,也向内激励员工在日常点滴工作中永葆创新活力。
在具体空间操作上,由于空间原本较为狭窄和低矮(梁下净高仅有2.8米),设计拆除了所有不必要的墙体,留出了一个简单的大空间,并在顶面设置了超薄发光天花,减轻较低层高带来的不适感。该空间由连续的白色水磨石地面和弥散着顶光的天花所限定。邻接南侧工厂的墙体为拥有磨砂金属光泽的蜂窝铝板。这是一个均质的,有着科技感的空间。它很轻,放大了空间感,同时也退远成为背景。
▼ 门厅
▼ 门厅望向展厅
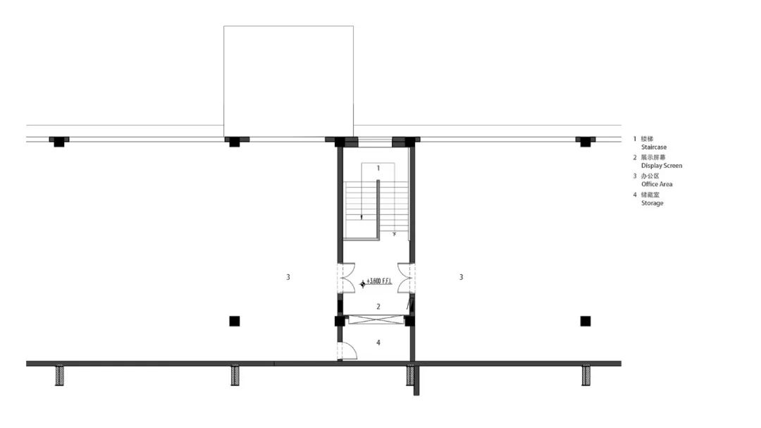
两个L形和一个直线形的木质体量独立在这个均质空间中。三个木质体量的位置关系,简单地围合和暗示了几个功能区和不同的流线规划:展厅参观流线,一层东侧办公区流线,一层西侧会议区流线,二层办公区流线,一层南侧进入工厂参观的流线。
▼ 轴测图
木材作为一种温暖的,最为人所亲近的材质,天然地拉近与人的距离。它们自身厚度的凹凸进退容纳了大部分需要近距离体验的日常功能:接待小坐,大屏幕展示,奖杯展示,产品陈列,换鞋凳,以及储存安全背心和防护鞋的衣柜与鞋柜等。温馨感的材质不仅提供了良好的触觉感受,同时也通过心理暗示拉近了科技产品与访客甚至最终使用者的距离。
▼ 展厅
▼ 展厅望向大厅
▼ 换鞋区
▼ 楼梯
▼ 剖面透视
在本次微焕新过程中,设计师紧密与客户团队各部门沟通合作,从决策管理、品牌、展厅策划、日常行政到工程管理各层级。我们发现,即便是参与这样一个小小的创新项目,几乎所有人都投入了积极的,精益求精的热情能量,在保持工匠精神之上,很多时候甚至自发地为我们设计提供了精彩的创新点和更高的要求。我想,或许这就是本次微焕新带来的最大的意外之喜吧。
▼ 细节
▼ 一层平面图
▼ 二层平面图
项目名称:大型企业的空间微焕新---上海金桥办公楼门厅及展厅
设计公司:多棵设计 Studio DOTCOF
设计团队:陈曦,沐淼
施工单位:上海路远建筑装饰工程有限公司
面积:289m2
完成时间:2024年08月
摄影师:沐淼
主要材质:水磨石,木饰面,蜂窝铝板,涂料,毛毡布料
客服
消息
收藏
下载
最近


























