查看完整案例

收藏

下载

翻译
Architects:I/O architects
Area:685m²
Year:2024
Photographs:Assen Emilov
Design Team:iara Jeliazkova, Georgi Katov, Rositsa Hristova, Stefan Apostolov
Structural Engineering:Neo Desk - Petar Chernev
City:Sofia
Country:Bulgaria
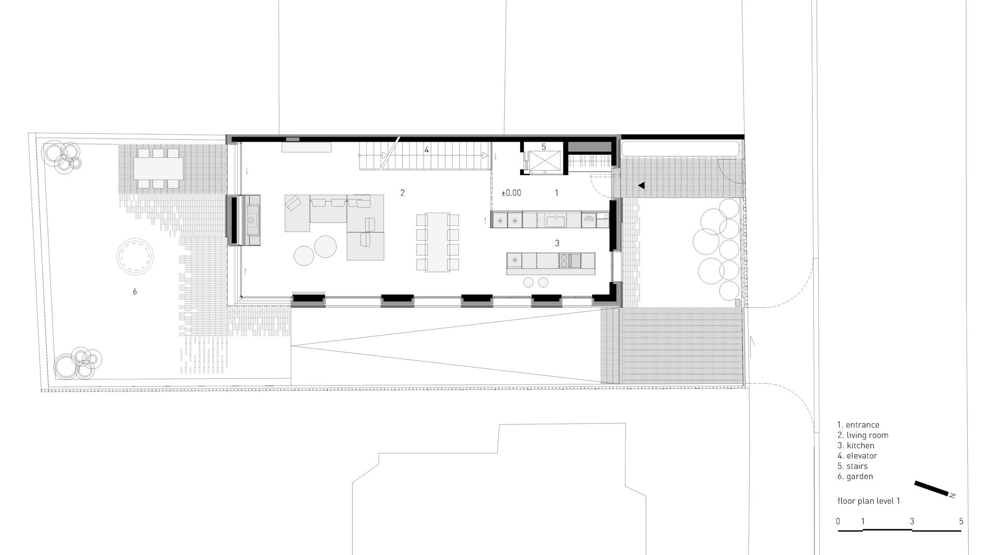
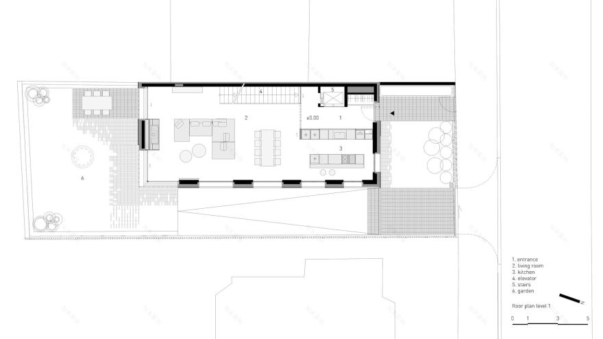
Text description provided by the architects. The single family house is located in a historic neighbourhood from the 1920s, planned as a low density, small scale transition to the adjacent city park. The simple volume of the house is surrounded from three sides by small courtyards.
The long and narrow grassy side part is essential in connecting the front entrance courtyard and the hidden, intimate back courtyard. In order to access the underground parking space the whole meadow could be raised in the air by a hydraulic system. The car parking and the inner courtyard are centered around a circle skylight. The size of the facade openings increases from the street towards the inner courtyard.
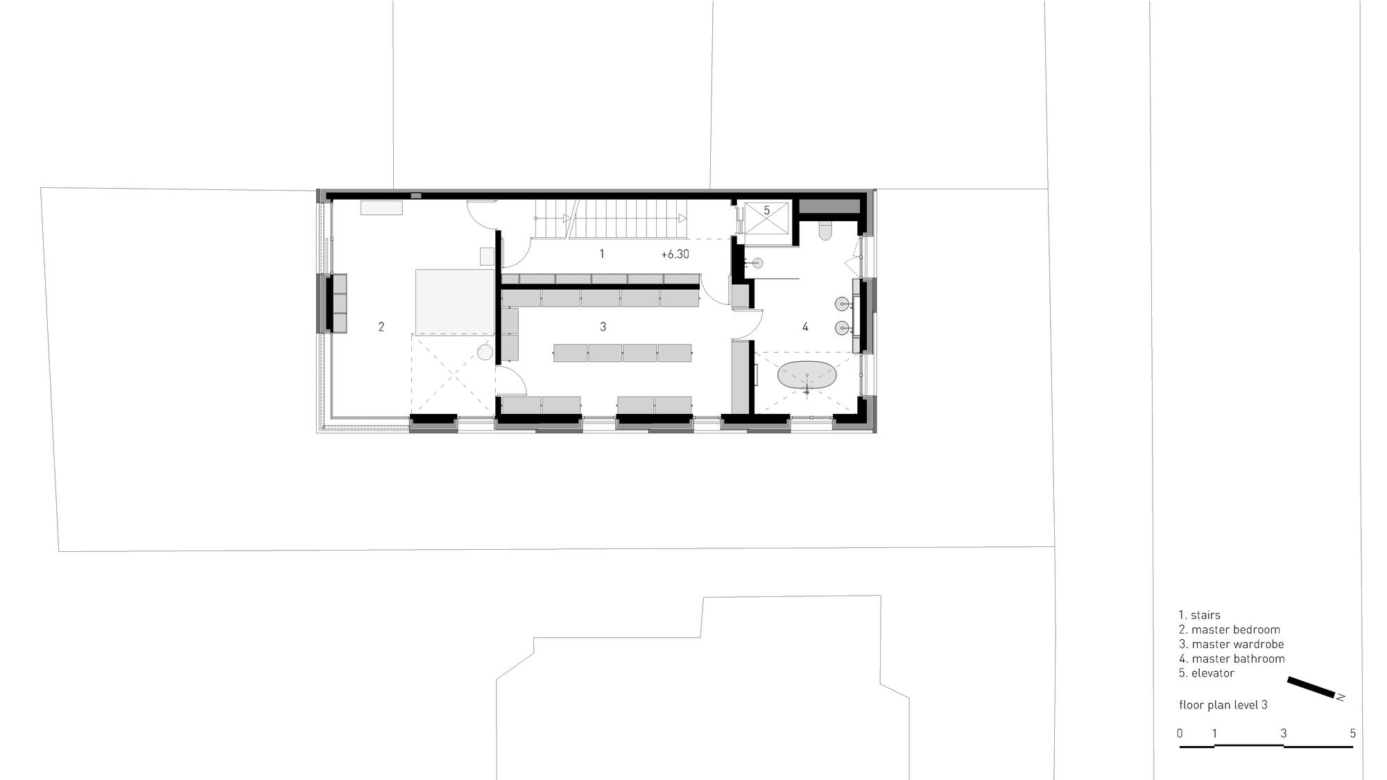
The materiality follows iconic historic examples nearby while the scale is additionally decreased by lowering the line of the roof material and introducing mirrored glass volumes on the fourth floor. The master-bedroom and study room areas on the third and the fourth levels are interconnected through the void spaces in those glass volumes. On the first level the living room fills the entire footprint of the house open in every direction. The internal spaces are dominated by concrete floors and ceilings balanced by walnut and fine metal elements.
Project gallery
客服
消息
收藏
下载
最近




































