查看完整案例

收藏

下载
业主夫妻俩有个女儿,妈妈平时住在一起照顾小孩;小朋友住的房间要有学习的空间,能辅导孩子。
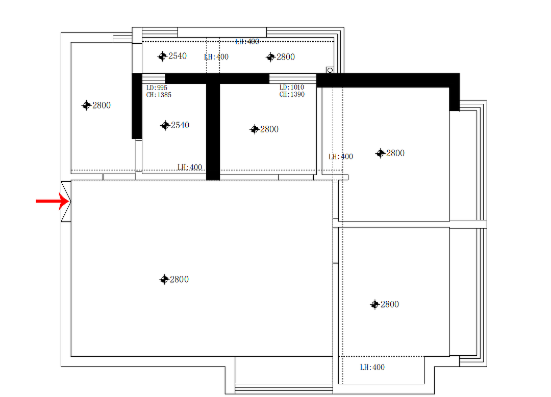
改造前:厨房里的生活阳台没有被完全利用上;进入卫生间要经过厨房;儿童房空间小,功能受限。
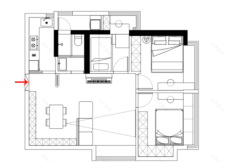
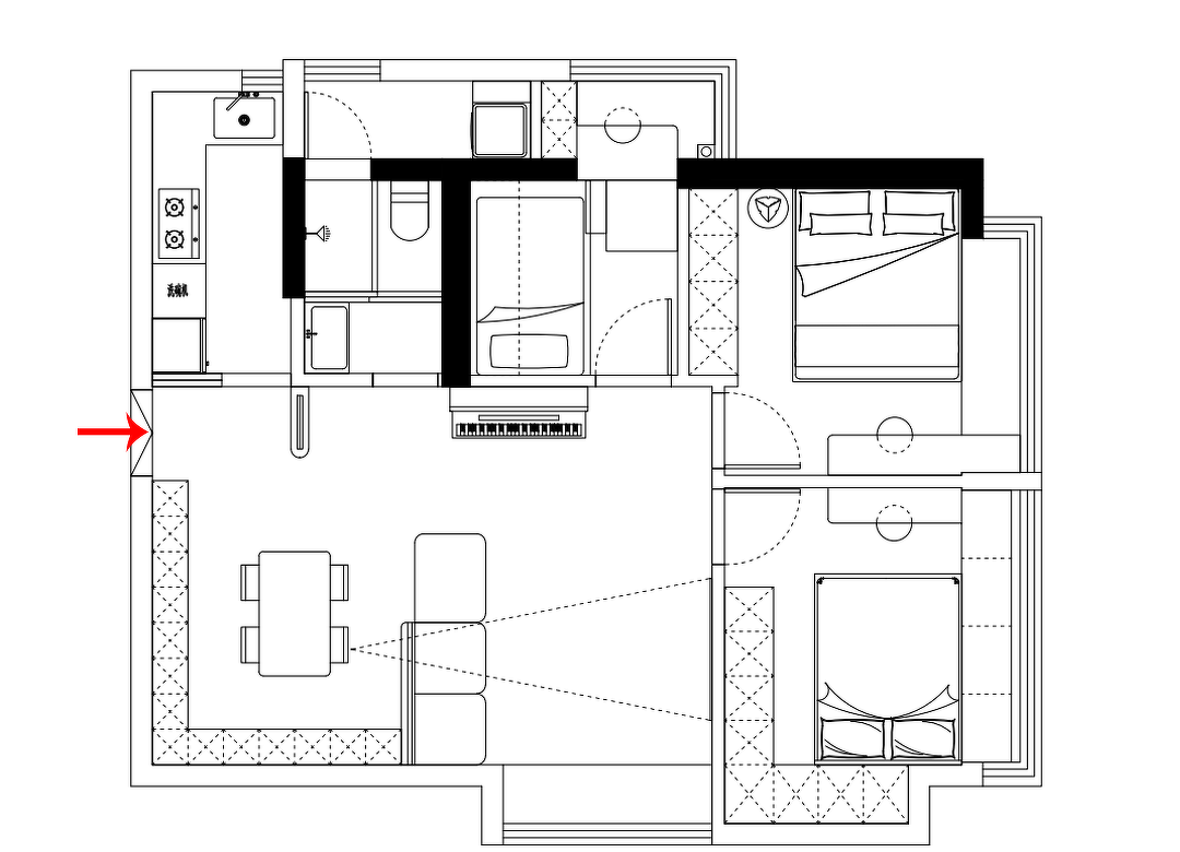
改造后:将竖厅布局改为横厅模式;改变卫生间入口,并将洗手台外置;生活阳台一半给儿童房一半给卫生间做洗衣房;儿童房设计上床下桌+衣柜。
进门的右手侧是与鞋柜一体的换鞋凳,底部做开放格,方便拿放常换的鞋;在正对入户门设计一道屏风,加入水波纹的玻璃,既避免了入户一览无余的尴尬,也营造了唯美的归家仪式感。
整屋的色彩都是比较素雅的,浅木色与白色相互映衬,营造出一种清新而舒适的氛围;沙发一侧的墙面设计格栅木饰面,塑造更亲近自然的空间,丰富墙面的层次感。
沙发不靠墙,位于客餐厅中间,巧妙地将两个空间分隔开来,增加空间的通透性;一旁摆放的钢琴成为了客厅的一大亮点,让每个角落都充满艺术气息。
拒绝了满墙电视柜的压迫感,简单的木色地柜和壁挂电视让空间更显得灵活。
餐厅与玄关处于同一空间,沿着转角的两面墙体定制顶天立地的组合柜,是鞋柜是家政柜也是餐边柜,轻松满足家中大量物品的收纳需求。
餐边柜的酒柜功能加入长虹玻璃柜门和拱形的做法简直是绝了!若隐若现的视觉效果,在灯带的烘托下,打造出独特的质感和氛围感,为生活增添了一份浪漫~
在屏风后面给自家的扫地机器人定制一个“小房子”,有了收纳柜的支持,清洁用品归类其中,整体看起来非常整洁。
与客餐厅不同的是,卧室地面铺设了木地板,增加温馨舒缓的睡眠氛围;床头背景还刷了粉色的乳胶漆,也给卧室增添了一份温柔和甜蜜的感觉。
依着空间结构定制入墙式衣柜,纯白色柜门搭配无拉手设计,并沿着转角向床体延伸出悬空的床头柜,视觉上轻盈清爽。
床尾设计悬空的书桌+吊柜,同时解决梳妆和居家办公的需求,利用了飘窗侧边打造一排收纳柜,扩大储物空间。
从门侧到床头定制L型大衣柜,靠床头的部分留空,下半部分不做柜门,飘窗上也增加了一排提拉式收纳柜,使空间利用达到最大化,大大满足生活需求。
为了让孩子有个良好的学习和休息空间,在扩大空间面积的同时,也采用上床下桌设计,还有个适合收纳小朋友衣物的小衣柜,节省了更多活动空间。
纳入儿童房的小阳台地面抬高打造地台式休闲区,用拱形门做隔断,斜坡做连接,大大增加了空间的设计感和趣味性。
使用双联动的玻璃推拉门作为厨房的隔断,增加空间的通透性;L型布局+淡绿色橱柜,不仅有着清新怡人的视觉效果,也有着井井有条的操作台面。
洗漱台外置在满足干湿分离的同时,也提高了卫生间的使用率,设计一道圆拱门,为室内带来圆润感和视觉上的延伸。
▲(客餐厅改造前VS改造后)
为了让客餐厅有更好的利用效果,将原本的竖厅变为横厅,从而定制收纳柜,让家能时刻维持干净整洁的状态。
▲(客餐厅改造前VS改造后)
增加无主灯的设计,能使光线均匀地照射在空间的每个角落,也增加了温馨的氛围。
▲(玄关改造前VS改造后)
定制柜的做法让出入变得更加方便,而屏风也让家多了一丝神秘和唯美的视觉效果。
▲(厨房改造前VS改造后)
改造后的厨房比原先的清新明亮,也不会有压抑感。
▲(餐厅还原)
为了让效果能1:1落地还原,整个过程设计师倾入了许多心思与时间。
▲(客厅还原)
反复对照效果图确认细节,每个环节一一验收,不达标的地方继续进行优化,最终让理想照进了现实。
客服
消息
收藏
下载
最近



















































