查看完整案例

收藏

下载
森野长廊位于野岛文化生活社区的 C 区,社区前身是建于 1951 年的东江粮酒厂,在保留原有 18 栋楼群及景观肌理的基础上,自 2019 年开始改造后逐渐成为惠州最具活力的文化社区。
BDSD 吾界设计与野岛的故事始于 2021 年,我们在这里打造了一个独立书店——上野书屋。
2022 年,我们再次对野岛公共花园“野趣绿洲”完成更新,到 2024 年又进行了野岛 C 区公共区域的改造。
The Wildness Promenade is located in Zone C of the Wild Island Cultural & Life Community. The predecessor of the community was the Dongjiang Wine Factory built in 1951. On the basis of retaining the original 18 building groups and the landscape texture, it has gradually become the most vibrant cultural community in Huizhou since the renovation started in 2019.
The story of BDSD Boundless Design and Wild Island began in 2021. We created a bookstore, Ueno Bookstore. In 2022, we once again completed the renewal of the public garden of Wild Island, and in 2024, we carried out the renovation of the Zone C of Wild Island.
▼鸟瞰,aerial views© 林绿
本次改造设计以“森野长廊”为主题,用新旧交错的方式延续场地精神和氛围,并以新的建构体打造全新的记忆点,让人们在穿行中感受新与旧的碰撞与融合。在点、线、面三个维度上将景观、廊道、广场、建筑进行链接,创造出不同尺度的开放空间,实现横向与纵向的丰富层次和界面。
Take “Wildness Promenade” as the theme of this renovation, we continue the spirit and atmosphere of the site in a way that interweaves the old with the new, and creates brand-new memory points with new structures, allowing people to experience the collision and integration of the new and the old as they walk through. It links landscapes, promenades, squares and buildings in the three dimensions of points, lines and surfaces, creating open spaces of different scales and realizing rich horizontal and vertical layers.
▼项目区位图,location© BDSD 吾界设计
▼项目改造前,before renovation© BDSD 吾界设计
▼三次改造项目分布图,renovation of three stages© BDSD 吾界设计
连廊:构筑流畅的动线 Corridors: Construct Smooth Circulation Lines
70 多年前的老厂房粗犷而厚重,残留的建筑相互独立缺乏系统性。要将建筑和商业空间结合,让人产生漫游的乐趣,需缝合现有场地的割裂感,一面是考虑原始建筑条件,一面是弥补老建筑与新的应用场景之间的差距。
The old factory buildings from over 70 years ago are rugged and imposing. The remaining structures stand independently, lacking a systematic layout. To integrate the architecture with commercial spaces and create a sense of enjoyment in wandering, it’s essential to bridge the fragmented feel of the existing site. On one hand, we must consider the original architectural conditions; on the other, we need to bridge the gap between the old buildings and new application scenarios.
▼改造后,after renovation© 林绿
▼街巷与庭院,alley and courtyard© 林绿
▼改造后的老厂房,the old factory after renovation© 林绿
保留,是对历史建筑改造最好的设计表达。为避免不必要的拆改,BDSD 吾界设计重新梳理动线,以轻量化的空中连廊与上下的楼梯串联空间,带来整体的流畅体验,在动线上拓展单一的漫步功能,优化了二层空间的可达性,兼具了老建筑的保护和创新。
Preservation is the best design expression for the renovation of historical buildings. To avoid unnecessary demolition and modification, we have reorganized the circulation lines, connecting the spaces with lightweight skybridges and stairs, bringing a smooth overall experience. It expands the single wandering function on the circulation lines, optimizes the accessibility of the second-floor, and combines the protection and innovation of the old buildings.
▼轻量化的空中连廊与上下的楼梯,lightweight aerial corridor with stairs up and down © 林绿
▼立面,facade© 林绿
▼轻量化的结构,lightweight construction© 林绿
▼现代简约的钢材与混凝土墙,modern simple steel and concrete walls © 林绿
▼细部,details© 林绿
台阶:微小尺度的细腻重塑
Steps: Delicate Remodeling on a Micro Scale
C 区靠近园区出口的一侧在改造前缺乏吸引力,游人很少通过它进入整个园区。BDSD 吾界设计希望通过出口的改造,让建筑与行人通道一体化,将出口处的几栋建筑串联在一起,既丰富游园体验,又能吸引游人前来打卡。开放式的功能既作为通道,又可以成为台阶广场,满足节假日时的庆典所需。踏上台阶,建筑间开阔的道路在轴线上与标志性的老烟囱相连接。
▼分析图,analysis diagram©BDSD 吾界设计
Before the renovation, the side of ZoneC close to the park’s exit was unattractive, and few visitors would enter the entire park through it. BDSD BoundlessDesign hopes that through the renovation of the exit, the buildings can be integrated with the pedestrian paths, and be connected in series. This will not only enrich the park visiting experience but also attract visitors to come and take pictures. The open function serves as both a passageway and a stepped plaza, meeting the needs of celebrations during holidays. When stepping onto the steps, the open roads among the buildings are connected with the iconic old chimney on the axis.
▼远观,viewing the project at distance© 林绿
▼台阶,steps© 林绿
▼近景,closer views© 林绿
▼细部,details© 林绿
▼俯视,overlooking© 林绿
▼由街巷看台阶,viewing the steps from the alley© 林绿
▼细部,details© 林绿
野性:自然的粗犷 Wildness: The Ruggedness of Nature
设计师希望于无形中呈现自然的魅力。保留原来高大的植物,打造一处让植物可以随意生长的荒野花园,自然的无序与人工的精巧几何相碰撞,加强了老建筑的氛围感。工业风所凝固的时间与自然的四季枯荣交织,现在与未来逐渐融合。
The designer hopes to present the charm of nature invisibly. By preserving the original tall plants and creating a wild garden where plants can grow freely, the disorder of nature collides with the exquisite geometry of human craftsmanship, enhancing the ambience of the old buildings. The time frozen in the industrial style is interwoven with the natural cycle of growth and withering in the four seasons, and the present and the future are gradually merging.
▼自然的无序与人工的精巧几何相碰撞,the disorder of nature collides with the exquisite geometry of human craftsmanship © 林绿
▼荒野花园,wild garden© 林绿
▼工业风所凝固的时间与自然的四季枯荣交织,the time frozen in the industrial style is interwoven with the natural cycle of growth© 林绿
▼细部,details© 林绿
“一个生长中的生活街区”,是 BDSD 吾界设计在野岛历时 4 年的更新中持续秉持的宗旨。空间是一个容器,它可以承载人们的喜悦、激动与惆怅,可以赋予历史与老建筑新的活力。每一次的设计更新只是个起点,留出了成长的可能性才是把空间真正还给人。
“A growing living block” is the principle that BDSD BoundlessDesign has continuously adhered to during the four-year-long renewal of Wild Island. Space is like a container that can hold people’s joys, excitements, and melancholy, and can endow history and old buildings with new vitality. Each renovation is just a starting point, and only by leaving room for growth can the space truly be returned to people.
▼建筑细部,details of the architecture© 林绿
▼细部,details© 林绿
▼室内细部,details of interior© 林绿
▼设计手稿,design manuscript©BDSD 吾界设计
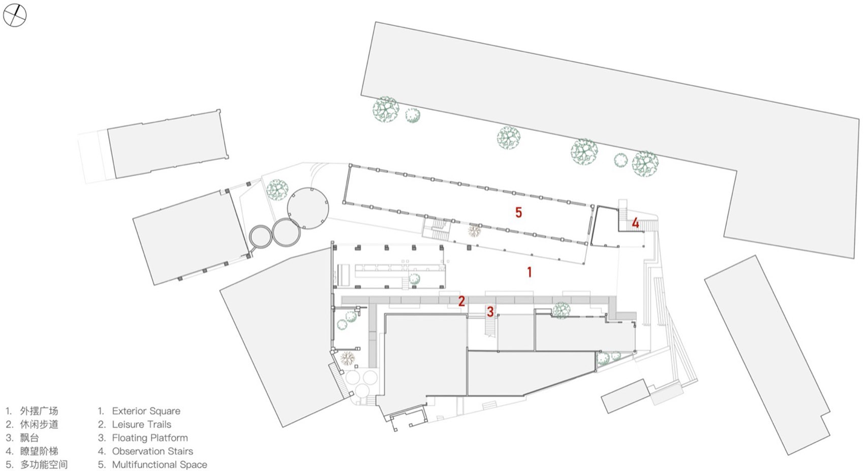
▼总平面,site plan©BDSD 吾界设计
▼立面分析图,elevation drawings ©BDSD 吾界设计
项目名称:森野长廊
项目类型:公共空间
设计方:BDSD 吾界设计
项目设计:2024
完成年份:2024
设计团队:林文科、孙征远、潘美嘉、何海权、邬锐康、徐朝阳、苏日贤
项目地址:广东省惠州市惠城区野岛文化生活社区
建筑面积:2000㎡
摄影版权:BDSD 吾界设计,林绿
客户:野岛文化生活社区
Project name: Wildness Promenade
Project type: public space
Design: BDSD Boundless Design
Design year: 2024
Completion Year: 2024
Leader designer & Team: Lin Wenke,Sun Zhengyuan,Pan Meijia, He Haiquan, Wu Ruikang, Xu zhaoyang, Su Rixian
Project location: Wild Island Culture & Life Community, Huizhou, Guangdong
Gross built area: 2000㎡
Photo credit: BDSD Boundless Design, Greenimages
Clients:Wild Island Culture & Life Community
客服
消息
收藏
下载
最近





















































