查看完整案例


收藏

下载
建筑设计:Resell+Nicca
面积:66 m²
项目年份:2021
摄影师: Olav Resell
厂家:Kingspan Insulated Panels, Moelven, Oslo Finerfabrikk, RAD, Swisspearl
项目设计:Olav Resell, Nicca Gade Christensen
City:Oslo
Country:挪威
设计师描述 | Designer description:
2019年一对刚生下第三个孩子的夫妇联系了我们, 想要加建他们位于奥斯陆的半独立住房来增加居住空间。 现有的房子位于一个长满松树的山坡顶上,往南风景极佳。我们在项目初期就意识到把加建放在现有建筑的东南方就可以好好的利用这片景色, 在新与旧之间建立一个通透的连接,并理清建筑内部的逻辑。 但这个项目有一个很大的挑战,就是当地的市政对于每个地块可用的户外空间有明确的要求, 而我们的场地满足不了。
所以为了取得建筑许可我们得找到一个让加建本身增加户外空间的方法, 一个本身就很矛盾的挑战。 如何在户外空间建设的同时增加户外的空间呢?解决方案是把加建放在斜坡上。 这样一来我们就可以用加建出来符合户外居住空间定义的屋顶露台取代因为太陡而不符合要求的区域。
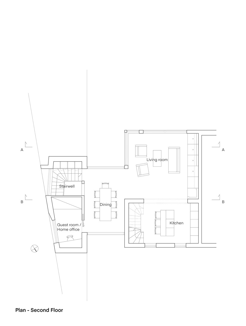
在斜坡上加建同时满足了客户的其它的几个愿望,把住宅与一个在坡道底的废弃低地花园相连,并把一个停车棚整合到了新加建的结构里。我们希望用狭窄的斜坡部分来定义加建的宽度,并想要加建结构 有一个独特的直立外形,这意味着我们要强化‘高且窄’的观感,同时不在功能性上妥协。
我们用几个做法实现了这一效果,首先把三层的玻璃桥向内收回并打开来凸显竖塔本身,而在车棚底下延伸出的首层空间则只能在塔的底部才能看到,屋顶露台上的扶手则用密集的排列构成了塔的顶端。同样的设计方法也被应用到了竖塔的两头,东南朝向的立面有大面窗户能看到附近的松树和松树背后的地平线,并向里收使得窗户在立面末端的宽度保持在最小。 房子的主入口被移动到了新结构的二层,利用了塔中部和最窄处的空间。
一段台阶引领人从入口门厅向下到达首层的studio公寓,再往下到公寓旁的低地花园,往上则到达主要的生活区域。新的餐厅占据了桥体,同时旧房墙上开口将旧房与新的桥和加建结构连接到了一起。 主生活区域占据了一整层空间,而落地窗则为这一空间提供了多样的风景, 包括附近区域和远处的奥斯陆峡湾。
另一个在现有房子里的楼梯则提供了去上层以及屋顶露台的通道。我们想使用一种能同时强调塔楼形状并增加东立面细节的材料。 出于其在建筑上精确,不反光且低调的表现,我们选择了胶粘安装的纤维水泥板,因为我们觉得这些的特质使得其与现有住宅上稍粗糙一些的砂浆墙互补。 加建的室内空间使用了附近产的挪威木材,包括承重结构用的云杉木,墙与楼梯扶手使用的桦木胶合板,白杨木做的天花板条,以及地板,楼梯,门和窗户上使用的松木,与室外形成了一种温暖的对比。
译者:何雪临
项目完工照片 | Finished Photos
设计师:Resell+Nicca
分类:独立住宅
语言:简体中文
客服
消息
收藏
下载
最近



























