查看完整案例

收藏

下载
2025 年 1 月,萨夫迪建筑事务所与嘉里建设携手宣布,秦皇岛海碧台(Habitat Qinhuangdao)二期项目圆满落成。秦皇岛地处渤海湾,距离北京约 300 公里,被誉为“北京后花园”。海碧台项目坐落于秦皇岛市中心的金梦海湾。
作为中国首个栖息地作品,海碧台一期于 2016 年建成开放,二期规模超一期一倍有余,形成了一个 1800 多户的活力社区。社区公共空间从地面到天空,配有大型地面社区景观花园、私人露台花园以及公共天台花园等,共计超 16 万平方米。这些特别设置的社区公共空间,将进一步完整地诠释建筑空间对社区营造的积极影响与作用。
January, 2025 (Qinhuangdao, China) – Safdie Architects and Kerry Properties announce the completion of the second phase of Habitat Qinhuangdao, a high-density residential complex located on the coast of the Bohai Sea, 200 miles east of Beijing, China. This phase more than doubled the size of the initial development, which opened in 2016, to form a vibrant community of over 1,800 households with access to over 40 acres (16 hectares) of gracious public gardens, terraces, and recreational spaces on the ground and in the sky, which is going to fully interpret the positive impact and role of architectural space on community building.
▼项目概览
Overall view
© Copyright: Safdie Architects, Photographer: SFAP
秦皇岛海碧台的设计源自建筑师摩西·萨夫迪(Moshe Safdie)于 1967 年蒙特利尔世博会创作的都市人居代表作“栖息地 67”(Habitat ’67)。跨越 50 余年,海碧台不仅重申了“栖息地 67”所倡导的设计原则和价值思考,也再次印证了这一理念的高度扩展性和广泛适应性。通过优先考虑日照、自然通风、景观和室外绿色空间,海碧台创造出一个充满活力的滨水社区,为人居赋予传统大规模开发中鲜有的高品质生活,既培育社区精神,更滋养人与自然的联系。
Habitat Qinhuangdao’s design draws on the principles and values pioneered in Habitat ’67, Moshe Safdie’s groundbreaking urban housing project created for the 1967 World Exposition in Montreal. More than 50 years later, Habitat Qinhuangdao reaffirms the concept as highly scalable and widely transferable. By prioritizing daylight, natural ventilation, views, and outdoor green space, Habitat Qinhuangdao creates a vital waterfront neighborhood that nurtures community and fosters connection to nature—conditions that deliver quality of life rarely achieved in large-scale, high-density development.
▼远观,Distant view © Copyright: Safdie Architects, Photographer: SFAP
不断发展的中国城市对高品质多户住宅的需求,使我们能将“栖息地 67”的设计理念应用于更大的城市密度之中。通过消解其巨型规模,秦皇岛海碧台被打造为高密度人居的典范,在提供超越典型高层综合体环境设施的同时,却并未牺牲其结构效率和人性关怀。
——摩西·萨夫迪,萨夫迪建筑事务所创始人
The demand for quality multi-family housing in China’s growing cities has allowed us to apply the principles that informed Habitat ’67 at a greater density,” said Moshe Safdie, Founding Partner of Safdie Architects. “By breaking down the mega-scale, Habitat Qinhuangdao is a model for high-density housing where the amenities surpass that of the typical high-rise complex without sacrificing the structure’s efficiency or humanity.”
▼海滨之景,Seaside view © Copyright: Safdie Architects, Photographer: SFAP
▼鸟瞰,Bird’s eye view© Copyright: Safdie Architects, Photographer: SFAP
整个建筑由一系列 16 层高的模块堆叠而成——这些模块交错组合,在底层被花园环绕,并通过 17 层和 32 层的空中走廊彼此相连。错落有致的建筑形态不仅创造出一系列私人露台、阳台和阳光房,而且打造出连接人文城市和自然海景的巨型“城市之窗”,使空间尺度更人性化,同时建立起建筑与环境的联系。一方面,建筑的长立面朝向东、西和南,可直享海岸阳光;另一方面,北向的室内空间也能通过巨大的“城市之窗”获得充足的日照。因此,整个项目都给人以明亮、敞阔和开放之感。
For Habitat Qinhuangdao, Safdie Architects organized the housing into a series of stacked residential blocks of 16 stories that are offset and surrounded by gardens at the base and linked via skybridges at the 17th and 32nd floors. The buildings’ stepped and staggered forms create private terraces, balconies, and solariums and enclose grand “urban windows”—view corridors between the city and the sea—that humanize the scale and connect the development to its context. The buildings’ long elevations face east, west, and south to take in sunshine. North-facing interiors borrow light that filters through the large urban windows. As a result, the development feels bright, airy, and open.
▼交错的模块组合,Staggered module combination
© Copyright: Safdie Architects, Photographer: SFAP
▼建筑立面,Facade
© Copyright: Safdie Architects, Photographer: SFAP
▼立面近景,Facade close view
© Copyright: Safdie Architects, Photographer: SFAP
嘉里建设是一位目光远大的客户,他们看到了我们的设计理念如何与当地文化和环境产生共鸣。当你将住宅单元相互错开,使建筑稍稍退离大海,就会创造出美丽的露台,让每个住宅单元都像海景套房一般。这个项目既具有视觉的趣味性,也具有内在的理性。——Sean Scensor,萨夫迪建筑事务所高级合伙人,秦皇岛海碧台项目负责人
“In Kerry Properties we had an ambitious client who saw how our design philosophy would resonate with the local culture and context,” said Sean Scensor, Senior Partner, and Partner-in-Charge of the project for Safdie Architects. “When you stagger and offset units from one another, stepping the buildings away from the sea, you create beautiful terraces that make each unit feel like a penthouse. The project is simultaneously visually intriguing and inherently rational.”
▼附近街道视角,Street view© Copyright: Safdie Architects, Photographer: SFAP
▼从附近公园看向建筑,View of the building from a nearby park © Copyright: Safdie Architects, Photographer: SFAP
建筑周围是一系列生机盎然的公园,彰显着秦皇岛本地的景观,让居住者既可习若自然地享受休闲,亦可随心所欲地娱乐其中。通过排列不同的地形、多样的植物以及有趣的设施(山丘花园的圆形剧场、云水花园的露台泳池、嬉林花园的花园廊架,以及探奇花园、溪水花园等),每一个住区的花园都提供着独一无二且层层递进的丰富场地体验。此外,部分社区花园和游泳池还设置于连接住宅模块的天桥之上,以一种与众不同的户外体验,邀请人们步入海景、城市和天空之间。
Surrounding the buildings are a series of intensively planted parks that celebrate Qinhuangdao’s natural landscape and support both passive and active recreation. Each park offers residents a different experience, rich and layered with varied topography, diverse flora, and engaging amenities, which include adventure playgrounds, a landscaped amphitheater, planted promenades, and water features. Additional community gardens and pool areas occupy the skybridges that link the residences and provide novel outdoor experiences amidst views of the sea, city, and the sky.
▼鸟瞰花园,Bird’s eye view of the garden© Copyright: Safdie Architects, Photographer: SFAP
▼俯瞰花园,Overlooking the garden© Copyright: Safdie Architects, Photographer: SFAP
▼天桥之上的空间,Skybridge space© Copyright: Safdie Architects, Photographer: SFAP
▼天桥之上的花园,Skybridge garden© Copyright: Safdie Architects, Photographer: SFAP
16 万平方米的社区公共空间与景观花园,不仅促进了人与自然的亲近交流、和谐共生,更为社区营造提供了多场景的日常社交空间。约 5500 平方米的艺术中心兼具展览、精品餐饮、咖啡等多种功能,加之遍布地面和空中的景观及配套设施,为居民提供了丰富的文化与休闲空间,既可举办运动、亲子、艺术、人文、诗歌等社群活动,更有季节性社区内采摘、出海垂钓、博物地理等特别策划活动,使海碧台成为了一个充满活力的立体花园社区。
The 160,000 square meter community public space and landscaped gardens not only foster intimate communication and harmonious coexistence between humans and nature but also provide multiple daily social spaces. The approximately 5,500 square meter art center, which combines exhibition spaces, fine dining, and coffee, along with the landscape and supporting facilities on the ground and in the sky, offers residents a rich array of cultural and leisure spaces. It is not only suitable for community activities such as sports, families, art, humanities, and poetry but also supports special events like seasonal fruit and vegetable picking, sea fishing, and garden exploration, making Habitat Qinhuangdao a vibrant and three-dimensional garden community.
▼从天桥上的花园看向建筑体量,View of the building from the garden on the skybridge © Copyright: Safdie Architects, Photographer: SFAP
▼露台,Terrace© Copyright: Safdie Architects, Photographer: SFAP
回看海碧台的设计之源,来自“栖息地 67”的“一人一花园”(For Everyone A Garden)理念,不仅拉近了人与自然的距离,更拉近了人与人之间的距离。这一极具生命力的理念,一直推动着萨夫迪建筑事务所进行跨越建筑类型、地理、尺度和时间的设计实践。
2010 年,萨夫迪建筑事务所在为期一年的学术研究项目“未来栖息地”(Habitat of the Future)中,将“栖息地”的概念应用于不同的空间尺度、城市密度、气候环境及文化背景下,重新审视了其基本原则。而在专业研究和深刻洞察之上,这一概念的发展更扎根于其在不同城市的落地实践,包括新加坡的 SkyHabitat(2016)、斯里兰卡科伦坡的 Altair(2021)、厄瓜多尔基多的 Qorner(2022)以及中国秦皇岛的海碧台(2024)。
每一次迭代,既回应了场地、环境和文化的独特性,又保持了设计团队基本目标的一致性,即营造充满活力的宜居社区——秦皇岛海碧台正是迄今为止实现这些理想的最大实例。
Habitat 67’s animating belief—“for everyone a garden”—continues to propel Safdie Architects’ design approach across typologies, geographies, scales, and decades. In 2010, Safdie Architects reexamined its foundational principles in a year-long research fellowship, Habitat of the Future, which tested the concept at different scales, densities, climates, and cultural contexts. Habitat Qinhuangdao’s design draws on insights from this research, as do Safdie Architects’ other recent Habitat urban housing developments—SkyHabitat in Singapore (2016); Altair in Colombo, Sri Lanka (2021); and Qorner in Quito, Ecuador (2022). While each iteration offers a unique response to site, context, and culture, the underlying goal of the design team is consistent: to create vibrant and livable communities. Habitat Qinhuangdao is the largest built example of these ideals to date.
▼总平面图,masterplan© Safdie Architects
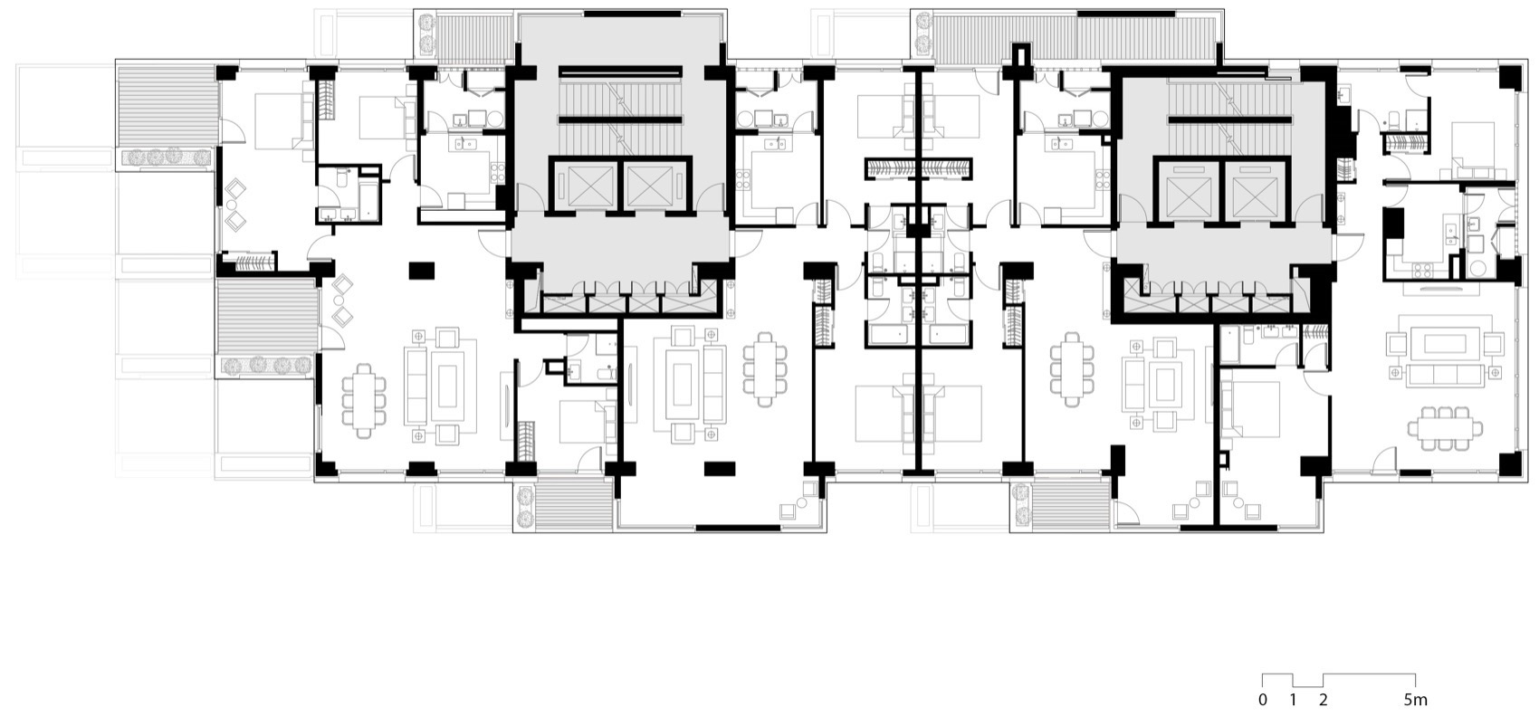
▼模块 D 平面图,block D plan© Safdie Architects
▼立面图,elevation© Safdie Architects
项目信息
建筑面积:401,950 平方米
项目一期 – 152,450 平方米
项目二期 – 244,000 平方米
艺术中心 – 5,500 平方米
场地面积:194,000 平方米
建筑师:萨夫迪建筑事务所
项目负责合伙人:摩西·萨夫迪, Charu Kokate, Sean Scensor, Chris Mulvey, Warren Mathison
项目团队:David Orens (项目总监), Benjy Lee, Carrie Yoon, Daniel Cho, David Brooks, Fred Kim, Lusha Wainford, Michael Guran, Nan Xiang, Paige Mader, Shiyun Qian, Ye Yang
设计及建设团队:
本地设计机构: 中国建筑上海设计研究院有限公司
施工总承包: 中铁建设集团
幕墙顾问:
项目一期 – Konstruct Partnersa(香港)
项目二期 – AECOM
幕墙深化设计: 浙江中南建设集团有限公司
室内设计师:
项目一期 – BC&A International Ltd.(香港); YASHA Decoration Co., Ltd.
项目二期 – QUAD – 门厅室内; Yang and Associates Group(深圳)- 住宅室内
景观设计师:
项目一期 – SWA Group(加利福尼亚州)
项目二期 – WAA+ Landscape Architects(上海)
景观深化设计:
意格国际(北京);北京道勤创景规划设计院(北京)
灯光设计:LAM Partners(马萨诸塞州)
Brandston Partnership Inc., (上海)
客服
消息
收藏
下载
最近





















































