查看完整案例

收藏

下载

翻译
Architects:Johan Sundberg arkitektur
Year:2023
Photographs:Markus Linderoth
Chief Architect:Johan Sundberg
Associate Architect:Staff an Rosvall
City:Yngsjö
Country:Sweden
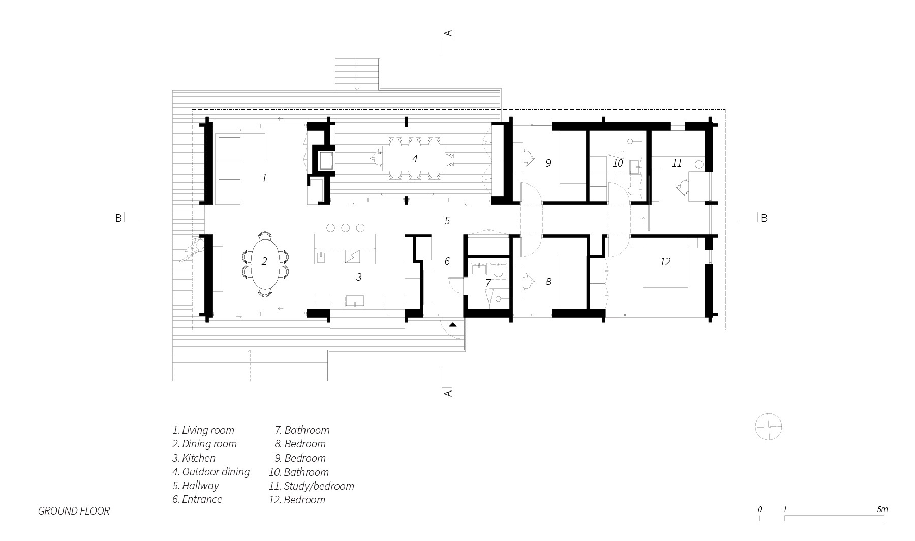
Text description provided by the architects. Nestled among the undulating pine-covered hills in Yngsjö, just by the shores of the Baltic Sea, stands a summer retreat designed for a family of four. The landscape here embraces a lack of meticulously landscaped gardens, opting instead for the dominance of the natural forest setting, where small-scale structures blend seamlessly amidst the trees.
Comprising a singular volume-oriented in a north-south direction, the house features a recessed section in its central part, facing west and hosting a sheltered terrace basking in the evening sun. The southern section, encompassing the entrance, kitchen, and communal areas, effortlessly connects to the ground with a fluid transition to the surrounding nature.
Meanwhile, the northern half, housing more private spaces, gracefully hovers above the terrain on slender pillars, establishing a direct connection with the treetops through expansive bedroom windows.
Clad in larch panels rhythmically interrupted by vertical pilasters, the house's facade exudes a harmonious aesthetic. The floating structure's underside is concealed with triple-layered larch panels. Inside, the rooms are grounded by oak floors, trimmings, doors, and bespoke carpentry. The interior ceiling and its overhanging sections boast a unified, slender-profile larch surface, which has a calming and sound-absorbing effect throughout the entirety of the house.
Project gallery
客服
消息
收藏
下载
最近




































