查看完整案例

收藏

下载
这是我们为游戏概念设计师 HJL 设计的家。项目是一套高层住宅,俯瞰架空于高速公路上的花园,“在逼仄的城市空间里——城市与自然结合,通过立体改造生长出更多空间”,颇有一种魔幻而现实的概念设定。
以绘画为主要媒介,HJL 的兴趣涉猎广泛,从游戏与模型,到自然史、武器、航天与建筑,这些不同的关注与探究为创作者身份提供了多面向的视角,也构成联系,如同一个恒常的内在世界展开,而仍有许多想象空间。
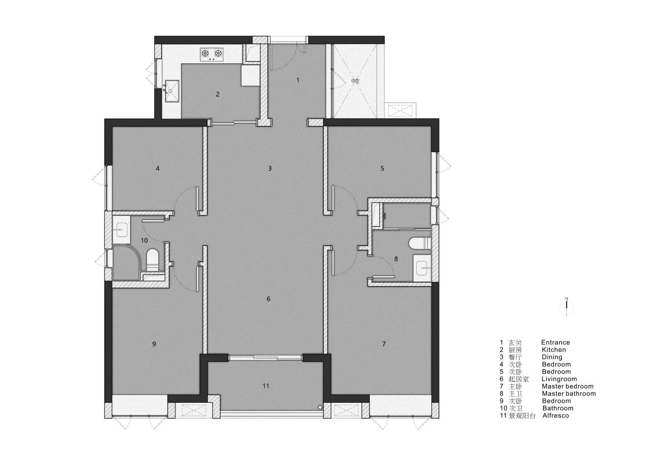
平面图
设计的概念,起于自然与城市结合的理想形态。城市空间里高低错落的地形,是 HJL 喜欢的景象——“一眼看不穿、转角有惊喜”,关于城市,总有下一块未知的拼图。
看似普通的街边公园,走到尽头又是另一番景象。
而原始空间为四室两厅两卫户型,格局方正均衡,各空间按部就班,规矩而局促。作为个人独居空间,缺乏贴合生活的关系尺度与空间想象。因此,我们从环境的互动关系出发,基于原始的四房基础布局,通过解构立面关系,形成动态的区隔与联系,高低错落、延伸拓展,创造有机的动视线,探索室内的关系演绎——统一而混合、开放而克制,重新想象逐渐被城市空间遗忘的自然尺度。
从外到内,由繁至简,形成向内观照的空间自然。
01 通向“自然”
Inwards Path
玄关,由下沉的地台界定向室内过渡的“庭台”。半高柜体与水平横窗结合,塑造洞口视景与回转路径。水龙头以纤细形式悬落,形成静谧的入户仪式。悬挂置物、坐落脱鞋、清洁双手——从外到内,由繁至简,形成向内观照的空间自然。
通过调整结构和动线,原本封闭的厨房空间被打开,从 L 型拓展为 U 型,展开充分而流畅的尺度。玄关与厨房——两个相对局限的空间,在木质、尺度与光线的融合中,围合延伸,形成一个柔和的整体性过渡场域。
借用柜体体量围合出门洞的空间感,从地板引导至双开门,强化进入主空间的仪式感。通过简洁凝练的手法,回归传统住宅的尺度。双门日常开启时,则自然隐藏于两侧,增强空间连续。
在种植的记忆中,人、空间与植物的相处与磨合,发展着空间内部的生长规则。
02In "Garden of Eden"
基于“园”的理想原型,围绕书籍与植物的日常,起居空间与多功能室以相互延伸的初始形态,共同融合为“阅读+休憩”的主场景,消融了以客厅为中心的传统布局。
抬高的地台,将大量的储藏收纳融入其中,形成一个 L 型大平台,创造随意坐卧的慵懒日常,作为综合的功能形式,使原本相对独立的区域形成自然连续的廊道空间。
面对空间的核心问题——大量模型收藏带来的收纳压力,空间被简化至基本的框架状态。在开放的平面中,一部分实现平面隐藏式收纳,与空间的“地形”融为一体;另一部分,则以野性的状态,从精确的控制中解放。作为一种拼贴,画册、模型与绿植形成共同的“聚落”形态。一种完全的日常在这里,不作特地展示,也无需被修饰。
石阶与植物,错落生长。景观区域作为自然语言的一部分,也作为空间的日常实践。多功能室结合景观区域,与户外的地形相联系,与客厅木地板同锯纹的榻榻米木饰面,以自然的野性肌理,形成自由开放的整体空间。赤脚行走,不同的区域,循切身的活动尺度,自然界定——向上或向下。
轻盈独立,明确界定。时而分散,时而凝聚。
03“柱廊”:理想的庇护 Columned Space
加入立柱的体块,天然莱姆石——以自然沉积与风化的质感,编织空间的肌理特征;同时,也通过雕塑性的结构,竖立框架的精神,将开放性分配至整个空间,表现出“空”的状态。
外置的岩板盥洗台,基于石柱与石阶的开放布局,形成拓展的灰空间,塑造廊道尽头的景观,以水的形式与功能,映射着东方的自然精神。一横一纵,延续平衡而克制的秩序;一面竖镜,拓展视觉空间的纵深层次与静谧动态。
多功能室既是开放的,又是独立的——两侧移门向立柱汇合,则形成完全闭合的独立空间,以应对未来变化的需求。通过移门系统,形成连续性的关联,组织多层级的空间关系。空间,被视为一系列活动的连续整体,在分隔与连接中产生延伸或隐藏的场域。
通过移门系统,形成连续性的关联,组织多层级的空间关系。空间,被视为一系列活动的连续整体,在分隔与连接中产生延伸或隐藏的场域。
内在与风景,宁静舒展。日常即自然。
04 日常的“画廊”
Daily “Gallery”
基于开放式空间,餐桌区域通过一个大尺幅的白色画框,协调立面的关系。在实用性的基础上,采用特别定制的形式,以便捷替换画作,创造艺术与感知的日常空间。在空间之域,建立向内延申的宽度,照料日常的感官和漫游。空间的意象与感知,树立美学的精神场域。
开合之间,安于室,安于“野”。
05自然之“间”
Dwell within Nature
木质与白墙,建立纯粹和谐的空间基调。而浅灰微水泥立面,则借以远近景的色调关系,从整体空间,成为轻缓退后的虚渺空间;而置身其中,则拥抱着沉稳柔和的安全场域,塑造向内的层次。
通过尺度调整,原本的过道空间并入卧室区域,延长由动区进入静区的转换过程。
卧室与客厅的界限,由一道低矮的地台与灵活的移门,借鉴东方传统的室内外自然关系,消除封闭性,创造非固定的空间关系;以“下沉”的空间感,结合半遮掩的绿植动态,模糊室内外尺度,创造卧于自然的宁静与纯粹。
在充满生机的空间中,回到安静而自由的世界。
06 创作之“间”
The Space of Creation
模型室以模型制作与展示为基础,位于卧室的另一端,通过移门制造灵活的隔离与连接。从卧室眺望,呈现井然有序的模型展示。关闭移门,则可隔离打磨和喷漆作业带来的影响。我们还想象了另一个场景:早上起床,打开移门,前一天完成的模型作品,又成为自然唤醒的“惊喜”。
同时,入户洗手台与区域位置相结合,也作为模型室的功能补充,以方便就近清洗模型绘画与喷漆用品。而从外部空间视角,模型则从侧面被隐藏,保持简洁利落的白色体块。
画室和模型室都保持着基础的白色空间。在纯粹的几何形式下,不同视窗创造空间的置换与对望,有机拓展,在联系与疏离中,强调从不同角度的通透视觉对话。
画室添加自然材质的长桌,为日常工作创造平静而充分的围合尺度。模型与植物落于框架,错落生长,持续塑造着空间。在充满生机的空间中,回到小而自由的安静世界。
赖于高层与楼距带来的宽阔视野,向远眺望,可以一直看到城市与山的结合;转而向内,基于画画、模型与植物的日常——在水平线的尺度中,延伸出另一个与自我相处的“悬浮”版图,充满生机的、具有想象的。
它是空中的,自在的。在城市的密度中,“地景”之延伸与探索,是尺度、空间与想象。通过非固定、非定义的空间,带来日常对空间的感受,也创建隐于城市节奏的宁静之地——以“此时此地”的自在状态与理想生活方式,保持自我生长、也保持初始与空白的“乌有之地”。
这里,既是与纵向环境的对望,也是内部世界的聚焦——基于理性平衡的有机关系,展开与实质相适应的关联,在非山非水中,创建流动的自然感知,回应专注当下的状态。植物的日常、幻想的微世界,有机生长,以自然的内部,重构空间的想象。
美学与功能平衡的很好,简约而富有秩序美~~~~
客服
消息
收藏
下载
最近














































