查看完整案例


收藏

下载

翻译
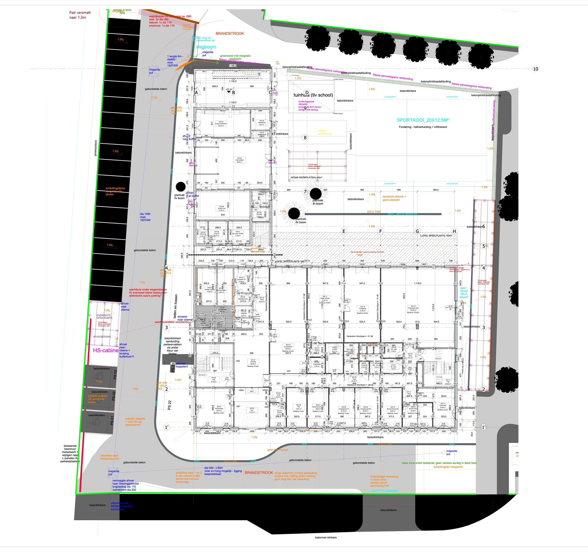
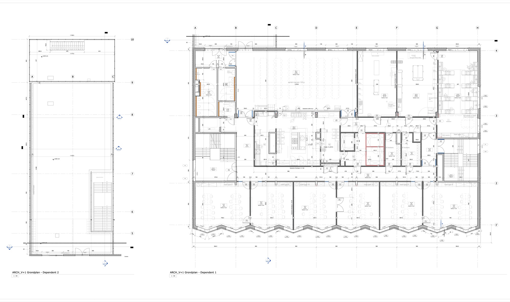
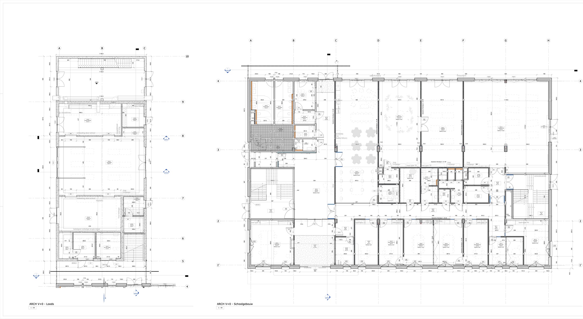
Kaboog is a school in Middelkerke for primary and secondary special-needs education. Both departments merged a few years ago and were each located in a different part of a former hospital in the centre of Middelkerke. The infrastructure was very old and didn't meet the current standards required for quality education, nor for the specific pedagogical needs of Kaboog.
Because of its pedagogical project and its specific offer in special-needs education, it was high time for a new school, tailormade for its users.
A master plan was made, allowing specific areas for the school. The other zones were reserved for private residential development. Thanks to the macro-scale analysis, designs tailored to the surroundings became possible.
The school’s design identifies and connects with the Westendelaan. There is an entrance on the ground floor along the façade parallel to the Westendelaan.
客服
消息
收藏
下载
最近




































