查看完整案例

收藏

下载
里昂市中心位于 Rhône 河与 Saône 河交汇处所形成的半岛上。南端区域——La Confluence(汇流区)曾主要用作工业用途,但在过去十年间,这一区域开始进行重新开发。David Chipperfield 建筑事务所受委托,负责在 Herzog & de Meuron 规划的第二阶段城市中心向汇流区扩展的总体规划中,协调三个地块的设计,这些地块包含十一栋建筑。其职责包括根据具体场地和拟定的功能需求调整总体规划,并制定景观策略,以及建筑的总体体量、布局和立面设计策略。这一过程中,事务所需要在城市、市政机构、客户、可持续性顾问、景观设计师和场地内其他建筑师之间进行协调,同时通过定期协作研讨会测试和完善设计方案。
The centre of Lyon is located on a peninsula created by the Rhône and Saône rivers as they converge. The southern tip – La Confluence – has largely been used for industry although, over the last ten years, it has begun to be redeveloped. David Chipperfield Architects was appointed to coordinate three blocks with eleven buildings within a masterplan by Herzog & de Meuron for the second phase of the city centre’s extension into La Confluence. This role entailed adapting the wider masterplan to the specific site and proposed programme as well as developing strategies for the landscape and the general massing, organisation and façade design of the buildings. The process involved mediating between and coordinating with the city, clients, sustainability consultants, landscape architects and the other architects involved in the site. Regular collaborative workshops were held to test and develop the proposals.
▼隔水远观,Across the water © Simon Menges
该项目的目标是创建一个以社会和环境可持续性为核心的混合用途街区。建筑群包含多种住房形式、办公空间以及一个健康中心。这些建筑在材料质量上保持一致,但在建筑特性上各具个性。在每个地块中,建筑通过围合的方式形成庭院花园。透明且通透的底层空间使街道与庭院相连,同时,通过合理布置的公共空间和零售单元,进一步激活周围的公共区域。
▼项目模型,model© David Chipperfield Architects
▼混合用途建筑轴测,Mixed-use tower axon© David Chipperfield Architects
The ambition is to create a mixed-use quarter with a focus on social and environmental sustainability. Containing a range of housing tenures, offices and a health centre, the buildings are architecturally coherent in material quality but individual in character. Within each block the buildings are grouped to define garden courtyards. Transparent and permeable ground-floors give access to the gardens from the street and, together with the strategic positioning of communal spaces and retail units, help to animate the surrounding public spaces.
▼建筑近景,Mixed-use tower close view© Simon Menges
除了负责协调整个街区的设计工作外,事务所还被指定设计三个独立的建筑,每个地块各有一栋。这些建筑包括一栋社会住房建筑、一栋混合用途塔楼和一栋办公楼。这三栋建筑均以其结构为设计核心,由简洁的矩形形式定义,同时根据其具体场地位置的特点作出不同的设计响应。
▼轴测分析图,overall axon© David Chipperfield Architects
As well as coordinating this quarter, the practice was appointed to design three individual buildings, one within each of the blocks. These include a social housing building, a mixed-use tower and an office building. All three are shaped by their structure and defined by their simple rectilinear forms yet react to their specific location in different ways.
▼建筑立面,Facade© Simon Menges
▼建筑立面近景,Facade close view© Simon Menges
社会住房建筑由交叉层压木材建造,外部包覆预制混凝土立面,立面采用交替排列的带纹理和光滑面板。两侧立面设有深凹区域,形成了面向南侧公共广场和东侧花园的公寓阳台。入口大厅将街道与花园连接起来,同时,一个面向公共广场的咖啡厅进一步增强了公共互动性。
▼社会住宅轴测,Social housing building axon© David Chipperfield Architects
The social housing building is made from cross laminated timber wrapped externally in a precast concrete façade of alternating bands of profiled and smooth panels. Deep recesses in two of its façades create loggias for the apartments facing a public square to the south and the garden to the east. The entrance hall provides a link from street to garden while a café opens towards the public square.
▼俯瞰,Bird’s eye view© Simon Menges
▼室外绿化,Exterior enviornment© Simon Menges
▼室外道路,Exterior road© Simon Menges
混合用途塔楼的底层为办公空间,上层为公寓。与 Aires Mateus 设计的另一座塔楼一起,这栋塔楼共同构成了新街区的入口标志。针对其周边的高密度环境,建筑在办公楼层的角落设置了大窗户,并在相应的公寓楼层配有阳台,提供俯瞰城市和河流的景观。现浇混凝土立面通过连续的板状纹理,突出了建筑的雕塑感。
The mixed-use tower contains offices on the lower floors and apartments above. Together with a second tower by Aires Mateus it creates an entrance gesture for the new quarter. In reaction to its dense context, the building has large windows at its corners on the office levels with corresponding balconies in the apartments, offering views over the city and river. The in-situ concrete façade with its continuous board marked texture emphasises the sculptural quality of the building.
▼入口处,Entrance© Simon Menges
▼入口大厅,Entrance space© Simon Menges
办公楼位于河岸的显著位置,设计中注重灵活性,并考虑到未来可能改造成公寓的需求,从而确保建筑的长期可持续性。阳台沿着两侧主立面分布,分别朝向河流和花园。这些阳台由突出于内凹木制立面的现浇混凝土柱支撑。中央大厅连接一个开放式楼梯,该楼梯在西侧立面外显露,并将建筑与花园连接起来。
The office building is prominently located on the river front and is designed for flexibility and a potential future conversion into apartments, ensuring the longterm sustainability of the building.
Balconies run along the two principal façades, facing the river and garden respectively. These are articulated by in-situ concrete columns that stand proud of a recessed timber façade.
A central hall links to an open staircase, expressed in the west façade, that connects the building to the garden.
▼项目区位
site plan© David Chipperfield Architects
▼混合用途建筑首层平面图,Mixed-use tower ground floor plan© David Chipperfield Architects
▼混合用途建筑较高楼层层平面图,Mixed-use tower upper floor plan© David Chipperfield Architects
▼办公建筑首层平面图,Office building ground floor plan© David Chipperfield Architects
▼办公建筑较高层平面图,Office building upper floor plan© David Chipperfield Architects
▼办公建筑立面图,Office building elevation© David Chipperfield Architects
▼办公建筑剖面图,Office building section© David Chipperfield Architects
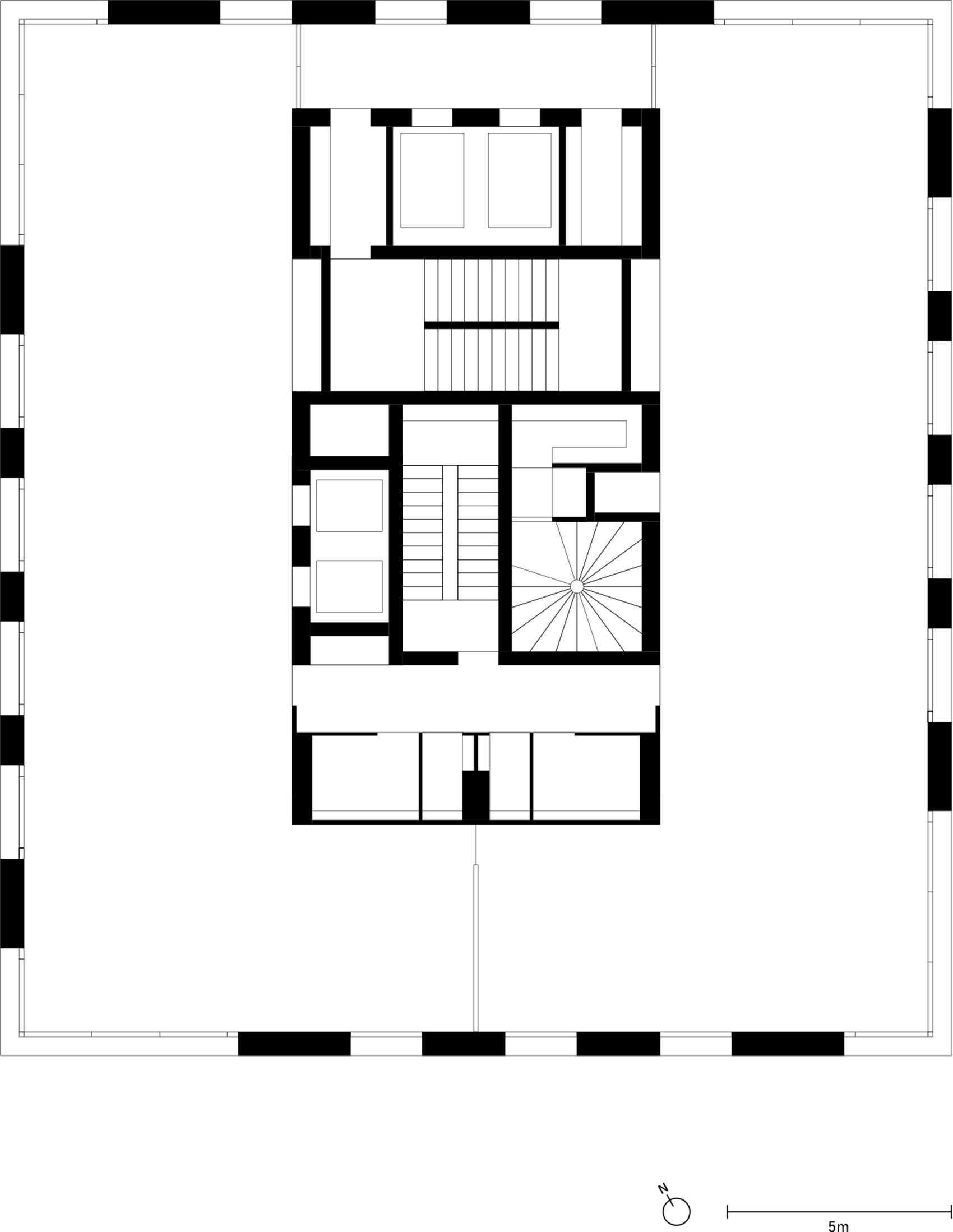
▼社会住宅首层平面图,Social housing building ground floor plan© David Chipperfield Architects
▼社会住宅较高层平面图,Social housing building upper floor plan© David Chipperfield Architects
Project start: 2016–
Completion due: 2021
Gross floor area: 30,000 m²
Client: Bouygues Immobilier (blocks A1N, A2N), Linkcity (block A1S)
Architect: David Chipperfield Architects London
Director: Benito Blanco, David Chipperfield, Billy Prendergast
Project architect: Florian Dirschedl, Luke Gleeson
Team:
Madiha Ahmad, Ricardo Alvarez, Jose Azevedo, Matt Ball,
Sebastian Drewes, Christian Esteves, Johannes Feder,
Micha Gamper, Clemens Gerritzen, Tom Herre, Theo Kirn,
Joseph Little, Michela Marabelli, Joseph Marchbank, Simone
Michel, Tram Huong Ngo, Antonis Papamichel, Renato
Pimenta, Evangelos Pournaras, Sascha Peter Wurm, Richard Youel
Local architect:
AIA Architectes (buildings D, E, K)
Atelier VERA & Associés Architectes (buildings A, C, F, H, I)
Aires Mateus e Associados (buildings B, G, L)
Landscape architect: Wirtz
International
Structural engineer: Cogeci
Services engineer: Quadriplus Groupe
Building physics: Katene
Lighting consultant: Katene
Acoustic consultant: Acouphen
Quantity surveyor: Procobat
Building control: Socotec
Sustainability consultant: Milieu Studio
客服
消息
收藏
下载
最近






























