查看完整案例

收藏

下载
这座住宅位于科尔多瓦市西南部的一处封闭郊区社区,靠近 La Cañada 溪流的源头。经过系统化治理后,这条溪流成为城市标志性的步道,贯穿多个街区,直达市中心,最终汇入苏基亚河。
The house is located in a gated suburban neighborhood in the southwestern area of the city of Córdoba, near the source of the La Cañada stream. Once systematized, this stream becomes one of the city’s iconic promenades, flowing through various neighborhoods, reaching the city center, and ultimately emptying into the Suquía River.
▼项目概览,Overall view© Gonzalo Viramonte
▼周边道路,Surrounding road© Gonzalo Viramonte
地块尺寸为 25.45 米×59.00 米,正面朝南,地势从前方缓缓向后倾斜。后侧直接朝北,与社区的高尔夫球场接壤。这一地形特征影响了项目的设计决策:社交空间被设置在一楼,以充分利用远景视野,而卧室、日常生活空间及服务区域则布置在一层,面向北方,与花园紧密相连。
▼轴测分析图,axon© Cristián Nanzer
The plot measures 25.45 meters by 59.00 meters, with a south-facing front and a gentle slope towards the rear boundary, which has a direct northern orientation and borders the neighborhood’s golf course. This configuration influenced the project’s typological decisions, placing the social area on the first floor to take advantage of distant views, while the bedrooms, daily living spaces, and service areas are arranged on the ground floor, oriented to the north in close connection with the garden.
▼街道测立面,Street side facade© Gonzalo Viramonte
▼入口台阶,Entrance stairs© Gonzalo Viramonte
一层作为基础墙体,支撑一楼的独立结构,顶部由五条平行排列的拱形屋顶覆盖,这些屋顶组织了住宅内的所有空间。拱顶的轴间距离根据地块面积的最大利用和当地法规要求的侧向退界距离确定(拱顶带宽为 3.45 米,总长度为 15.50 米)。这一设计形成了一种“遮阳伞”式屋顶,既具有连续空间性,又在南北立面形成了过渡性区域。
▼爆炸分析图,axon© Cristián Nanzer
The ground floor functions as a wall-like base for an independent structure that rises on the first floor, supporting a vaulted roof arranged in five parallel bands that organize all the spaces within the house. The spacing between the axes of the vaults is determined by maximizing the use of the plot’s surface area while respecting the lateral setbacks stipulated by local regulations (with a band width of 3.45 meters and a total length of 15.50 meters). This system creates a “parasol”-type roof with continuous spatiality, defining intermediate areas at both the south and north facades.
▼庭院侧立面,Courtyard side facade© Gonzalo Viramonte
项目以五条带状结构为核心,这些结构既定义了住宅的结构秩序,又决定了其功能分区,贯穿两层并构成适用于所有建筑系统的构造模块。其中一条带状结构形成了纵向的出入口轴线,连接了入口前的庭院、主入口以及后续与外部公园的空间关系。
The project is organized around five bands that define both the structural order and the programmatic distribution of the house, spanning both levels and establishing a construction module applicable to all systems involved. One of these bands establishes the longitudinal axis of access, connecting the approach spaces, the entrance, and the subsequent relationship with the exterior park.
▼五条平行排列的拱形屋顶,Five parallel bands © Gonzalo Viramonte
▼拱形屋顶近景,Close-up of the domeroof © Gonzalo Viramonte
▼材质细部,Facade details© Gonzalo Viramonte
▼水塔构筑物,The water tower © Gonzalo Viramonte
进入住宅后,双层挑高的空间提供了对高尔夫球场的远景视野。楼梯位于此处,连接上下两层,并通向公园和泳池区域。这样的布局使室内的功能组织延伸至外部空间的几何结构。
Access is provided through a double-height space with distant views of the golf course, where the staircase is located, connecting the upper and lower floors and providing access to the park and pool area. This layout extends the interior typological organization to the geometry of the exterior spaces.
▼室内楼梯,Interior stairs© Gonzalo Viramonte
▼从楼梯处看向二层空间,Looking towards the second floor from the stairs © Gonzalo Viramonte
▼从楼梯空间看向室外,View from the staircase to the outside © Gonzalo Viramonte
▼进入二层空间,Enter the first floor space© Gonzalo Viramonte
项目设计基于两项主要策略:首先,墙体式基础平台解决了地形坡度的适应问题,同时作为连接和出入口的载体;其次,拱形屋顶高悬于基础之上,起到遮阳作用。这一屋顶由独立结构支撑,形成了过渡性的中间空间,其北立面和南立面宽大的悬挑进一步强化了这种特性。
The project is based on two main operations: a wall-like podium that resolves connections, access points, and adapts to the terrain’s slopes, and a vaulted roof that rises above the base, functioning as a shading element. This roof, supported by an independent structure, creates transitional intermediate spaces, characterized by its wide overhangs on the north and south facades.
▼室内起居空间,Living space© Gonzalo Viramonte
住宅的材质表现出其双重属性。一层外墙采用巨石混凝土建造,为基础赋予厚重感和力量感;而上层则通过拱形屋顶和独立结构展现出通透性和对远景视野的强调。混凝土墙仅用于邻接侧,以确保社交空间免受邻居视线的干扰。
The materiality of the house reflects its dual condition. On the ground floor, the exterior walls are made of cyclopean concrete, providing character and weight to the base. In contrast, the upper floor emphasizes transparency and distant views, highlighted by the vaulted roof suspended on an independent structure. Concrete walls are only present on the adjoining sides to ensure the privacy of the social area, shielding it from potential views from neighboring houses.
▼餐厅,Dining area© Gonzalo Viramonte
住宅的设计通过其原始材质揭示了建造过程及工艺的精湛。主要材料包括石材和混凝土,裸露砖仅用于拱顶,其几何形式和材质特性使柔和温暖的光线均匀分布于主空间中。
The design of the house, in its raw materiality, reveals its construction process and the craftsmanship involved. The predominant materials are stone and concrete, with exposed brick reserved exclusively for the vaults. This choice emphasizes, through both geometry and material, the diffusion of soft, warm light throughout the main space.
▼室外露台,Terrace© Gonzalo Viramonte
住宅的物质表现甚至延伸至电气装置部分。按照工业建筑的设计概念,这些装置通过镀锌管道以可见的方式布置。这种设计不仅为空间提供了更大的灵活性,也使未来能够根据需求变化进行调整。
The physical expression of the house extends even to the electrical installations, which, following the concept of an industrial building, are arranged visibly through galvanized piping. This provides greater versatility to the spaces and allows for future adaptations according to changing needs over time.
▼酒窖,Wine cellar © Gonzalo Viramonte
▼走廊空间,Corridor© Gonzalo Viramonte
▼浴室,Bathroom© Gonzalo Viramonte
为保持拱形天花板不受任何设施干扰,水箱被设计为一个独立的雕塑元素,与主结构分离,同时标志并提升了住宅入口的视觉特征。
In order to keep the vaulted ceiling free of any installations, it was decided that the water tank would be an independent sculptural element that, without touching the main structure, would scale and identify the entrance to the house.
▼金属管道,Metal pipes © Gonzalo Viramonte
▼室内材质细部,Interior details© Gonzalo Viramonte
总的来说,这座住宅位于一座过度扩张的城市边缘,展现出拉丁美洲城市典型的混杂性与对比性。它采用了如厚重墙体和拱形屋顶等古老且普遍的建筑技术,由南美地区优秀工匠传承的精湛技艺建造而成。住宅在现代传统的框架下完成设计,旨在超越表面修辞,以其独特的场所感和时代特性回应当代建筑需求。
As a provisional conclusion, it can be defined as a house on the periphery of an overly sprawling city, with the constant hybridity and contrasts typical of our Latin American cities. It is conceived with archaic and universal architectural techniques, such as heavy walls and vaulted ceilings, and materialized with the skilled craftsmanship inherited from excellent regional builders, from the vast South American region. It is designed within the frameworks of a modern tradition learned over time. Despite (or rather, precisely because of) all of this, the house aims to respond—without rhetoric—to a contemporary architecture that is unique to its place and its time.
▼总平面图,overall plan© Cristián Nanzer
▼首层平面图
ground floor plan© Cristián Nanzer
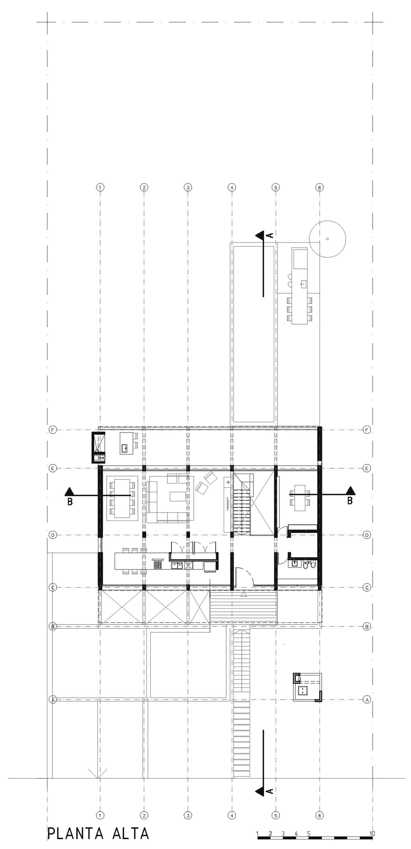
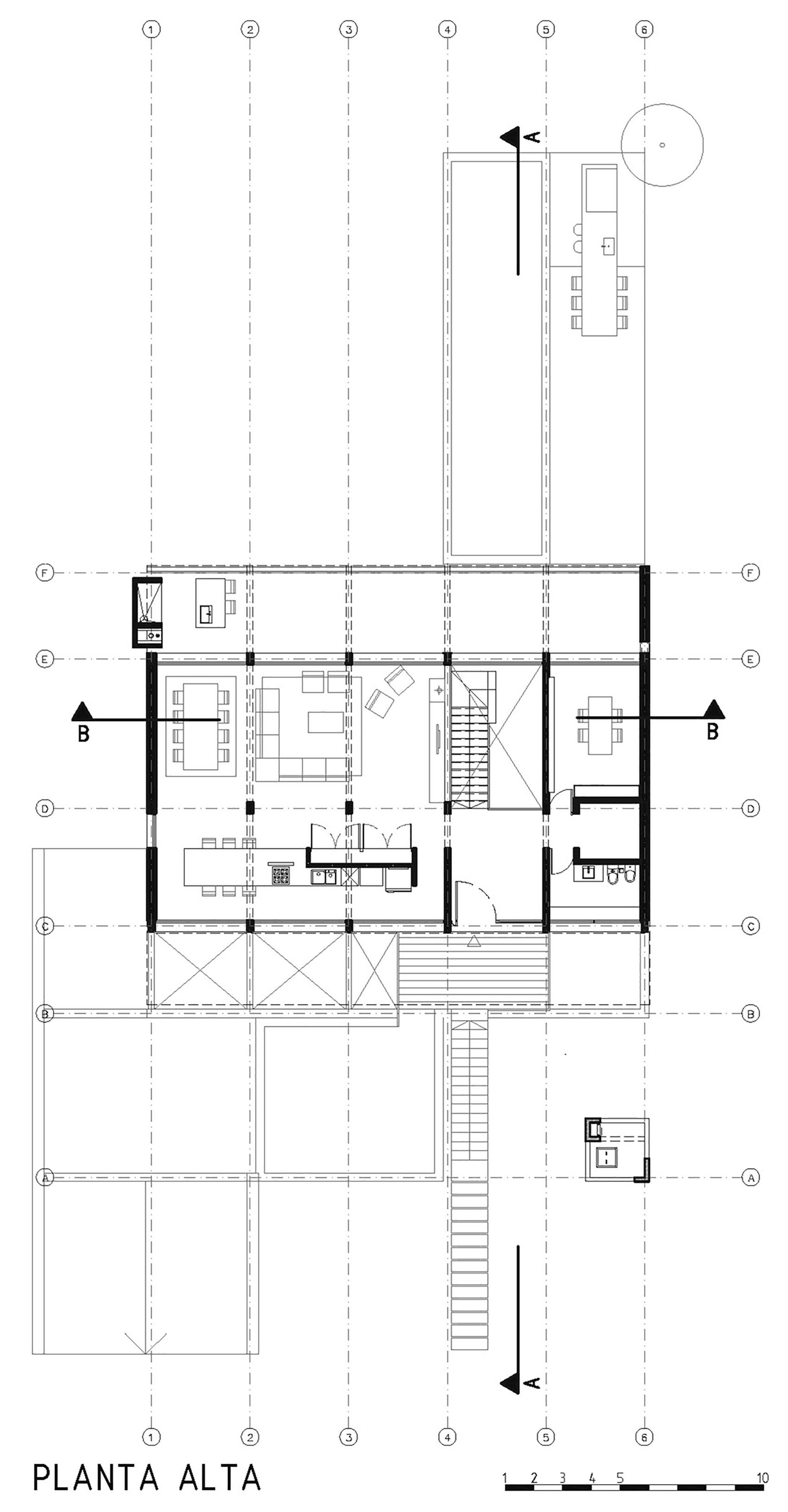
▼二层平面图,first floor plan© Cristián Nanzer
▼屋顶平面图,roof plan© Cristián Nanzer
▼剖面图,section© Cristián Nanzer
▼构筑物结构,TANQUE R&C © Cristián Nanzer
Technical Data of the Project
Casa R&C – B° La Cascada / City of Córdoba
Project: Arch. Cristián Nanzer /
Technical Direction: Arch. Cristián Nanzer / Arch. Daniel Villani
Collaborators: Arch. Lourdes Cuadro / Arch. Juan Dimuro
Structural Calculation: Eng. Edgar Morán
Construction: Estudio Nebreda & Villani
Arch. Adriana Nebreda / Arch. Daniel Villani
Landscape Design: Estudio Paisaje Contemporáneo
IG: @paisajecontemporaneo
Electrical Installations: Gabriel Canelo
Carpentry: Anodal Company
Year of Execution: 2020 – 2023
Photography of Completed Work: Gonzalo Viramonte
Progress Photography: Juan Dimuro
Author’s Note: Cristián Nanzer
客服
消息
收藏
下载
最近































































































