查看完整案例

收藏

下载

翻译
Architects:Estúdio Artigas
Area:180m²
Year:2024
Manufacturers:Amazonas Pedras,Impacta Brasil,MR Marcenaria,Manoel Vieira e equipe,Oficina Tucambira,Pau Pau,Polysistem,utton Company
Team:Marco Artigas (autor) João Rodrigues de Lucca (colaborador)
Landscape:Rose Sano
Wood Structure:Estamade
Reinforced Concrete And Metal Structure:Gerson
Construction:Engeark
Aluminum Frames:Brigato Esquadrias de Alumínio
Wooden Frames:Leonhardt Móveis e Decorações
City:Sao Paulo
Country:Brazil
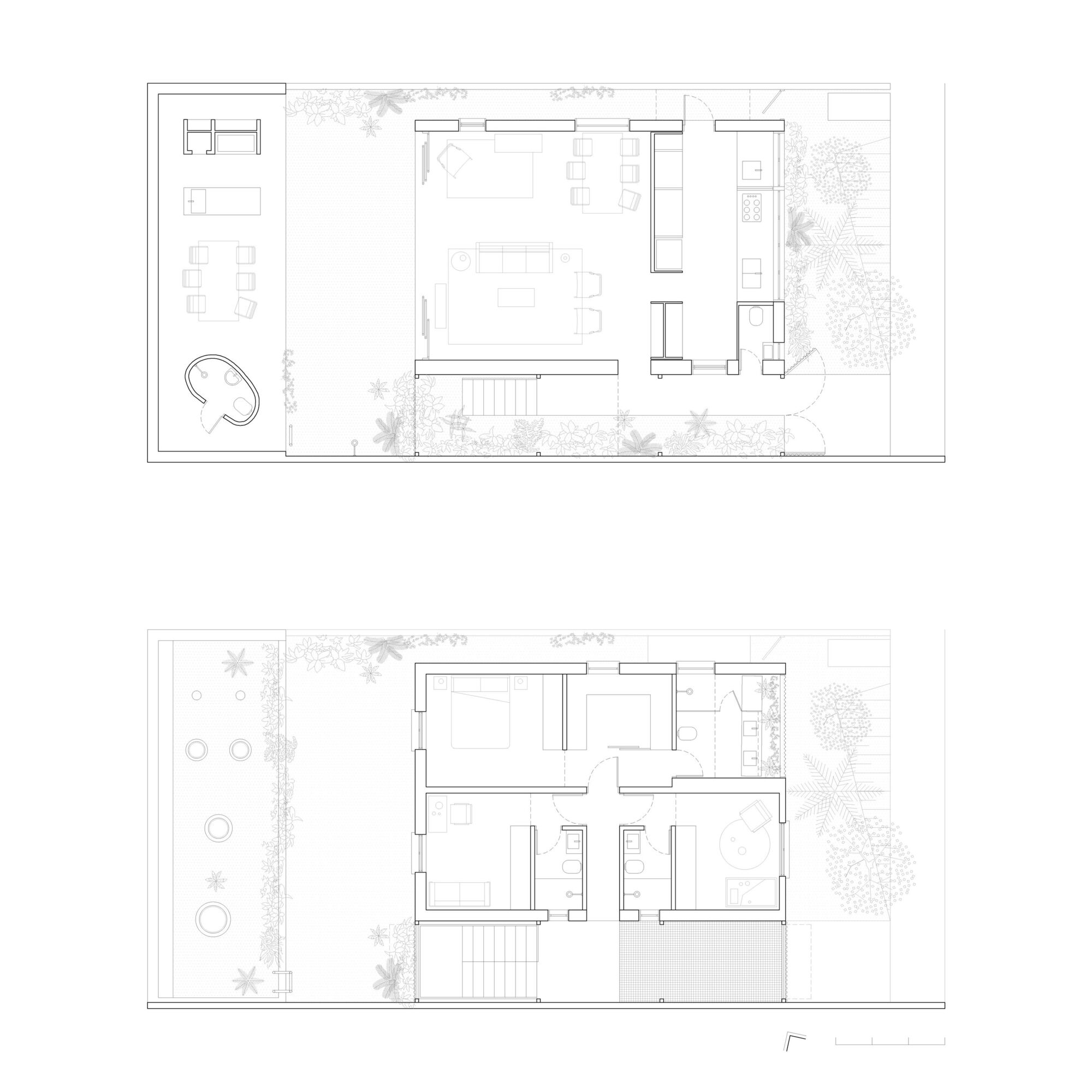
The basic concept of the project was to insert new wooden elements- structural and sealing- into the internal and external spaces of the house. Where there were new openings, they would be marked with translucent elements.
The first decision was to incorporate the old garage as an internal area of the house. The area previously intended for cars was transformed into the access garden, with various species of plants. The structure of this space is made of garapeira wood, wrapped in corrugated alveolar polycarbonate, fixed with aluminum frame sets, providing a space of multiple sensations.
In this same area is the staircase leading to the bedroom floor. The transition from the social area to the intimate area is made through an intermediate space, with a mix of solid garapeira wood flooring and perforated metal sheet, which allows you to see the garden on the lower floor and the front door, as well as being permeated by natural ventilation.
The bedroom wing is organized by a central wood frame structure that supports the entire technical area of the house, as well as defining the two bathrooms of the smaller bedrooms and the wardrobe of the master bedroom. The bathroom of this master bedroom occupies the roof of the old laundry room, expanding the area of the house. It is fully lit by the double polycarbonate facade.
The annex is an extension of the grassy area. Completely open, it was constructed with more weather-resistant materials, using masonry and exposed reinforced concrete. Its roof is a garden, improving the microclimate of the area and beautifying the view from the bedrooms and the building attached to the back of the house. Finally, the exterior part of the house and its relationship with the street: the possibility of seeing a city where houses have no walls. Of course, we are aware of the privileged situation of being in a village, but it still allows us to dream of a less individual and imprisoned future.
Project gallery
客服
消息
收藏
下载
最近


































