查看完整案例

收藏

下载

翻译
Architects:Facchinelli ARW
Area:3500m²
Year:2024
Photographs:Federico Covre
Architect In Charge:Gianpiero Ribolla
Assistance:Arch. Gianluigi Barucco, Arch. Laura Treccani
Design, Coordination, And Technical Direction Of The Project:Arch. Camillo Botticini (Botticini+Facchinelli ARW)
In Collaboration With:Brescia infrastrutture srl Resp. Eng. Alberto Merlini
Project Leader:Paola Daleffe
Project Team:Arch. Stefano Bordoli, Arch. Paolo Livi, Eng. Massimo Torquati
Structural Consultants:Eng. Alessandro Gasparini
Consultants For Itf And Electrical Design:Eng. Andrea Andreis, Fabio Bolzoni
Acoustic Consultant:Arch. Eleonora Strada
Artistic Direction Of The Works:Arch. Camillo Botticini
General Direction Of The Works:GAP PROGETTI SRL Eng. Silvia Foini
Technical Supervision Of Plant Systems:Eng. Fabio Zenocchini
Construction Company:Sabino Dicataldo
Responsible For Mobile Furniture Design:Arch. Alice Dodesini
City:Brescia
Country:Italy
Text description provided by the architects. The new theatre is a pivotal element of the broader redevelopment project for Via Milano, titled "Oltre la strada." This initiative seeks to transform the industrial identity of the area, establishing the theatre as a landmark in a zone undergoing significant revitalization, enriched by numerous enhancement projects. Set back from the street line, the architecture creates a "civic churchyard" paved with granite and a tree-lined plaza on its eastern side, adjacent to the existing residential area. The plaza is distinguished by ventilation chimneys and the mirrored volume of the plant room to the south. Redefining the surrounding public space is as crucial as the architecture itself in enhancing the area's value.
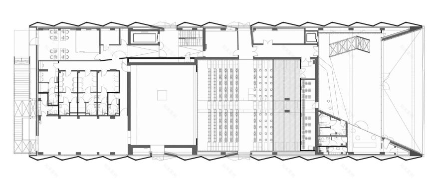
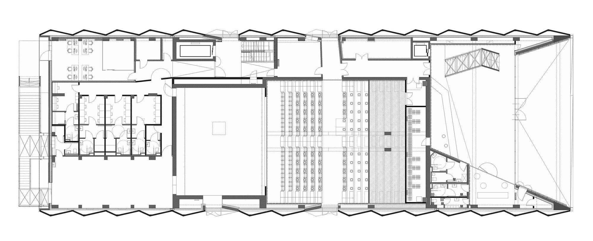
Designed as "civic architecture," the theatre acts as a cultural condenser. The building is a parallelepiped volume defined by large-scale rusticated concrete and aluminum loggia carved into the north facade facing Via Milano, where the main entrance is located. The cyclopean wall is made entirely with a prefabricated system of large rusticated concrete blocks measuring 4x1.25 m. A continuous glass wall visually connects the foyer to the plaza, emphasizing the theatre's openness to the city.
The volume rises into the fly tower at the stage level, with its long sides clad in translucent polycarbonate panels that glow at night when illuminated from within. The theatre functions as an inclusive urban space, hosting rooms for different age groups, communal areas, a bar foyer opening onto the new plaza, and a large hall with a stage connected to dressing rooms and storage areas. Interior materials include wood for the acoustic wall panels, contrasting with dark grey plaster and resin floors in the halls. Communal spaces feature a combination of light grey, wood, and aluminum, the latter used for staircases, railings, and reception counters, giving the space its distinctive character. An "orange path" leads from the foyer to the children's room, marking this special area.
The theatre comprises two performance halls, both accessible from the first floor. The main hall, seating 312 spectators, features three aisles—one central and two lateral—connected to emergency exits. Its wooden walls, illuminated by LED strips, and the ceiling design ensure optimal sound amplification. The elevated wooden stage, with a hollow space underneath, enhances voice resonance. The children's hall, on the other hand, accommodates 169 seats. Its wooden floor extends seamlessly to the stage, providing an informal seating area, and the hall lacks a fly tower, reflecting its simpler, more intimate design. This theatre is an architecture for the city and within the city—a catalyst for revitalizing an area with a rich industrial history, transforming it into a beacon of cultural and social renewal for today's and future generations.
Project gallery
Project location
Address:Brescia, Italy
客服
消息
收藏
下载
最近































