查看完整案例

收藏

下载

翻译
Architects:Balsa Arquitetura
Area:185m²
Year:2024
Photographs:Estúdio NY,Henrique Queiroga
Manufacturers:A de arte,Botteh,Cebrace,Classic Móveis,Deca,Elettromec,GALERIA MURILO CASTRO,Home Office Grupo,Infinito Vidros,Lepri Cerâmicas,Líder Interiores,Mevi Piedras,Pingo Serralheria,Terratile
Coordination:Sarah Floresta, Paulo Augusto
Collaborating Architect:Aluska De Farias
Intern:Ana Carolina Lima, Iago Camargo
City:Belo Horizonte
Country:Brazil
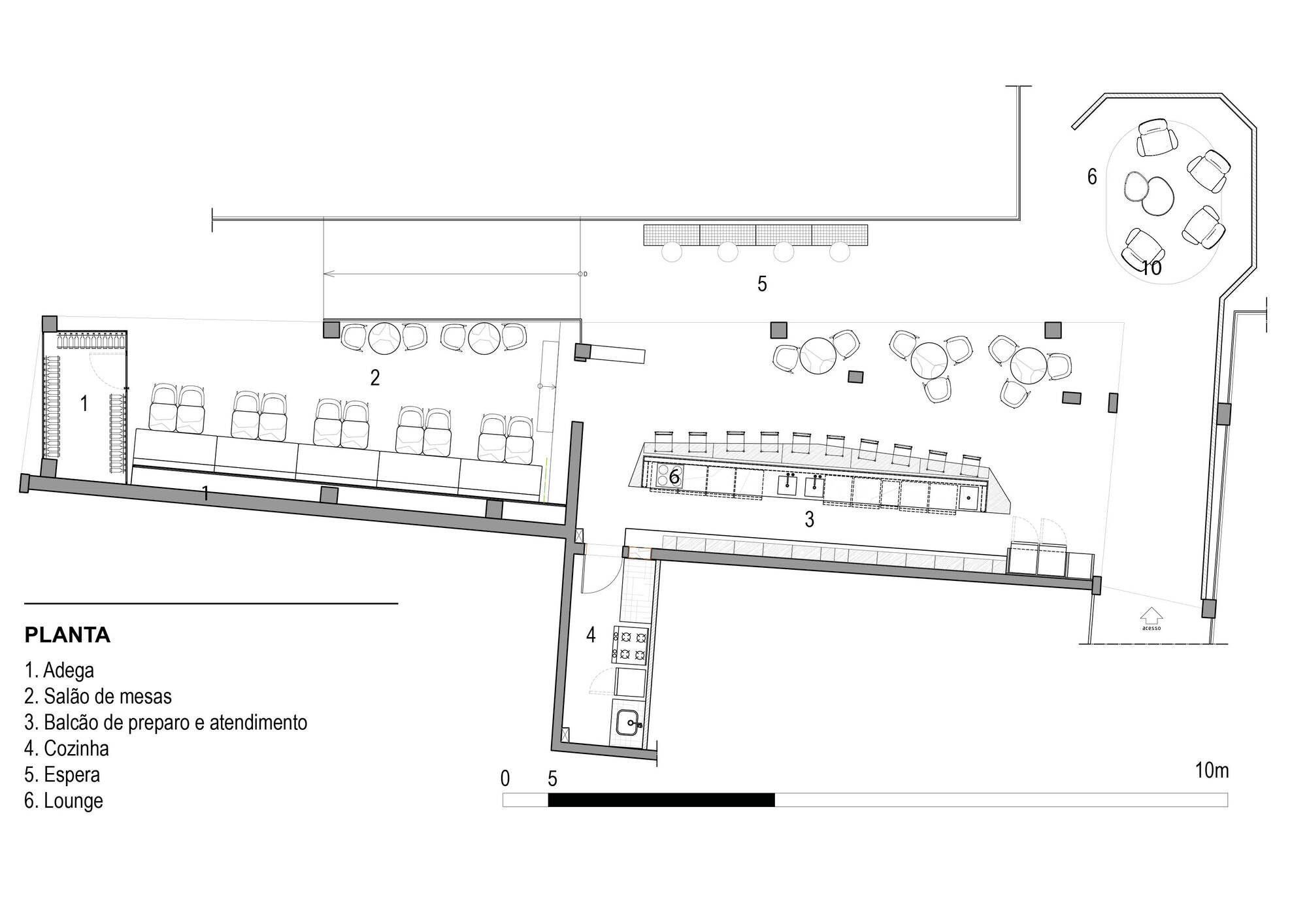
Text description provided by the architects. Reflecting the concept of CASACOR Minas 2024, the project is based on respect and preservation of the features, pigments, and layers that already existed in the property. On this solid foundation, elements essential for the operation of the bar were added. Functionally, an inviting and comfortable environment was created. The project values the contrast between the old and the new, between textures and materials, and explores opacities, reflections, and transparencies.
The bar counter is made of large stone slabs, and on top of it, another counter made of glass sheets, creating an interesting interplay of layering, transparency, light, and reflections. In the background, the functional bar shelf, entirely made of glass. Glass over glass, in an exercise of exploring a new perspective on this material.
The lower lounge was designed to create a more comfortable consumption space. The highlight of the environment is the artwork by artist Vitor Mizael, fixed to the metal structures. The artwork is striking and brings a vibrant color palette to the space. This color palette is reflected in the finishes of the furniture.
Project gallery
Project location
Address:Espaço 356 - R. Adriano Chaves e Matos, 100 - Olhos D'Água, Belo Horizonte, Brazil
客服
消息
收藏
下载
最近





















