查看完整案例

收藏

下载

翻译
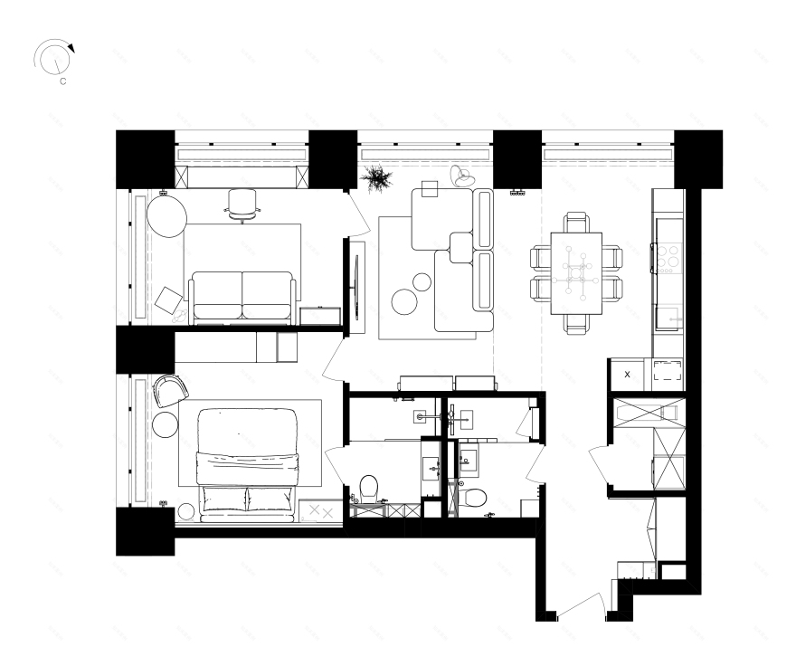
Квартира площадью 83 м² расположена в ЖК HIDE. Заказчик, молодой студент, мечтал о светлом и теплом пространстве, которое было бы функциональным, стильным и уютным.
Помещение досталась в предчистовой отделке, что диктовало необходимость учитывать существующие коммуникации и внутренние стены. Мы создали уютный интерьер с акцентом на природные материалы и мягкую цветовую палитру.
Спасибо,
что досмотрели
до конца
Если вы архитектор или дизайнер,
в нашем Telegram-канале или IG
вы найдете много интересного.
А если вам нужен отличный проект,
то скорее свяжитесь с нами!
Follow us:
Telegram
Behance
Pinterest
客服
消息
收藏
下载
最近










































