查看完整案例


收藏

下载
机构建筑物,个人建筑师和办公室,安哥拉罗安达
设计师:Arpino Design
面积:250 m²
年份:2019
摄影:Paulo Carvalho
建造商:ARPINO DESIGN, AutoDesk
城市:罗安达
国家:安哥拉
设计师描述 | Designer description:
A entrada do Office, uma caixa saliente embutida no edifício existente, destaca a nova intervenção, um túnel de alumínio e um espaço micro galeria em que são expostos modelos, conceitos e produtos, isolados do seu contexto natural e assim evidenciados num ato de dissecação e contemplação.
Neste rés-do-chão encontra-se também a área de recepção, com móveis em estrutura reticular aberta, preenchida com ladrilhos PET reciclados que podem ser substituídos a qualquer momento consoante a função pretendida.
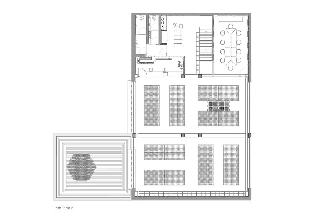
No acesso ao primeiro piso, somos recebidos por uma estrutura modular iluminada, uma estante e candeeiro, que determina e ilumina a área social, um espaço forrado a azulejos reciclados, uma cozinha e biblioteca, um ponto de encontro de funcionários e visitantes, um lugar perfeito para fazer uma pausa, para buscar inspiração ou para uma reunião informal.
A área de trabalho principal é ladeada tanto pela sala de reuniões como pela sala de impressão, este open space é definido pela iluminação suspensa e pelos cubos perfurados, distribuídos em posições espelhadas. Esta perfuração irá permitir alguma privacidade, filtragem de luz e absorção de som, ao mesmo tempo que irá permitir uma personalização constante do espaço de trabalho. Os colaboradores são incentivados a desenvolver soluções, desde suportes de plantas até lâmpadas, que serão produzidas em nossa impressora 3D e inseridas nesta perfuração.
项目完工照片 | Finished Photos
客服
消息
收藏
下载
最近
































