查看完整案例

收藏

下载

翻译
Architects:SOA Architekti
Area:425m²
Year:2024
Photographs:Alex Shoots Buildings
Manufacturers:Danpal,Kingspan Insulated Panels,ABB,Aluprof,Best,Casalgrande Padana,FRP Services,HSE,Jap Jacina,Tarkett
Lead Architects:Ondřej Píhrt, Štefan Šulek, Ondřej Laciga, Kateřina Luftová, Štěpán Tomš, Marie Hojná
Structural Engineering, Clt:A2 Timber
Fire Safety:Jiří Jasný
Electrical Engineering:Jan Drašnar
HVAC:Václav Heis
General Contractor:BW – Stavitelství
Metal Profiles, Steel Structure:SteelPro4
Al Windows And Doors Contractor:Samat
Country:Czech Republic
Text description provided by the architects. The firehouse is designed in such a way that its shape and volume resemble the typology of rural barns. Its rectangular shape and gabled roof also create a visual connection to the elementary school across the street. It is located on municipal land in the northwestern development area of Dolní Jirčany. Its location on the outskirts of the village, with immediate access to transport infrastructure, provides the firefighters with a convenient location for quick and effective interventions.
The building stands on an almost triangular plot between family houses and a primary school. Its shape and height were designed to be sensitive to the surrounding development. It therefore fulfils not only a functional but also an aesthetic role - creating a symbolic transition between the character of the houses and the public character of the school.
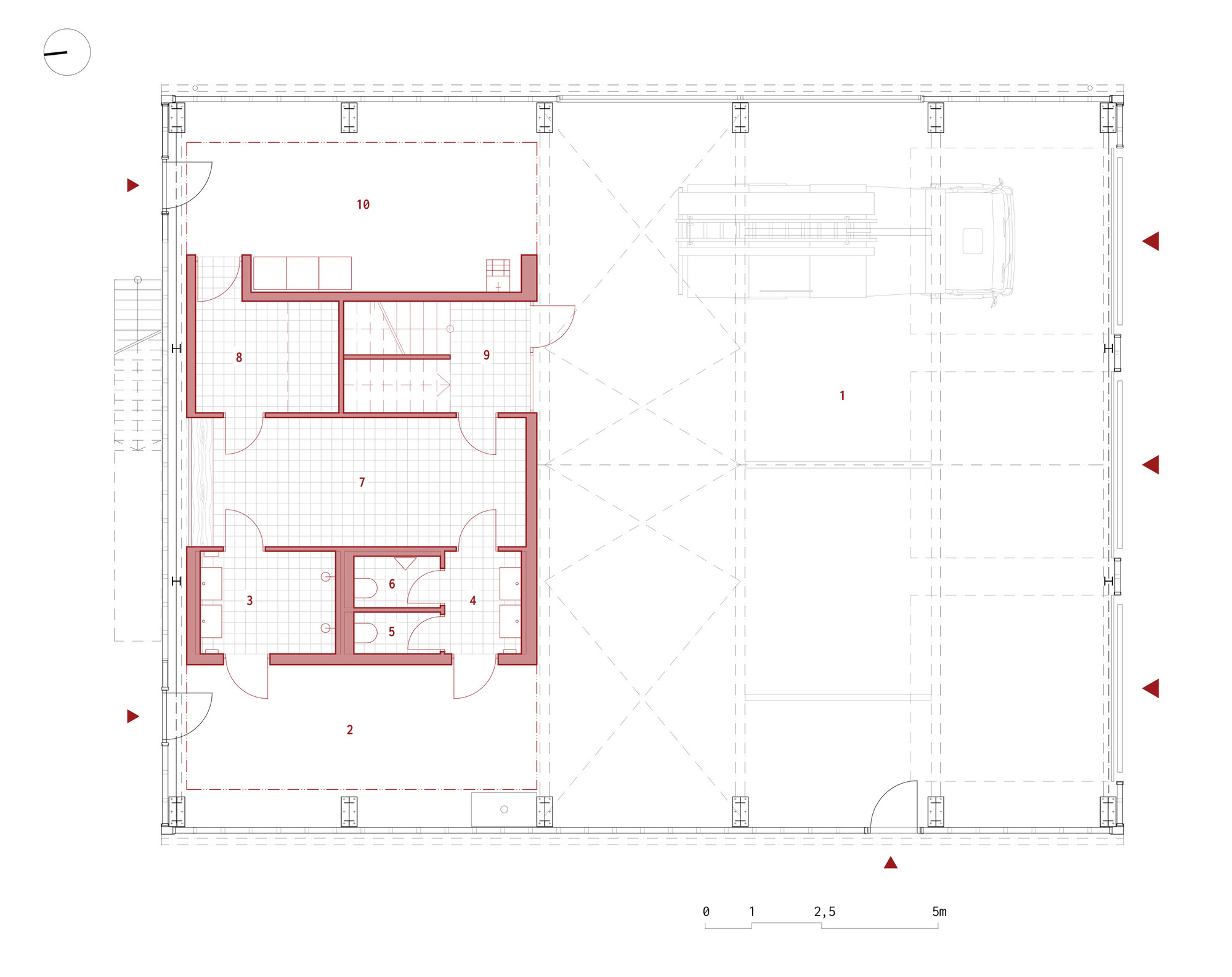
From the first sketch, the design works with three different temperature zones exterior-garage-building. Their technical design and operational separation are an integral part of the architectural concept. The building is designed as a steel hall sheathed with a translucent polycarbonate facade, into which a "light" wooden building is independently placed. The polycarbonate façade provides a visual connection to the exterior and protection of the firefighting vehicles from the elements. The integrated wooden structure serves as a backup for the firefighters. On the eastern façade of the garage, a large window is deliberately placed facing the street so that passers-by can get a glimpse of the functioning of the firehouse and get a closer look at the work of the volunteer firefighters.
The structure of the hall is steel framed with trusses and columns of rectangular section. The ventilation is provided by steel rods. The façade of the garage is formed by a polycarbonate wall system in the composition polycarbonate panel-air cavity with embedded thermal insulation - polycarbonate panel. The roof consists of sandwich polyurethane panels in the composition sheet - PUR - sheet. Above the garage area and staircase, there are light panels on the roof.
To the light and transparent envelope of the firehouse, the solid and compact built-in structure is its counterweight. The horizontal and vertical structures of the building are made of CLT panels. On the interior side, the CLT panels are admitted postcard panels; on the exterior side, towards the garage, the panels are insulated with wood-fiber boards and clad with pine plywood. The interior staircase in the rear is made of bent teardrop sheet. The exterior staircase adjacent to the north elevation is of galvanized construction, with the landing and treads of porosity.
The project as a whole sets the stage for the effective functioning of the volunteer fire department, strengthening community cohesion and future development of the community.
Project gallery
客服
消息
收藏
下载
最近
























