查看完整案例

收藏

下载
Bend Science Station (BSS) 通过让年轻科学家接触所需的工具和技术,帮助他们成为问题解决者。这家非营利机构的总部是一个阳光充足的学习实验室,位于俄勒冈州立大学卡斯凯德校区(OSU-Cascades),为中部俄勒冈州的 K-12 学生和教师提供最先进的 STEM 教育、研究和教师培训设施。
Bend Science Station (BSS) empowers young scientists by engaging them with the tools and technology needed to become problem solvers. The nonprofit’s home is a light-flooded learning laboratory on the Oregon State University-Cascades (OSU) campus, providing state-of-the-art facilities for STEM education, research, and teacher training, serving K-12 students and teachers of Central Oregon.
▼建筑概览
Overall view© Alan Brandt
▼高视角,High viewing angle © Chris Murray
▼鸟瞰,Bird’s eye view© Chris Murray
设计为整合与设计为发现
Design for integration & Design for Discovery
科学站在形式和材料上与高原沙漠的广阔背景及新建的 OSU-Cascades 校区的环境紧密融合。建筑在功能与美学的结合上,字面和隐喻地都成为了一个简单的学习机器。设计融合了体验式学习与建筑特色,体现在示范塔、户外教室和可见的可持续设计元素中。
▼分析图,analysis© Hennebery Eddy Architects
The Science Station is integrated into the broader context of the high desert and the immediate context of the new OSU-Cascades campus in form and materiality. Marrying function and aesthetics, the building is figuratively and literally a simple machine for learning. The design fuses experiential learning and architecture, seen in the demonstration tower, outdoor classroom, and visible sustainable design features.
▼远观,Distant view© Alan Brandt
设计团队借鉴了此前在中部俄勒冈州独特高原沙漠气候下的设计经验。建筑的天花板和受保护的外墙采用雪松木板;最外侧的金属外壳沿外墙延伸,加强了建筑的简洁体量,同时保护了西、南和东侧的雪松木板免受风化,这些方向是建筑接受阳光最多的地方。
▼日照通风分析,sunlight ventilation analysis © Hennebery Eddy Architects
The design team drew on prior experience designing for the unique high-desert climate of Central Oregon. The building soffits and protected exterior walls are clad with cedar siding; a standing seam metal shell is extruded down the outermost walls, reinforcing the simple massing while protecting the recessed cedar from weathering at the west, south, and east building frontages where the building receives the most sun.
▼建筑立面,Facade© Alan Brandt
▼立面细部,Facade details© Alan Brandt
这座面积为 3,750 平方英尺的单坡屋顶建筑,位于校园的公共边界,展示了科学教育的魅力。建筑的南侧朝向太阳,坡道状的设计从社区向大学方向延展。北立面则与校园内较大建筑和校园绿地的规模相协调。平面木制天花板延伸到外部的天棚,大面积的玻璃窗和高天花板呼应了建筑的形态。开放、通透的实验室充满自然光,能够容纳各种实验、活动和学生小组。宽敞的有顶门廊提供了保护性的等待空间,同时也在校园内留下了温暖的存在,传递出未来可以轻松进入科学领域的信号。
The 3,750-square-foot shed-roofed building, sited on the campus’ public threshold, puts science education on display. Its south orientation captures the sun, and the ramp-like form slopes up from the community toward the university. The north façade is scaled to relate to the larger campus buildings and campus green. A planar wood ceiling spans to exterior sots, while expansive glazing and high ceilings reflect the building form. Open, airy labs flooded with natural light accommodate an array of experiments, activities, and student groups. A generous sheltered porch provides protected waiting space and an inviting, warm presence on the campus, planting the seed that a future in science is accessible and attainable.
▼街道测视角,Street view© Alan Brandt
设计为公平社区 Design for Equitable Communities
BSS 和 OSU 共同致力于为来自不同社会经济背景的年轻学生提供早期接触大学校园和学习环境的机会。BSS 自 2018 年秋季起开始在新址接收课程,每年服务来自德舒特县近 40 所学校的 7,000 名学生和 200 名教师。新建筑体现了该非营利机构的使命,即通过接触工具、技术以及自由提问和回答问题,帮助学生进行常规课堂无法实现的发现。
BSS and OSU share the goal of providing young students from diverse socioeconomic backgrounds early exposure to a university campus and learning environment. BSS began accepting classes at its new home in fall 2018 and serves 7,000 students and 200 teachers from nearly 40 schools across Deschutes County annually. The new building embodies the non-profit’s mission of empowering students to make discoveries not possible in the regular classroom by engaging with tools, technology, and the freedom to ask and answer their own questions.
▼教室空间,Classroom© Alan Brandt
▼实验室,Thelaboratory© Alan Brandt
▼其它工作室,Other workshop© Alan Brandt
▼仰视爬梯,Looking up at the ladder© Alan Brandt
▼从走廊看向爬梯,View from corridor to the ladder © Alan Brandt
设计为能源 Design for Energy
该建筑已加入俄勒冈能源信托(Energy Trust of Oregon)的净零能源计划,并设计为能生成大约比其消耗能源多 15%的能量。现场的可再生能源(屋顶太阳能板)和减少能源使用的措施有助于实现这一雄心勃勃的目标。被动设计措施,包括建筑形态和朝向、东侧和西侧有限的开口、自然通风、高效的系统和控制,以及不使用化石燃料的设计,均有助于低能耗。低流量的水管设施和本地植物景观有助于减少现场的水资源使用。原生植物景观被回收并在建筑完工后重新种植。生命周期成本分析和近 10,000 美元的奖励支持了项目与预算目标的一致性。
The building is enrolled in the Path to Net Zero program through the Energy Trust of Oregon and is designed to generate approximately 15% more energy than it consumes. On-site renewable energy (rooftop solar panels) and energy-use reductions help realize the ambitious goals. Passive measures including building form and orientation, limited openings to the east and west, natural ventilation, efficient systems and controls, and the absence of fossil fuel combustion contribute to low energy use. Low-flow plumbing fixtures and native landscaping minimize on-site water use. Native landscaping was salvaged and stored for re-planting upon completion of the building. Life cycle cost analysis and receiving nearly $10,000 in incentives aligned the program and budget goals.
▼项目区位,site plan© Hennebery Eddy Architects
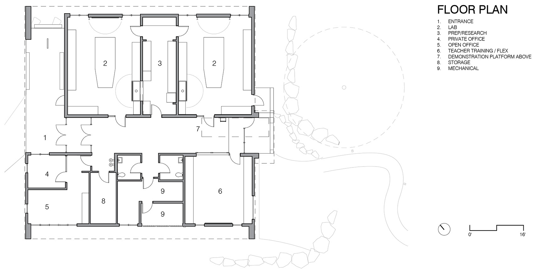
▼平面图,floor plan© Hennebery Eddy Architects
▼北立面图,north elevation© Hennebery Eddy Architects
▼西立面图,west elevation© Hennebery Eddy Architects
Hennebery Eddy design team
Tim Eddy, Principal-in-Charge
Dan Petrescu, Project Manager
Doug Reimer, Project Architect
Project team
Architecture and Interiors: Hennebery Eddy Architects
Contractor: CS Construction
Civil Engineer: DOWL | Bend
Structural Engineer: Walker Structural Engineer
Mechanical Engineer: Interface Engineering, Inc.
Electrical Engineer: Interface Engineering
Landscape: Walker Macy
Acoustical Engineer: Acoustic Design Studio, Inc.
Photography
Alan Brandt
Chris Murray
客服
消息
收藏
下载
最近






























