查看完整案例

收藏

下载

翻译
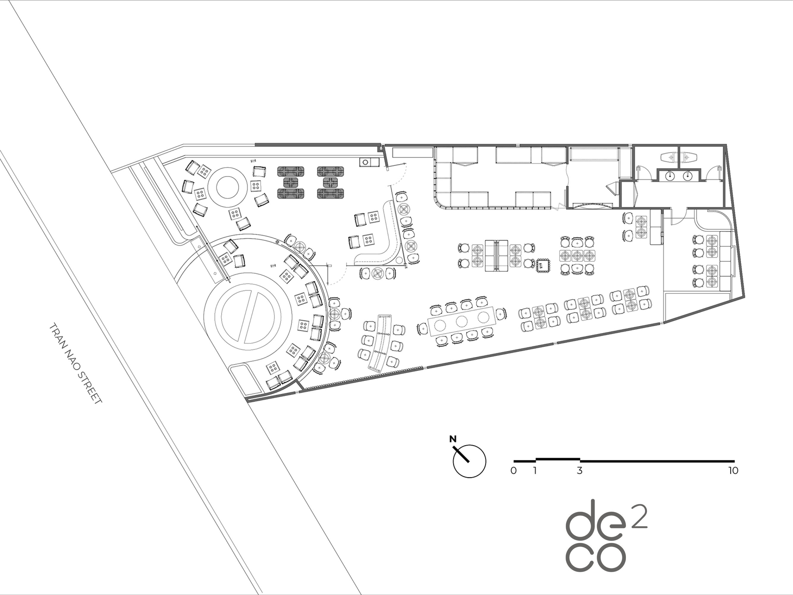
The Banned Coffee & Tea
Địa chỉ: 187 Trần Não, P. Bình An, Q2
Tư vấn thiết kế: NNA x DE2CO
Thi công: Nam Thuận Thành
Hoàn thành: 09/2024
-
Theo dõi sát sao từng chi tiết khi hoàn thiện công trình không chỉ là trách nhiệm của chúng tôi, mà điều đó còn thể hiện sự đam mê với nghề nghiệp.
Đối với chúng tôi, khách hàng là một người đồng hành cực kỳ quan trọng và không thể thiếu trong quá trình hình thành nên một tác phẩm, chúng tôi không dám tự nhận là nghệ thuật, nhưng cũng sẽ là một điểm đến khó quên trong lòng những vị khách có gu và yêu cái đẹp!
Trong quá trình làm việc cùng các đối tác, việc khách hàng vô cùng khó tính và cẩn thận đối với chúng tôi không phải là vấn đề, vấn đề nằm ở chỗ họ rất chú tâm đến những gì mà mình sắp đầu tư, một cách vô cùng nghiêm túc và nhiệt huyết. Ở De2co , chúng tôi rất trân trọng điều đáng quý đó và xem đây như là một nguồn động lực để mỗi con người phấn đấu để trở thành phiên bản tốt hơn của chính mình ngày hôm qua!
-
Tư vấn Thiết kế & Thi công chuỗi quán café, trà sữa (đội ngũ nhân sự của chúng tôi đã có kinh nghiệm thiết kế & thi công các chuỗi lớn như Phê La, The Banned, Green Bean...)
DE2CO.GROUP
Dream. Create. Live | From design to construction
Architecture & Interior
mobile. 0902571017
-
Thank you!
#thietke #thicong #kientruc #noithat #xaydung #quancafe #trasua #coffee #tea #design #build #construction #architecture #interior
客服
消息
收藏
下载
最近






























