查看完整案例

收藏

下载

翻译
Architects:Studio 163 Architects
Area:60m²
Year:2024
Photographs:Peter Molloy
Manufacturers:Clayworks,Forcrete,Maxlight
Lead Architects:Lea Grange
Structural Engineer:Ed Watsons Structure
Design Team:Studio 163 Architects
Country:United Kingdom
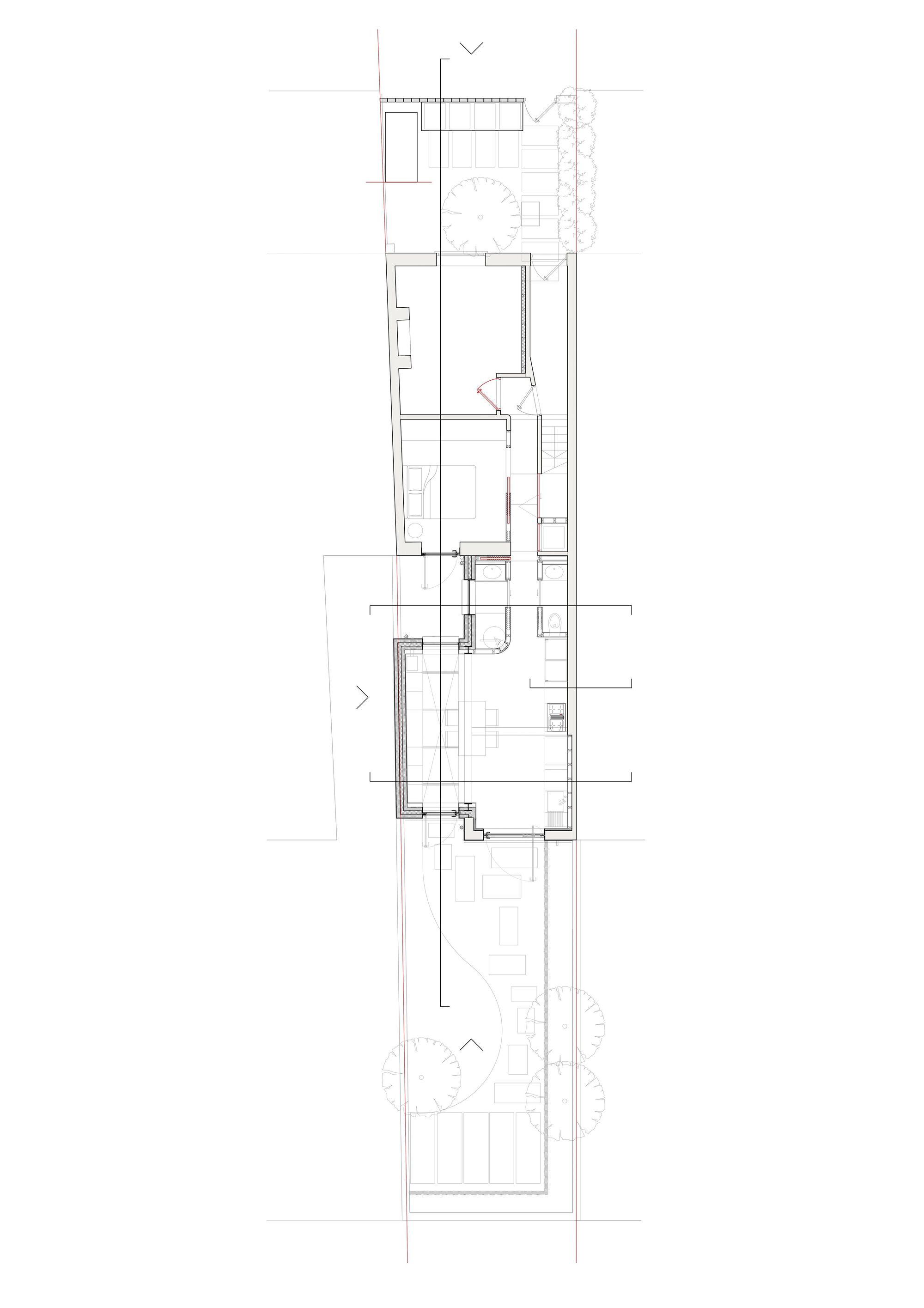
Text description provided by the architects. When Studio 163 were approached to transform this ground-floor one-bedroom flat in Kentish Town into a bright and modern two-bedroom flat, it was a very dark and damp space which lacked flow and visual connection. The bedroom and bathroom were both at the rear of the property with the kitchen and living room space at the front. This created the awkward result of having to walk through the bedroom to reach the garden. It was very important to the architects that the new space reflects the character of the client and her way of living - to create a space for entertaining and socializing as well as a peaceful garden for this aspiring landscape designer. She was also very mindful of repurposing what she had and making sustainable choices.
The property had a lot of constraints - namely boundary issues with neighbours and the flat above, overlooking and overshadowing concerns and being in a Conservation Area. The priority was for maximising space and natural light while using the garden as an extension of the flat by bridging the connection between the inside and out. It became apparent that with a simple side extension, we could open up the plan, and retain the existing rear extension but improve it thermally and visually. Studio 163 brought the living space to the rear and bedrooms towards the front of the flat, essentially flipping the original layout of the flat and adding a bedroom. This created a strong connection with the garden, increased by the use of a large pivot door. The microcement wetroom and WC have been positioned as two "pods" at the centre on either side of the main circulation, but the use of the courtyard enables natural light to reach further into the plan and ensure a look out onto the outdoors from all the rooms.
A lot of work has been done to increase the breathability of the skin of the building. This was mainly done by using a sustainable and naturally porous material which helps regulate humidity. The use of clay plaster externally adds warmth to the home while complementing the existing brickwork, using a natural palette which picks up the tones of London stock bricks of the surrounding terrace, blending seamlessly the existing and the new together. We deliberately chose different colours for the three piers and the band above the opus, marking the boundary between the ground floor and the existing flat above.
As in most London flats, the lack of storage space has meant that the new bespoke joinery had to work very hard to provide shelf spaces as well as hide items such as a boiler and utility space. The oak, which is the prevalent material in the spaces, adds warmth to the home while helping to further the connection with the garden. The landscape scheme which was also designed by us was about offering different areas and layers to the space with planting framing the view. A sense of calm is achieved by this as well as the use of gravel like in zen gardens and clay plaster which is again present here on the planters. The extension is materially and formally grounded and understands its context.
Project gallery
客服
消息
收藏
下载
最近


















