查看完整案例

收藏

下载
隐匿在一个宁静的林间小丘中,“高树之家”是一个迷人的周末度假胜地,专为一个四口之家设计。选择这个位置是设计过程中至关重要的一部分,客户参与了挑选完美森林地块的过程。这个如珠宝般的地块拥有一个向下倾斜的坡面,边界被潺潺流淌的小溪所环绕,四周被高大的树木所环抱——这是一块如梦幻般的画布。
Tucked away in a serene, wooded enclave, The House of the Tall Trees is a mesmerizing weekend retreat for a family of four. The choice of the location was an integral part of the design process, involving the client in the selection of a perfect forested plot. This jewel of a site boasts a descending slope, is laced with a babbling brook that defines the property’s boundary, and is enveloped by towering trees – a canvas that dreams are made of.
▼住宅外观,exterior of the building ©Ariadna Polo
对于这片令人叹为观止的环境,建筑设计呈现为一个质感丰富的混凝土与玻璃结构体,顶端覆盖着一座双坡屋顶。设计巧妙地将卧室布置在两端,而公共空间则占据住宅的中心地带。这一中央空间向屋顶的顶点延伸,形成一个双层高度的奢华空间,配有宽大的窗户,模糊了室内与外面森林之间的边界。这种双重透明性创造了与大自然不断变化的对话。
The architectural response to this breathtaking environment takes shape as a textured concrete and glass volume capped by a dual-pitched roof. The design intelligently places the bedrooms at the extremities, with the public space reigning in the heart of the dwelling. This central space reaches up towards the apex of the roof, a double-height extravaganza featuring expansive windows that blur the boundary between the indoor and the forest beyond. This dual transparency creates an ever-evolving dialogue with nature.
▼质感丰富的混凝土与玻璃结构体,as a textured concrete and glass volume ©Ariadna Polo
公共区域进一步扩展到景观中,连接着一个朝南的露台和一个朝北的庭院,庭院中央设有一个宁静的喷泉。这些户外生活空间确保了住宅与周围环境紧密相连,在每一个角落提供了宁静的片刻。
The public area extends further into the landscape, connecting with a south-facing terrace and a north-oriented courtyard complete with a soothing fountain. These outdoor living spaces ensure that the home is inextricably tied to its environment, offering moments of tranquility at every turn.
▼庭院中央设有一个宁静的喷泉,a north-oriented courtyard complete with a soothing fountain ©Ariadna Polo
▼被自然环绕,surrounded by nature ©Ariadna Polo
室内空间的结构节奏影响了窗户、门、栏杆和衣柜的布局,通过巧妙的照明进一步突出,增强了住宅的空间韵律。光影的变化将这些元素转化为建筑特色,赋予室内空间深度与动感。
▼一层平面,ground floor plan ©1i Arquitectura
Inside, the structural rhythm of the house informs the arrangement of the windows, doors, railings, and closets, accentuated by strategic illumination that enhances the home’s spatial cadence. The play of light and shadow transforms these elements into architectural features, adding depth and dynamism to the interior spaces.
▼增强了住宅的空间韵律,enhances the home’s spatial cadence ©Ariadna Polo
▼面向自然的卧室,the bedroom facing the nature ©Ariadna Polo
▼面向自然的卧室,the bedroom facing the nature ©Ariadna Polo
在花园旁,一座不规则形状的附楼容纳了一个工作室,另外配备了一个按摩浴缸和露台。这个私人空间提供了一个逃离喧嚣的避世之地,是一个放松和休憩的地方。
Adjacent to the garden, an irregularly shaped annex houses a studio, further enriched with a jacuzzi and a terrace. This intimate space offers an escape within an escape, a place of retreat and relaxation.
▼浴室和露台,bathroom and terrace ©Ariadna Polo
“高树之家”凭借其精心设计与与自然的和谐融合,提供了一个实用而富有诗意的周末住所,一个建筑与自然低语对话的地方。
The House of the Tall Trees, with its meticulous design and harmonious integration with nature, delivers a practical yet poetic weekend abode, a place where architecture and nature converse in whispers.
▼夜景,night view ©Ariadna Polo
▼夜景,night view ©Ariadna Polo
▼二层平面,first floor plan ©1i Arquitectura
▼屋顶平面,roof plan ©1i Arquitectura
▼立面,elevation ©1i Arquitectura
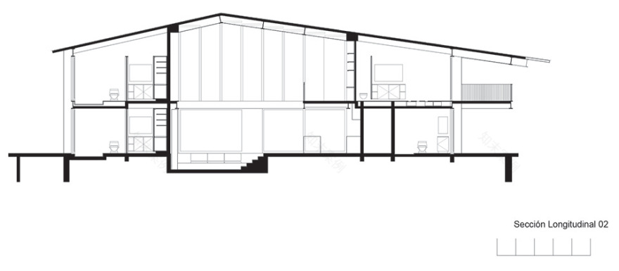
▼剖面,section ©1i Arquitectura
Project size: 400 m2
Site size: 1300 m2
Completion date: 2023
Building levels: 2
客服
消息
收藏
下载
最近


































