查看完整案例

收藏

下载

翻译
Architects:Studio Parisi Architects
Area:300m²
Year:2022
Photographs:THAT Photographer
Country:Australia
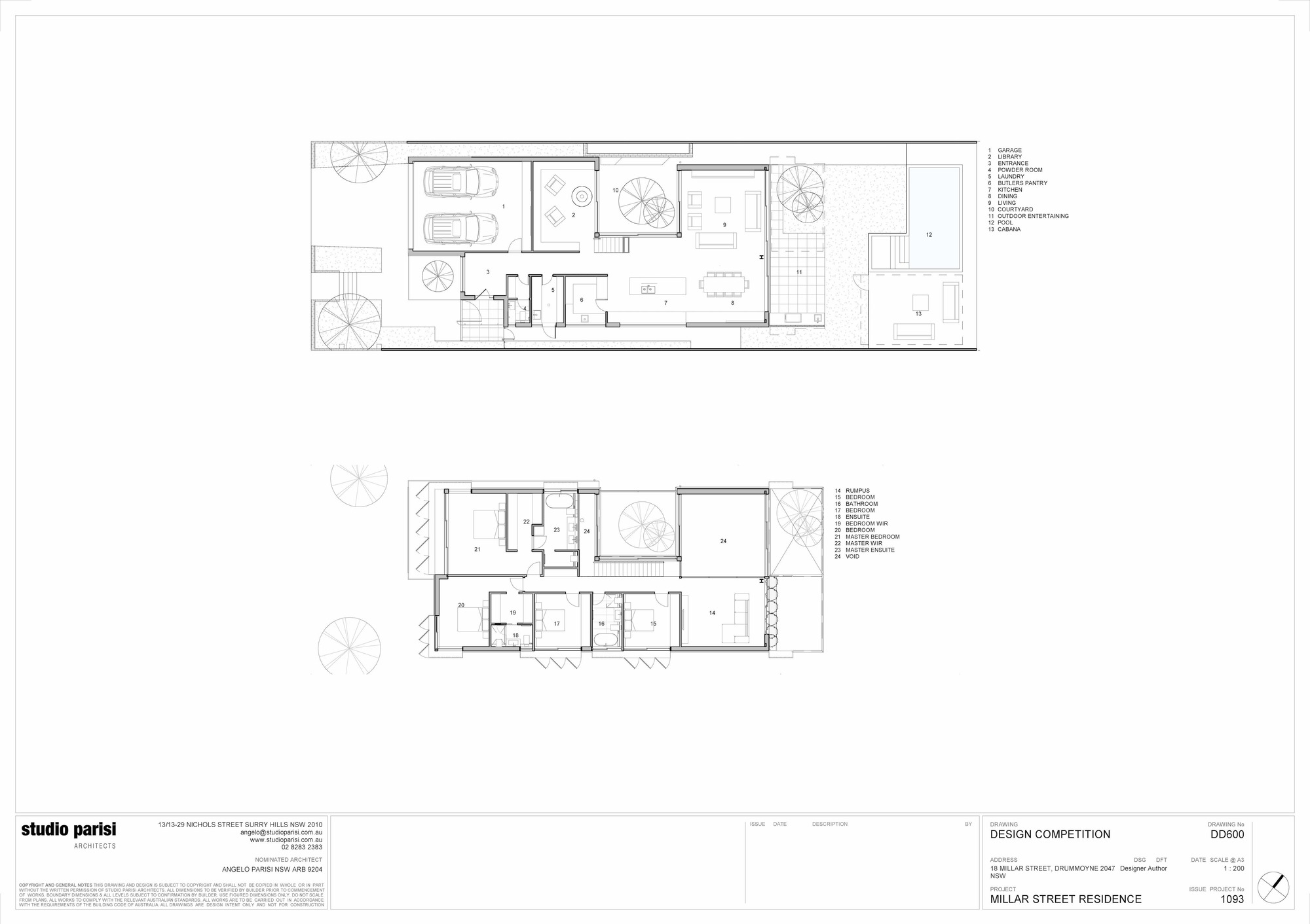
Text description provided by the architects. The Industrial Escape House is a contemporary residential design set within a classic suburban context. This striking home contrasts its robust industrial and brutalist materials with lush greenery and a central northern courtyard, creating a dynamic.
The Industrial Escape House is a contemporary residential design set within a classic suburban context. This striking home contrasts its robust industrial and brutalist materials with lush greenery and a central northern courtyard, creating a dynamic interplay between the raw, architectural elements and the serene, natural surroundings.
Project gallery
客服
消息
收藏
下载
最近





















