查看完整案例

收藏

下载

翻译
MUSEO INTEGRAL DE VILLA DOLORES
Este proyecto es parte de un plan de recuperación que inició el municipio de todo un sector de Valle Viejo que tiene un alto valor patrimonial y que conserva hasta hoy características urbanas de principios de siglo XX. Este sector comprende la vía principal de Villa Dolores que se desarrolla entre la plaza Ramón A. Castillo y la plazoleta frente a la Iglesia Nuestra Señora de la Mercedes. El Plan contiene varios proyectos de recuperación y puesta en valor como la recuperación de los frentes de las viviendas con valor patrimonial, las plazas, el canal de riego y la construcción de dos museos, el Museo de Arte Contemporáneo y el Museo Integral Villa Dolores.
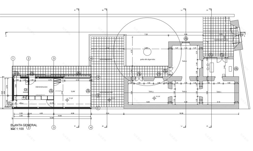
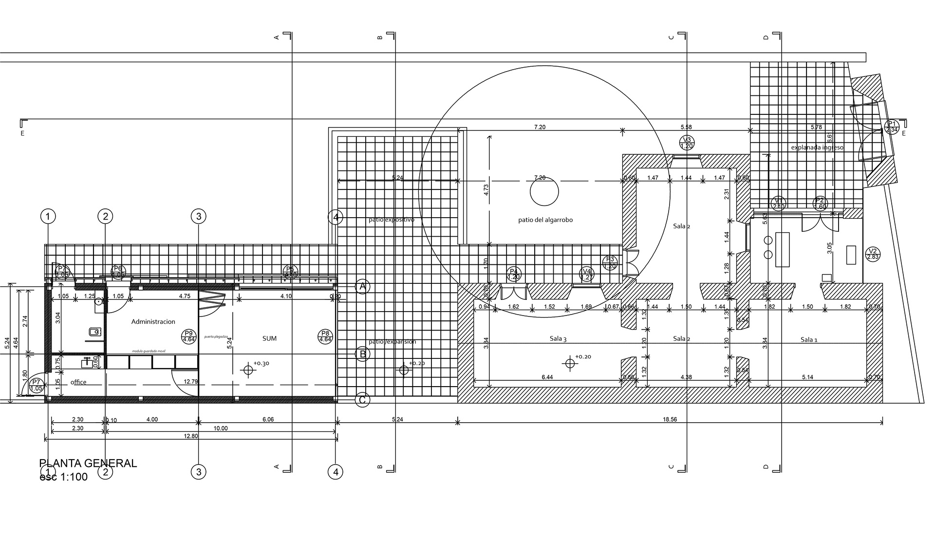
El Museo Integral Villa Dolores tiene como objetivo recuperar una vieja casona que funcionaba como casco de una finca de producción agrícola, convirtiéndolo en un museo para reunir elementos de valor histórico y patrimonial de la comunidad de Villa Dolores, específicamente de la calle José Joaquín de Acuña.
El Museo se organiza en dos sectores bien definidos, separados por un patio. Por un lado el casco original construido con ladrillo cocido y adobe, techo de cañizo y tejas coloniales y que tiene como función principal la de exhibir las piezas y elementos recuperados y/o donados por la comunidad. Está constituido por cuatro salas y una galería en el acceso. En el relevamiento se encontraron intervenciones posteriores que no cambiaron su configuración original. A esta estructura existente se incorpora un edificio con funciones de apoyo a la actividad principal de exhibición, tales como baños, office y una sala multifunción. Este edificio nuevo copia la configuración morfológica de la estructura existente. Materializado enteramente con sistemas constructivos no tradicionales para permitir una rápida ejecución y montaje, limpieza de obra y reducir los costos.
客服
消息
收藏
下载
最近











