查看完整案例

收藏

下载

翻译
Architects:Hiren Patel Architects
Area:20000m²
Year:2024
Photographs:Vinay Panjwani and Ishita Sitwala
Lead Architects:Hiren Patel
City:Ahmedabad
Country:India
Text description provided by the architects. Architecture is more than just constructing spaces; it is about shaping experiences and crafting environments that reflect individuality while addressing the nuances of daily life. For Hiren Patel Architects (HPA), this philosophy has been a guiding force since its inception in 1989. Founded by Ar. Hiren Patel, the firm has consistently redefined architectural boundaries, weaving together art, design, and functionality to create spaces that resonate deeply with those who inhabit them.
Over three decades, HPA has grown into a beacon of architectural excellence, renowned for its commitment to transforming conventional ideas and pioneering future-forward designs. This residence in Ahmedabad, Gujarat, for a technocrat couple and their family, is a vivid manifestation of that vision—a 20,000-square-foot sanctuary that masterfully balances luxury, personalisation, and multigenerational living.
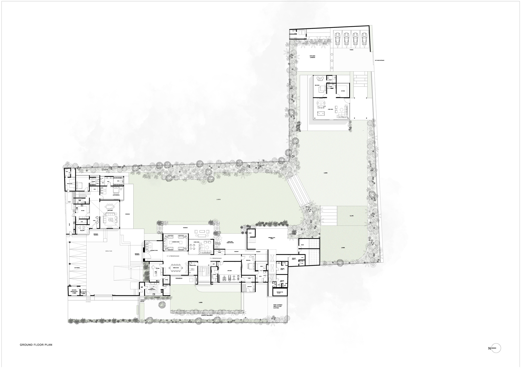
The journey into this architectural masterpiece begins with a thoughtfully designed approach plaza, where every element serves both aesthetic and practical purposes. The granite floors, red glass granite walls, and wooden canopies form a harmonious palette that exudes elegance while ensuring durability. This grand entrance leads seamlessly to the main house and the parents' wing, creating a sense of cohesion despite their distinct functions.
Ample parking for seven cars and an east-facing garden add further layers of functionality and serenity. The garden, bathed in the gentle light of dawn, offers a tranquil spot to begin or end the day, setting the tone for the experiences that unfold within the home.
Step inside, and the first impression is of light and openness. A double-height space, awash in the morning sunlight, creates an ambience that is both uplifting and inviting. This central hub connects the formal living, dining, and family rooms, each distinct in its purpose yet united by a fluid design language. The layout is a study in balance—while the open design encourages connection and interaction, each space retains its identity, ensuring comfort and adaptability. The integration of outdoor verandas enhances this flow, providing opportunities for al fresco dining, intimate conversations, or grand celebrations under the open sky.
The interiors of the home are a testament to understated luxury. A clutter-free aesthetic allows the architecture to take centre stage while the owners' collection of curated artwork introduces personal narratives into the space. These artistic accents, carefully chosen, mirror the refined sensibilities of the technocrat couple. Dominating the central space is a grand staircase, a sculptural marvel illuminated by bespoke lighting installations. It is not merely a functional element but a statement of elegance, drawing the eye upward and creating anticipation for what lies beyond.
The residence's private areas are crafted with meticulous attention to the family's lifestyle. The ground floor features a serene Puja room, enriched with Rajasthani craftsmanship, blending cultural heritage with contemporary design. A spacious gym offers a retreat for physical well-being, reflecting the importance of health in modern living. The first floor houses the son's quarters, thoughtfully designed with a dedicated study for productivity and a home theatre lounge for relaxation. The master suite serves as a serene retreat, featuring a private terrace and an office space, seamlessly blending leisure with work.
Recognising the importance of autonomy within a family dwelling, the parents' wing is designed as a tranquil retreat. A private veranda offers moments of solitude while maintaining proximity to the main house. This thoughtful division ensures that multigenerational living is both harmonious and respectful of individual needs.
At the heart of the home lies the central veranda, a communal space that overlooks the pool and gazebo. This area serves as a nucleus for family gatherings, embodying the spirit of connection and relaxation. The home's exteriors encapsulate a modern aesthetic that is as functional as it is visually striking. The flat roof, generous overhangs, and a combination of plastered and stone-clad walls lend the structure a timeless appeal. These design elements are not merely ornamental—they address climatic considerations, ensuring the home remains cool and comfortable amidst Ahmedabad's warm climate.
This residence is more than a house; it is a work of art, a culmination of Hiren Patel Architects' philosophy of merging functionality with soul. Every corner of the home reflects a deep understanding of the family's needs, their lifestyle, and their aspirations. By balancing tradition with innovation, HPA has created a residence that is not just an ode to architectural brilliance but a beacon of thoughtful living.
Project gallery
客服
消息
收藏
下载
最近





















