查看完整案例

收藏

下载

翻译
Architects:A2D architecture 2 design
Area:15220m²
Year:2022
Photographs:Alex Verhalle and Jelle Van Seghbroeck
Manufacturers:Wienerberger,Brachot Hermant,Revit
Technical Engineering:Multis
Stability Engineering:D+A studiebureau
Interior contractor:Van Overstraeten
Contractor Electricity:Caratec
Architects Team:Philippe Brysse, Lukas Vriens , Alec Bouten, Kris Gysels
Delegated Client:D+A studiebureau
General Contractor :Cosimco from Willemen Groep
Tiles:Rubotec, Brachot Family
Country:Belgium
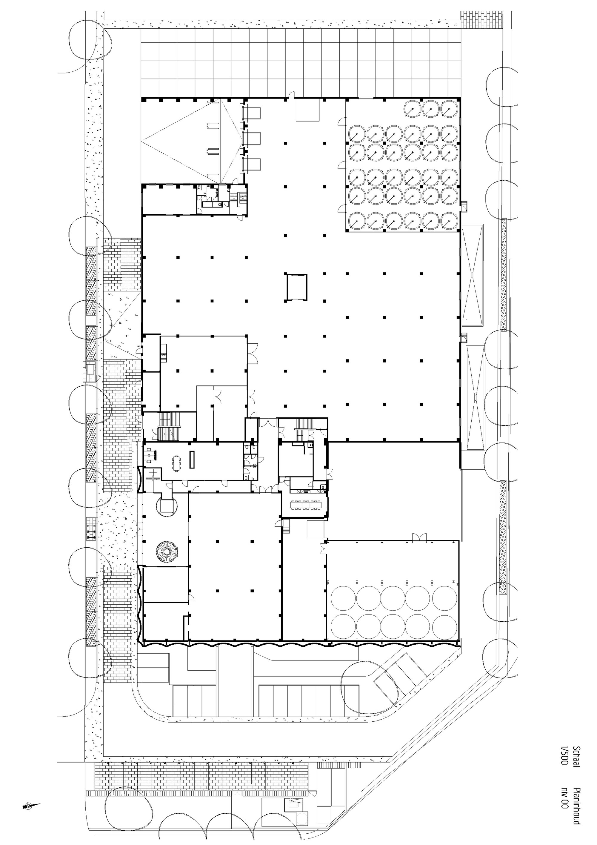
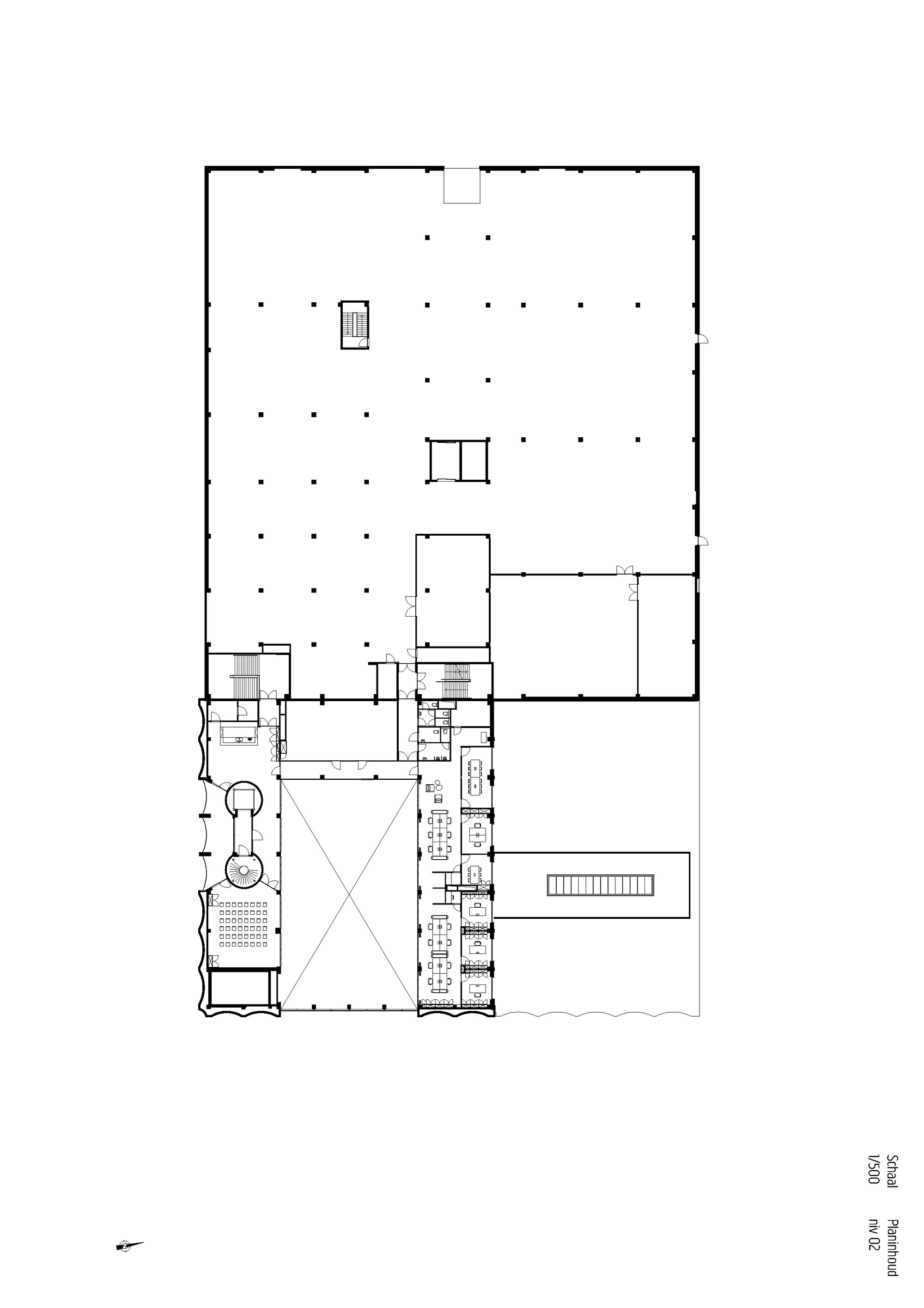
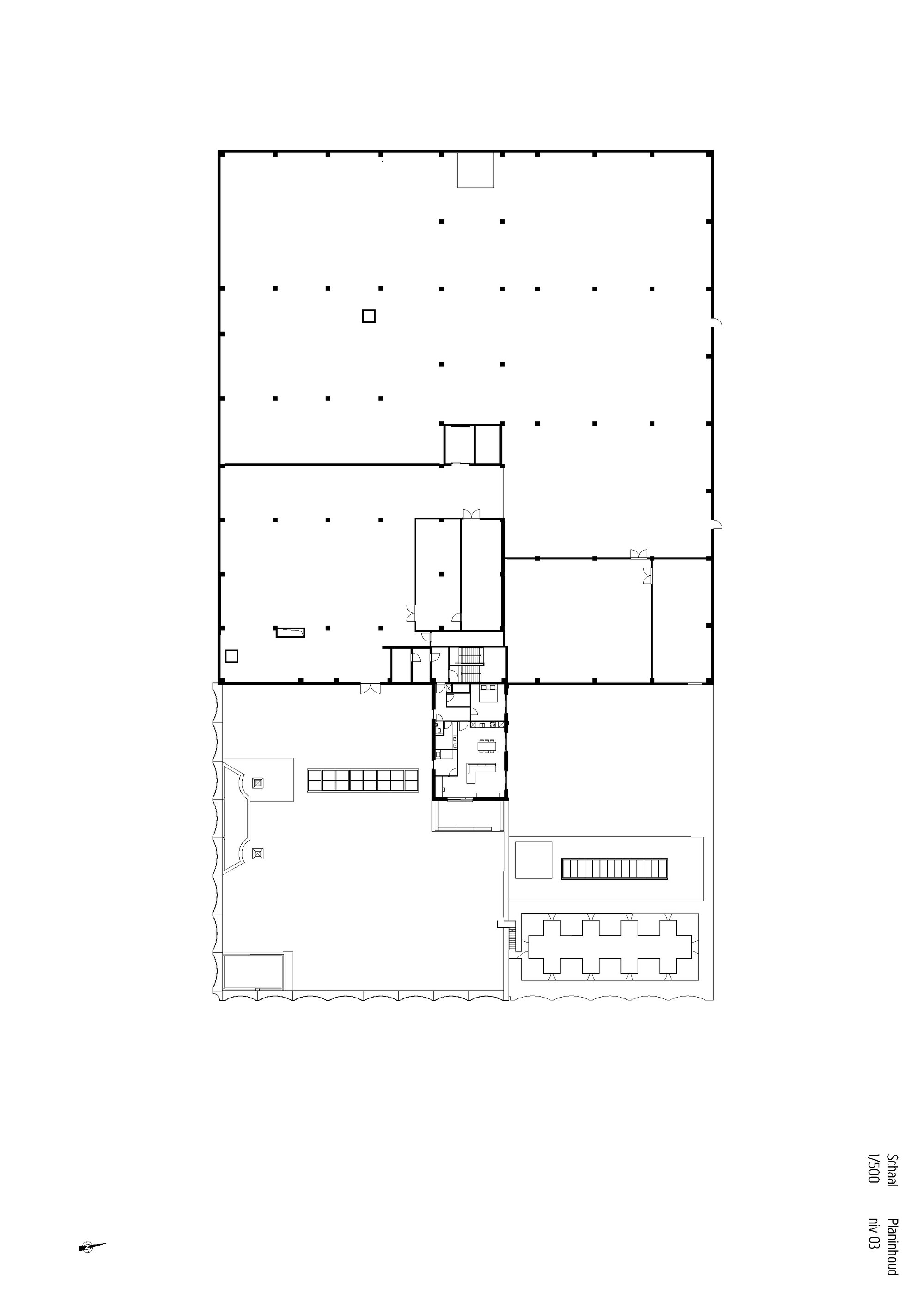
Text description provided by the architects. This project is the first phase of a new satellite brewery for Brouwerij Lindemans, including the associated road, landscaping, and sewerage works. The site is in the northeast of the Sint-Pieters-Leeuw municipality, in the industrial district of Ruisbroek. The design consists of two primary structures: a production hall and a publicly accessible office building. The office building features a large brewing and event hall, complemented by supporting facilities such as kitchens, storage areas, shops, offices and conference rooms, as well as a spacious, partially covered terrace designed for social events. In a future phase there are plans to expand the storage and production hall at the back of the site.
The two volumes will have distinct finishes. The brewing hall serves as the 'face' of the brewery and expresses this through a unique architectural design. The geometry of the façade is inspired by the rounded shapes of the stainless-steel silos used for the storage and production of beer. The façade will consist of a series of vertical, concave brick elements with large openings that serve as either windows or terraces. The playful façade rests on a refined concrete plinth that binds it to the site. As a nod to 19th-century breweries and in reference to other existing factory buildings in the area, a nuanced red/brown brick was chosen for the façades. This brick with its traditional character, creates a nuanced contrast with the contemporary geometric form of the brewing hall. Lending the building a dynamic yet sensitive presence in its environment.
The production hall was built using prefabricated concrete sandwich panels. The neutral character of this building allows it to remain secondary to the brewing hall. The material palette for the brewing hall is also restrained, using only brick for the façade and architectural concrete for the base, caps, and sills. The railings will be made of lacquered aluminum or steel.
A third component of the design is the wall surrounding the silo and tank area, which through material use and architectural form is integrated seamlessly into the language of the brewing hall. This wall continues the rhythm of the concave segmented façade with the same nuanced red/brown brick and resting on a concrete base. The most visible tanks behind this low wall are also embraced as part of the façade. They are finished in high-quality stainless steel to enhance their visual impact and express the building's industrial function. Inside the building, the design language of cylindrical forms is carried through in the volume of the elevator shaft, the monumental spiral staircase, and the large entrance lobby.
Project gallery
客服
消息
收藏
下载
最近




























