查看完整案例

收藏

下载

翻译
Architects:KKOL Studio
Area:107m²
Year:2024
Photographs:Donggyu Kim
Design Team:Euisun Yoon, Hyeji Bae, Subin Haam
Construction:KKOL STUDIO, IAAP STUDIO
City:Seoul
Country:South Korea
Text description provided by the architects. Humanity is innately wired to constantly seek a better life and home rather than to be content with the present. Our desire and drive toward the ideal has been aggregated for eons to compose the contemporary society we live in, and allowed us to forge into the new world that could otherwise have been nothing more than a fantasized ideal.
RiverRidge concurrently visualizes the impression of an ideal city imagined by antiquated societies and the harmonious future we dream of today. Every element of the space is congregated into one — becoming deemable as a piece of compositional art — and was designed to execute the vision of a space where all elements interact intimately, needing no further addition or removal of elements.
The "ideal city" as envisioned during the Renaissance embodies perfectly precise rules, displaying a finetuned and controlled appearance spearheaded by exquisite perspective. It also minimizes the expression of human presence in comparison. The sizeable elements composing the context of the RiverRidge space carry the refined harmoniousness akin to the Renaissance era, yet breaks free of archetypal forms to accentuate free will and flexibility. As such, design elements reinterpreted through a contemporary lens exist within a classic frame, coexisting and mingling without favoring one or the other to deliver a pleasant visual whimsy.
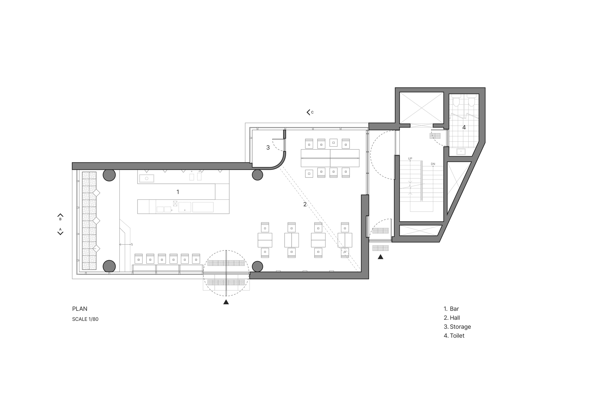
RiverRidge, located on the first floor of the KN Global office building, serves as a break room for company executives and as a café offering specialty coffee blends. The interior is segmented into a Sacred zone, a Public zone, and a Private zone, reflecting the essential components of the conceptual "ideal city" of antiquity. The space's composition is varied, including one-person seating for patrons that study in the café, two-person seating for private individuals, group seating for small meetings that accommodates eight or more guests, and a rostrum meant for seminars. RiverRidge strives to empower all types of customers with unique needs to form their own ideal community in its bounds.
Project gallery
客服
消息
收藏
下载
最近
























