查看完整案例

收藏

下载

翻译
Architects:Studio 163 Architects
Year:2022
Photographs:Lorenzo Zandri
Manufacturers:Havwoods,Inglish Hall,Lazenby
Lead Architects:Lea Grange
Construction:North Pole, North Pole / Andrew Pool
Glazing:Maxlight
Kitchen:Inglis Hall
Concrete:Lazenby
Country:United Kingdom
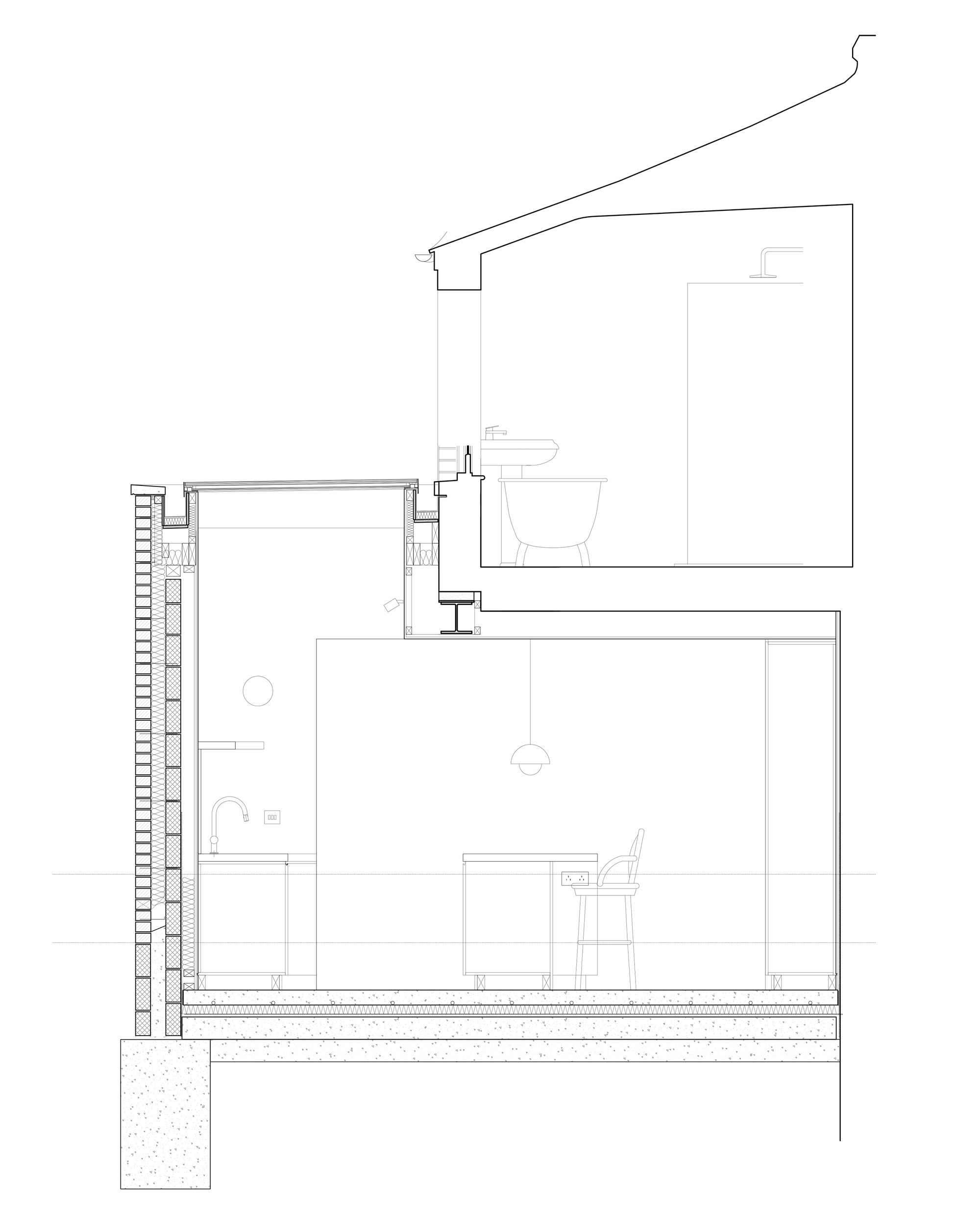
Text description provided by the architects. When Studio 163 were approached by the clients, a couple with a design background with two young children, the three-storey terrace in Kentish Town Conservation Area had a narrow ground floor which was lacking in daylight, head height, storage and living space for a growing family. By providing a full-width rear extension and whole house refurbishment, the project looked to maximise the opportunities for light while creating different atmospheres and spaces which feel intimate yet expansive. The material palette was deliberately limited and natural to create a minimal, but tonal and warm interior.
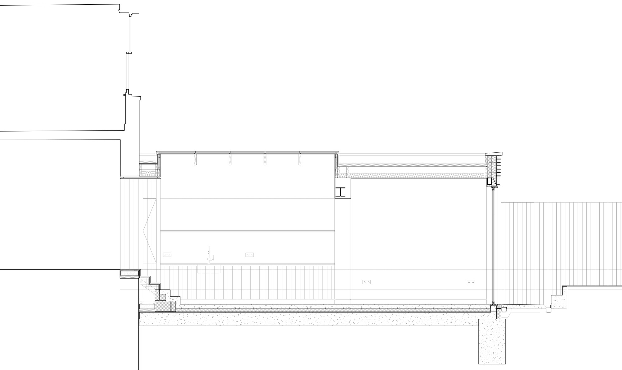
The rear extension was excavated to increase the ceiling height and create a change of level between the front living room and the kitchen/dining area. The original level of the house has been expressed by a change of materiality, with a beige polished concrete datum line. The continuous concrete floor runs from the living space to the patio and forms the planters to make the space feel more expansive.
Bathed in natural light from two expansive roof lights, the new large open-plan kitchen with an adjacent dining area benefits from framed views of the garden and the different ceiling heights help to add a different atmosphere within the same space. Fins were added to one of the roof lights for privacy and to allow the clients to appreciate the changing shadows throughout the day as they cast on the extension walls. A new opening was created to make a better flow between the two parts of the ground floor and the oak threshold with hidden cupboards marks the junction between the existing and the new.
Custom-built joinery was designed throughout to provide ample storage and retain and clean and open feel. The kitchen cabinets and fronts are built in oak, in the continuity of the threshold and the full-height cupboards have been purposely cladded in a more neutral colour to blend with their surroundings.
Externally, being conscious of reusing existing materials wherever possible, reclaimed bricks and timber were used for the walls and patio deck. The glazed doors are particularly tall to bring as much natural light as possible internally and the minimal frames provide a stronger connection to the garden. The coping and rainwater pipe are bespoke to match the colour of the window frames. The existing rear facade has been re-rendered and left unpainted with the natural buff colour of the render matching the surrounding London stock bricks.
Project gallery
客服
消息
收藏
下载
最近

























