查看完整案例

收藏

下载

翻译
Architects:Claudia Haguiara Arquitetura,HGMA
Area:450m²
Year:2023
Photographs:Christian Maldonado
Lead Architect:Cláudia Haguiara
Country:Brazil
Text description provided by the architects. Located on a corner lot in a tree-lined residential area of São Paulo, the project was based on an existing building: a one-story house from the 1940s, initially planned for demolition due to its state of preservation.
On the first visit to the site, the charm of the existing house captivated both the architects and the client, which was enough for a change of plans: it should be partially preserved. Inside the walls, there was a sense that time had stood still. The unpretentious and cozy rooms opened up to a small garden, surrounded by the large canopies of the preserved trees on the sidewalks. Hidden on one of the house's sides, a recently built lap pool.
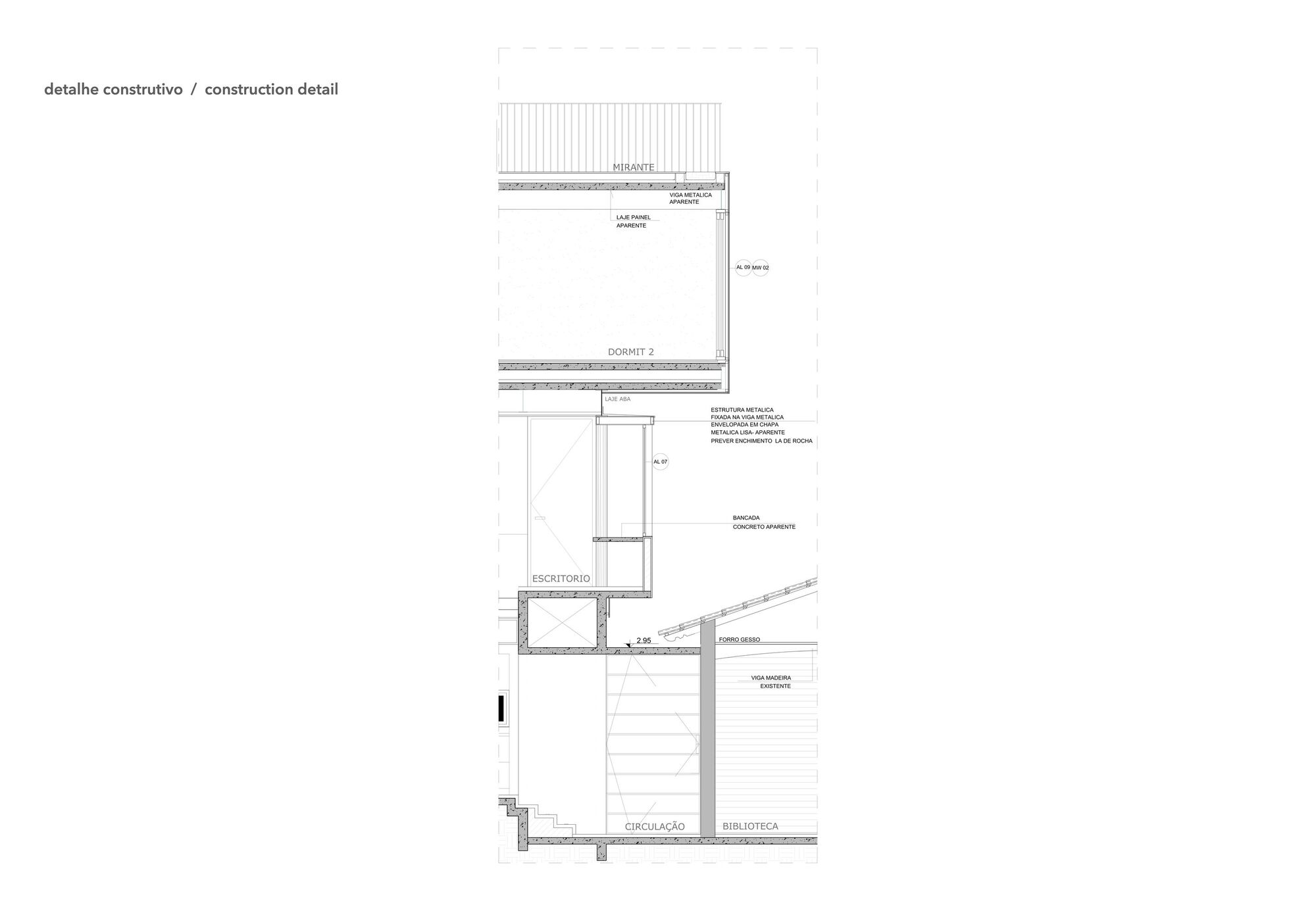
The challenge for the firm was to create a new residence while preserving part of the original house, meeting the program and the client’s needs. To achieve this, a longitudinal axis was drawn to divide the preserved portion of the old house from the new construction. A concrete corridor that both separates and integrates the two wings of the house.
The new wing was built with a steel structure and spans three floors, in addition to an observation deck, ensuring spacious, integrated areas with good sunlight, cross-ventilation, and framing views of the trees.
On the ground floor of the original house, completely restored, are the TV room with a fireplace, the library, and the main kitchen. In the new wing, the living and dining areas, along with a second kitchen, are oriented toward the pool, which now takes center stage. The living room and the pool are connected by a small grandstand.
The first floor houses the master suite, and the mezzanine contains the office. On the roof, the space is divided between a pantry, a hot tub, a guest room with a view of a large sibipiruna tree, as well as a garden and a solarium, offering a tranquil retreat with a strong connection to nature. Above the bedroom, the observation deck stands out, providing privileged views of the surroundings.
On the ground floor, at the end of the concrete axis, is the annex, which houses the service area. In the same block are the pool lounge and a guest room, completing the functional program of the house.
The two wings contrast but complement each other. The original one-story house is marked by white tones, brick textures, roughcast walls, and the warmth of wood in the floors and beams, creating cozy environments with framed views of the garden. The new wing, with its steel structure and black cladding, features cold floors and large integrated spaces that directly engage with the exterior.
The project seeks to balance the preservation of the house’s history with the pursuit of comfort and modernity, creating a space that respects the past while adapting to the needs and lifestyle of the contemporary world.
Project gallery
客服
消息
收藏
下载
最近



















































