查看完整案例

收藏

下载
这座公寓位于东京郊区的住宅区。设计初期,每个租赁单元的面积为40至60平方米,适合1至2人居住(1LDK至2LDK;L:Living room; D:Dining room; K:Kitchen)。建筑规模是基于每个单元配备1.5个停车位的前提来考虑的。由于场地北侧有一条道路,停车场将设置在北侧,而建筑则布置在南侧。然而,根据这些条件得出的建筑体量过于庞大,无法与周围住宅区的规模相匹配。在常规设计中,住宅单元通过单元墙进行分隔,入口门则用于划分公共区域与私人空间。但这种方式会固定建筑的体量,通过划分单元让每个空间都变得封闭。周围的住宅区北侧有房屋,南侧则是开放的花园,具有集体主义特征。每栋房屋通过花园相互连接,形成松散而非固定的联系。那么,能否借鉴这种布局方式来设计一个住宅小区呢?这并不是通过自上而下划分体量来进行规划,而是通过自下而上的方式,收集各个部分进行组合。建筑师尝试了“集体住宅”的设计方式,借鉴了住宅区的整体形式。
This is an apartment house built in a residential area in the suburbs of Tokyo. At the beginning of thedesign, each residential unit of the rental housing was 40-60m2 for 1 to 2 people (1LDK to 2LDK), and thescale of the building was examined assuming that there will be 1.5 parking lots per unit. Since there is aroad on the north side of the site, a parking lot will be placed on the north side and buildings will be placedon the south side. However, the volume of the building, which was derived from the conditions, was solarge that it did not match the surrounding residential area. In the usual design, the unit walls are used todivide the dwelling units, and the entrance door is used to divide the common area and the occupiedarea.However, this method leaves the size of the building, and by dividing it, each one is closed. It will befixed. The surrounding residential area has a house on the north side of the site and opens to the garden inthe south. It has a format for gathering as a whole. Each house is loosely connected through the gardenand is not fixed. Is it possible to make a housing complex by citing this format? It is not a top-down planthat plans by dividing volumes, but a bottom-up plan that collects parts. I tried “collective housing” which quoted the form of residential area.
▼项目外观,exterior of the project ©Kazuyasu Kochi
▼屋与屋之间的空隙,the gap between the buildings ©Kazuyasu Kochi
所有住宅单元都朝南开放,并并排布置,屋与屋之间有空隙。从每个住宅单元的内部看,可以透过空隙看到南侧单元的外墙,空隙的分隔感比边界墙更为明显。通过利用前后单元屋顶的高度差,光线得以进入,单元之间互相补充。空隙被设计成面向下一个房屋的花园,避免直接朝向下一个单元。邻近房屋的另一侧有公园、步道、河流等自然景观,向更远处延展。(*参见布局图)在中心区域,有一条内街道,住宅单元的屋檐交叠,形成一个公共空间,既能遮雨,又能引入光线和空气。山墙屋顶的形状和颜色,以及外墙的颜色,借鉴了周围房屋的风格。通过引用并调整住宅区的设计,建筑师创造了既普通又非凡的景观。建筑师认为,建筑与周围环境的连贯性使得这个方案能够在现场展开,而不需要完全封闭。
▼场地平面,site plan ©kochi Architects Studio
All the dwelling units were opened to the south, and they were arranged side by side with the void betweenthem. From the interior of each dwelling unit, the outer wall of the dwelling unit on the south side is seenthrough the void space, and it is divided by the outer wall rather than the boundary wall. By takingadvantage of the height difference between the roofs of the front and rear dwelling units, the light from thesky is taken in and the dwelling units complement each other. The void is arranged to open in the gardenof the next house to avoid opening directly to the next house. There is a park, promenade, river and otherlush landscape on the other side of the neighbor’s house, which opens to a landscape a little furtheraway. (* Refer to the layout diagram) In the center, there is an internal alley where the eaves of the dwellingunit overlap, which serves as a common area to prevent rain while taking in light and wind. The shape andcolor of the gable roof and the color of the outer wall are quoted from the surrounding houses. By citing and editing a residential area, we can create an ordinary but extraordinary landscape. I thought that the fact that the architecture has a continuous form with the surroundings would allow the scheme to open without being completed on the premises.
▼一层空间,ground floor space ©Kazuyasu Kochi
这座建筑试图打破传统的“建筑盒子”,为人们创造更开放的空间。这座住宅小区通过在单元之间流动的光线和通风,连接了周围的社区。通常的设计中,郊区公寓是通过将多个住宅单元的“盒子”堆叠在一起,将小的单元塞进大的框架里形成的。结果,空间被割裂,地方之间的关系消失,单独的空间变得狭小且封闭,失去了多样性。新冠疫情让我们有了更多的时间呆在家中,暴露出原本为了提高功能性而划分的空间,反而变得单调乏味。丰富的空间不是通过划分来固定的,而是能够随时间的不同而变化,无论是变大还是变小。建筑师认为,空间的大小取决于如何使用它,它不应该被固定化。此外,原本设计为供人们聚集的大房间也变得没有用处,反而需要的是一种流动性和柔性空间,在这种空间里,人们能保持适当的距离,又能相互联系。建筑师认为,分隔空间与统一空间不应被固定化,它们应当在一个渐进的过程中保持连续,人们可以自由选择自己的位置。这座建筑通过空隙获取了松散的邻近关系,而非住宅单元之间的固定相邻。
This architecture is an attempt to free from the architectural box for humans. This housing complex is abuilding that connects the surrounding towns by allowing light and air to flow through the spaces betweenthe units. In general design suburban condominiums have been made by gathering boxes of dwelling unitsand packing small boxes inside large boxes. As a result, the spaces were divided, the relationships betweenthe places disappeared, and the individual spaces were narrowly completed and lost their richness.COVID-19 gives us more time to spend at home. It was revealed that the space that was divided to functionefficiently is a boring space that does not change. A rich space is a space that is not fixed by division. Ithink that the size of the space changes depending on how you spend your time, whether it is smaller orlarger. In addition, large rooms that are planned on the premise of people gathering are useless, and thereis a need for prose and fluid spaces where people are gently connected while maintaining an appropriatedistance. I think that it is important that the divided space and the united space do not become fixed and that they are continuous in a gradient and people can freely and freely choose their whereabouts. This architecture is able to obtain a loose adjacency via voids rather than a fixed adjacency of dwelling units.
▼强调流动性的柔性空间,emphasize the fluid of the flexible space ©Kazuyasu Kochi
▼空隙之间的流动与光影,the accessibility and shadow between the gaps ©Kazuyasu Kochi
▼对空隙的处理,between the gaps ©Kazuyasu Kochi
此外,通过借鉴周围住宅区的景观来设计这座建筑,使得这座建筑的体量有可能超越场地的边界。设计通过采纳周围住宅区单元的大小与形状、屋顶和外墙的颜色,以及南侧花园与北侧房屋的布局,创造了一个与周围景观相连接的公寓群。在一般的城市规划中,土地被划分为道路和私人土地,而私人土地又进一步划分为单独的使用空间。考虑周围环境在建筑设计中并不算什么特别之事,但这项设计的理念是削弱城市规划中划定的边界,创造一个可以与城市环境无缝衔接的开阔空间,建筑师认为它展示了建筑的新可能性。即使是在涵盖众多建筑风格的Dezeen奖项中,建筑师也认为这项作品将展示建筑超越传统单一类型的新可能性。即便建筑的功能发生改变,它的形态依然存在,而这种形态将丰富人类的行为。2020年后,建筑设计进入了一个转折点,我认为人类需要探索新的可能性。
In addition, by designing this building by citing the scenery of the surrounding residential area, the size ofthis building has the possibility of expanding beyond the scope of the site. By sampling the size and shapeof the dwelling units, the color of the roof and outer walls from the surrounding area, and continuing thelayout plan of the residential area with the garden in the south and the house in the north, we created anapartment complex that is continuous with the surrounding landscape. In general design of city planning, aland is divided into roads and private land, and the private land is divided into individual occupied spaces.Considering the surrounding environment is not a special thing in architectural design, but the idea of thiswork is to weaken the boundaries drawn by city planning and create a spacious space that is continuouswith the city from a single building Think that it shows a new possibility of architecture. Even at thisDezeen Award, which has many genres, I think that this work will be a work that presents the possibility ofarchitecture beyond individual building types. Architecture retains its shape even if its purpose is changed,and that shape enriches human behavior. After the corona in 2020, the design of architecture has reached a turning point, and I think humanity needs to explore new possibilities.
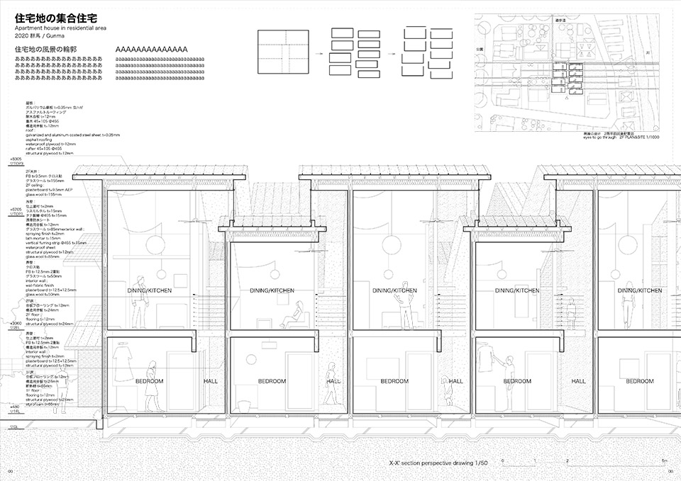
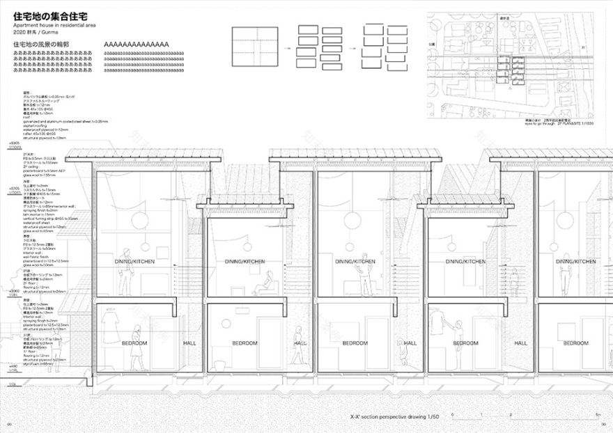
▼剖透视,perspective section ©Kazuyasu Kochikochi Architects Studio
客服
消息
收藏
下载
最近


















