查看完整案例

收藏

下载
Milada小屋坐落在美丽的山坡上,位于Krkonoše山脉中名为Nové domky区域的边缘。它在城市规划和视觉上都遵循了周围小屋分散发展的模式。建筑形状简单,基于经典的山地小屋形式——一个矩形平面,水平安置在坡地上。建筑的体量由一层立方体结构组成,上面覆盖着一个带阁楼的山墙屋顶。
The cottage is situated on a beautiful plot on a hillside at the edge of an area called Nové domky (New Houses) in the Krkonoše Mountains. It follows the scattered development of the surrounding cottages both urbanistically and visually. The shape of the building is simple, based on the classic form of a mountain cottage – a rectangular floor plan horizontally set into the slope. The volume of the building consists of a lower floor cube complemented by a gable roof with upper floors.
▼小屋外观,exterior of the cottage ©BoysPlayNice
小屋作为短期出租的居住空间,每层楼的布局分为两个主要单元。下层除了入口和必要的设施外,还包含了主要的生活区,包括厨房和餐厅。上层设有卧室,用于休息和睡觉,并配有必要的卫生设施。屋顶的最上层是一个卧铺区,每个区域通过与主卧室分开的楼梯连接。在冬季,您可以直接从下层前往旁边的滑雪坡。
▼一层平面,ground floor plan ©ADR
The cottage is designed as a short-term rental property. The layout is divided into two main units per floor. The lower floor, besides the entrance and necessary facilities, contains the main living area with a kitchen and dining room. The upper floor features bedrooms for rest and sleep with necessary sanitary facilities. The uppermost part of the roof accommodates a sleeping floor, each connected by a separate staircase from the main bedrooms. In winter, you can directly go to the adjacent ski slope from the lower floor.
▼客厅的壁炉,the fireplace in the living room ©BoysPlayNice
▼餐厅及厨房,dining area and kitchen ©BoysPlayNice
▼厨房,kitchen ©BoysPlayNice
▼餐厅,dining area ©BoysPlayNice
▼面向山景的餐厅,dining area facing the Mountain View ©BoysPlayNice
▼木质楼梯,wooden staircase ©BoysPlayNice
建筑的建造选择了经典的方式——砖墙结构,木制屋顶和梁式天花板。户外扩建部分带有遮蔽入口,采用裸露混凝土材料。
For the construction of the building, a classic method was chosen – a brick wall structure with a wooden roof and a beamed ceiling. The outdoor extension with covered access is made of exposed concrete.
▼木质楼梯,wooden staircase ©BoysPlayNice
▼木质楼梯,wooden staircase ©BoysPlayNice
▼上层走廊,corridor on the upper level ©BoysPlayNice
▼卧室,bedroom ©BoysPlayNice
▼卧室,bedroom ©BoysPlayNice
▼通往阁楼的楼梯,staircase towards the attic ©BoysPlayNice
▼阁楼区域,the attic space ©BoysPlayNice
▼桑拿房,sauna ©BoysPlayNice
▼浴室,bathroom ©BoysPlayNice
混凝土部分被部分引入室内,其中一根内部混凝土柱将生活区与餐厅区分开。室内设计采用了木质饰面的家具,家具材料为轻度漂白的云杉木、黑色扶手椅、棕色椅子和不锈钢厨房设备。下层采用木地板,并局部使用水泥砂浆和地毯。卧铺区大多铺设了地毯。楼上的家具与楼下相同,也是由漂白过的云杉木制成。
Concrete is partially incorporated into the interiors, where an internal concrete pillar separates the living area from the dining room. The interior is complemented by wooden cladding and furniture made of lightly bleached spruce wood, black armchairs, brown chairs, and a stainless-steel kitchen. The lower part has a wooden floor with localized use of screed and carpets. The sleeping floor is mostly carpeted. The furniture upstairs, like downstairs, is made of bleached spruce wood.
▼夜景,night view ©BoysPlayNice
▼场地平面,site plan ©ADR
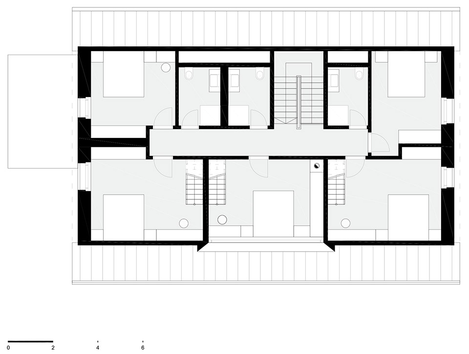
▼二层平面,first floor plan ©ADR
▼三层平面,second floor plan ©ADR
▼立面,elevation ©ADR
Studio:ADR
Author: Aleš Lapka, Petr Kolář
adr@adr.cz petra.lomnicka@adr.cz
Studio address:Libínská 3127/1, 150 00 Prague, Czech Republic
Co-author:Pavel Čermák
Design team:Markéta Tkáčová, Filip Strnad
Project location: Horní Malá Úpa
Project country:Czech Republic
Project year: 2019
Completion year: 2023
Built-up area: 221 m²
Gross floor area: 362 m²
Usable floor area: 283 m²
Plot size: 976 m²
Client: AFN Real Estate
Photographer:BoysPlayNice
客服
消息
收藏
下载
最近







































