查看完整案例

收藏

下载

翻译
Architects:Correia/Ragazzi Arquitectos
Area:3444ft²
Year:2023
Photographs:Arménio Teixeira
Lead Architects:Graça Correia e Roberto Ragazzi
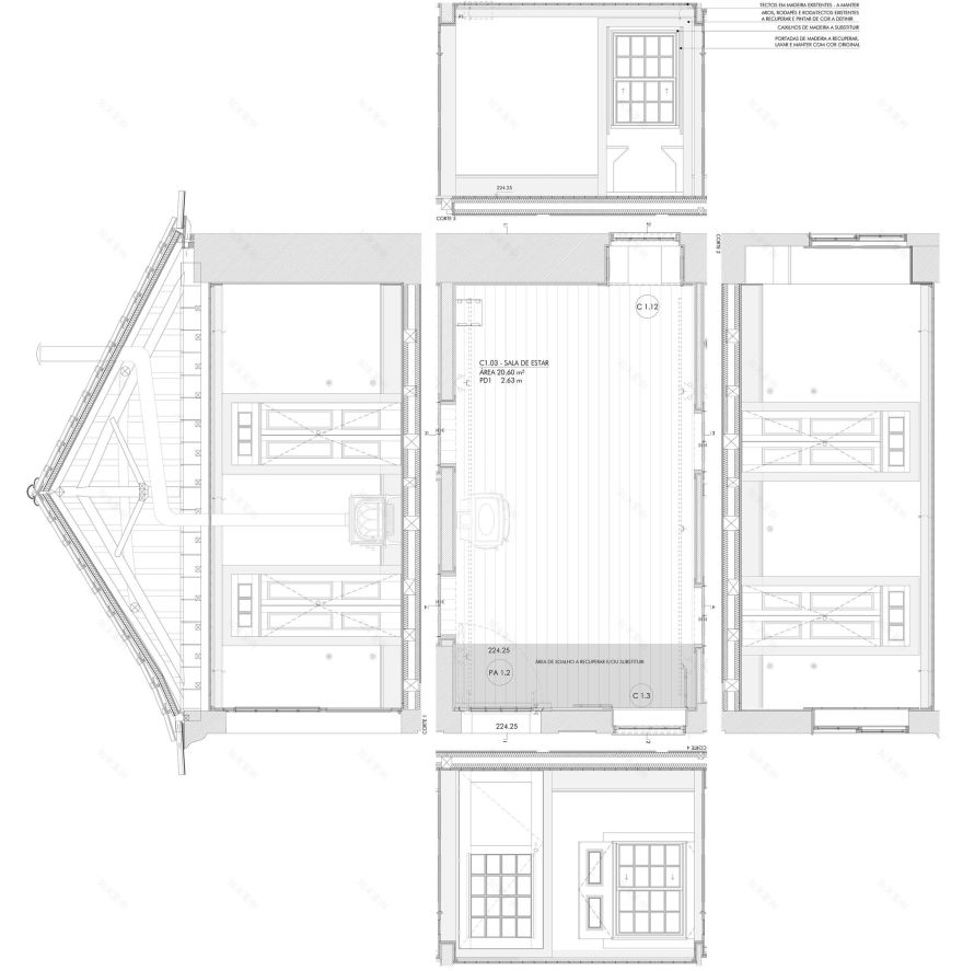
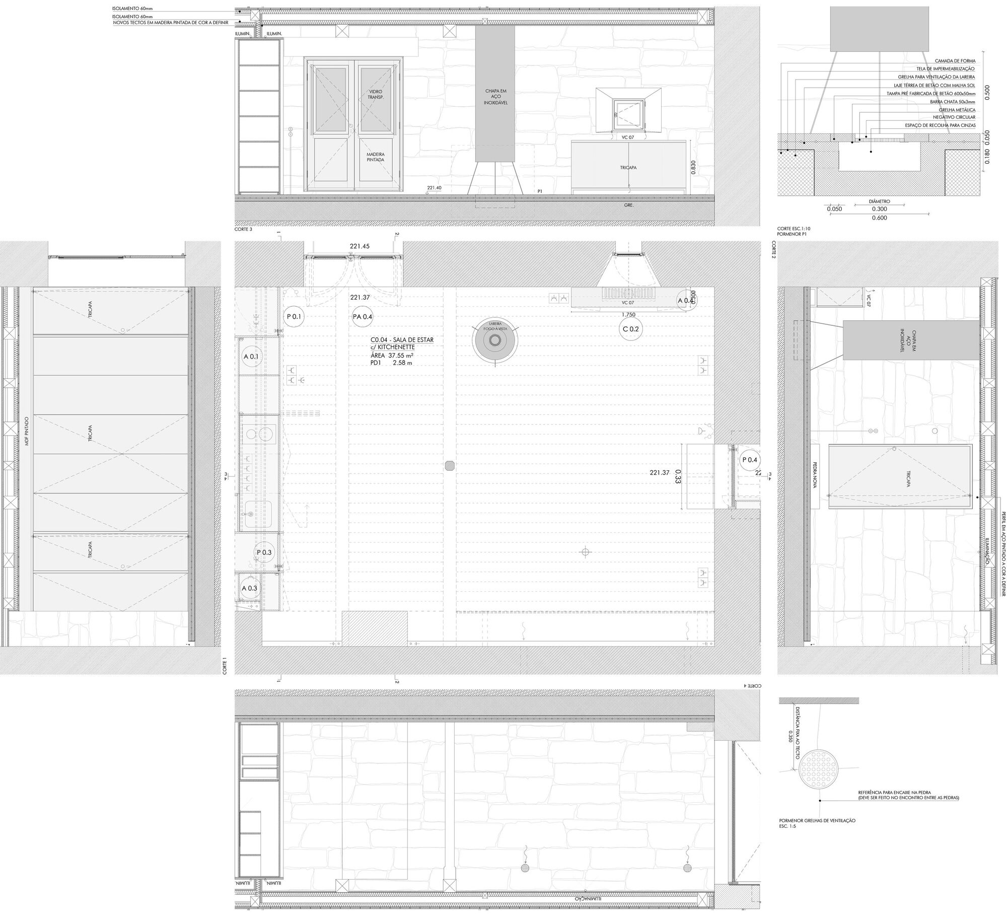
Program:Rehabilitation of a manor house with a baroque chapel
Country:Portugal
Text description provided by the architects. Quinta de Velude is situated on a hillside facing the River Douro. Abandoned for 40 years, the Quinta stands out for its extraordinary history and its manor house with a baroque chapel. Since the Quinta and its manor house have remained abandoned, its authenticity has never been distorted. Because of this abandonment, the Quinta became completely isolated and forgotten, and its heritage value, which its history alone would justify, has never been identified. In the 14th century, the Quinta was attributed to the Morgados de Velude as an honour whose original extension led to the River Douro. Since then, it has belonged to the family and the first known will is of the noblemen Vasco Esteves de Matos and Madalena Gil, the founders of the Chapel of St Anthony (1388).
The Casa de Velude attests to its considerable cultural and heritage value, combined with the discreet beauty of its baroque chapel and the ancestral system of its particular sequential distribution of rooms. This renovation seeks to introduce 21st century comfort requirements while remaining absolutely faithful to traditional values - in its original spatiality, according to Prof Aníbal Costa, it is a very rare example in the country. In his report we read: “The Casa de Velude has a cultural and heritage value that has yet to be written about and researched, beyond the discreet beauty of its Chapel, the beautiful altar and the House, which still contains the very old system of internal organisation of spaces, in which there was no distribution corridor and the rooms were sequential, as character spaces with greater interaction with people outside the family. An internal organisation (...) that also had the function of balancing the temperature and humidity inside the house, in other words, the comfort of the interior, both for heating and cooling, and where natural ventilation was an obligatory complement.”
The Douro green in the oil paintings of the interiors, the reds and ochres in the doors and windows - with their new brown wood, also painted in oil - or the blues of the iron oxide pigments. All these original elements are combined with the contemporary, revealing material and immaterial values in a dialogue between new and old, between tradition and modernity.
The project aimed to restore the existing house, transforming it into a living, socialising and leisure space. The relationship between the heights and heights of the existing façades was maintained and, honouring the morphology of the existing building, the interior spaces were filled with new environments, adapted to today's living conditions and requirements.
The swimming pool was made entirely from recycled granite from a water reservoir whose water had dried up, articulating the comfort of technology in symbiosis with the huge pieces that were dismantled, identified and reassembled; in its singular cut joints, we can see the ancestral knowledge of stonework and, in the tension between these two logics, we find the constructed paradigm of the relationship between the past and the present.
Project gallery
客服
消息
收藏
下载
最近









































































