查看完整案例

收藏

下载
01
予上设计
业主夫妇为了给孩子一个健康幸福的童年,创造一个可以陪伴孩子快乐成长的生活和学习空间,让亲子感情可以更肆意和谐地建立,委托我们设计了这套房子。
家庭成员的互动不应该局限于某一时刻或某一场合,开放式布局,正是这种关系的完美体现。
客厅、餐厅与厨房的无缝连接,打破了单一功能区的界限,使得家庭成员在各自的生活场景中,都能够保持一种情感上的连贯性。
一个灵动多变的书房,以全开放的状态成为公共空间的一部分,设置幽灵门和口袋门的组合方式,关上门之后又可以成为一个独立的私密空间,办公学习,必要时亦可做为独立的卧室使用。
开放式厨房与餐岛一体设计,将原来分界明显的厨房和餐厅又融为一个独立的整体,打破有形的壁垒以及无形的隔阂,形成一个让孩子与父母一起探索人生的迷人场所。
孩子的卧室,一个融入趣味元素,充满探索和想象的“秘密空间”,也是属于她自己的舞台,更是父爱母爱的一种无声地传达!
家,不只是外在的结构,更是每一个家庭成员内心世界的投影。
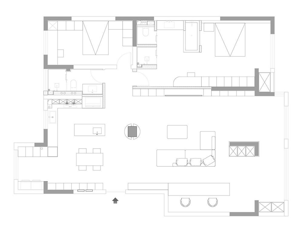
平面图
设计机构: 予上设计
主案设计:胡星
空间摄影:邓俊涛
02
東亼设计
本案位于位于常州市蔚蓝天地,新婚夫妻两人居住还养有两只小猫,接受开放式的公区空间,希望家是一个温暖的栖息地。
通过公区多余墙体的拆除改变原有封闭的空间,使餐厅、客厅、阳台视线相互渗透营造出开阔的空间感受。
客厅顶面两侧做了斜顶的处理,既解决设备出风问题又弱化梁位保证层高的同时丰富空间层次。
阳台底部放置猫爬架作为小猫的娱乐空间,使人与猫在公区共享一片宁静的天地。
通过打开餐厨空间形成环形动线营造出自由灵动的空间氛围,开放式的餐厨空间与客厅视线相互渗透形成互动。
主卧空间通过洗手台和浴缸的开放处理扩大活动面积,浴缸和床品区分隔的墙体通过低位的开口设计,使两侧空间形成互动。
平面图
项目位置:中国 常州
空间设计:東亼设计事务所
主案设计:成森
建筑面积:168㎡
项目摄影:生辉
客服
消息
收藏
下载
最近
















































