查看完整案例

收藏

下载

翻译
Architects:Concreta Gestión Urbana S.A.S.,Julian Gámez,TRACO Estudio de Arquitectura
Area:193750ft
Year:2022
Photographs:Jose Luis Cano
Lead Architects:Arq.Juan Carlos Bohórquez, Arq. Javier Romero Ávila, Arq. Julián Gámez
Architectural Design And Drawing Support:Sergio Sánchez
Support For Standard Analysis And Procedures:Jennifer Mayorga Lamoureux
Support For Valuation Study:Margarita Coronado Barragán
Architecture Student:Juan Sebastián Acero
Economist:Nidia Acero
Promoters And Constructor:Ecotek Construcciones S.AS
Structural Design:AIC Aycardi Ingenieros Civiles SAS
Technical Supervisor:AIC Estructuras y Construcciones S.A.S.
Archaeology:Fundación Erigaie
Soils:Alfonso Uribe & CIA
Electrical Design And Communications:Electro Ingenieria Colombiana
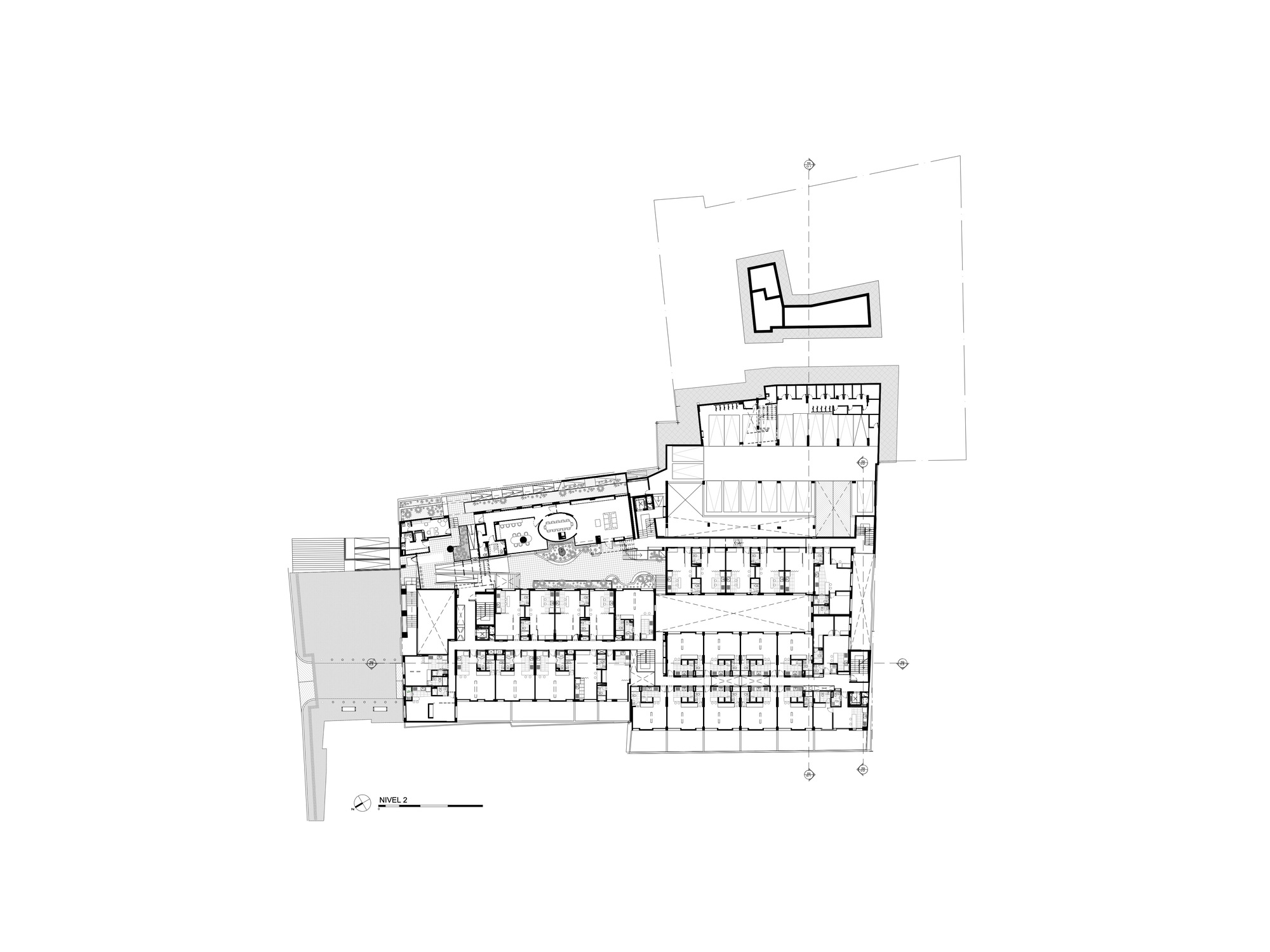
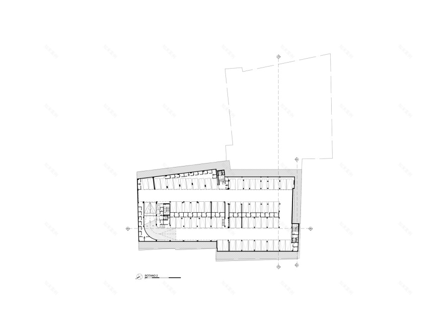
Program / Use / Function Of The Building:273 housing units (apartments between 29 m2 and 60 m2), communal areas (Teatrino, Coworking, Gym, Nursery, Laundry, Wet Areas, Terraces, Patios and Gardens, Administration...), 5 commercial premises and parking for vehicles and bicycles.
Country:Colombia
Text description provided by the architects. In the Santa Bárbara neighborhood south of the historic center of Bogotá, the Belén hermitage and the adjacent seminary were built at the beginning of the 20th century, where the community of Montfortian Fathers have been exercising a social and missionary role ever since. The multi-family housing complex Montfort Suites is located on a 4,000 m² lot in a block delimited by Carreras 3 and 4 and Calles 6B and 6D, a culturally interesting sector of La Candelaria, and responds to the initiative to revitalize downtown Bogotá and the repopulation policy of the city's District Administration.
The architectural proposal adapts to the irregular urban context of the Santa Bárbara and Belén neighborhoods in a rectangular and elongated block, a transition between the grid of La Candelaria and the surrounding rural areas. The irregularity of the urban fabric of the area generates a unique spatial experience with narrow alleys and cut-off views; These are incorporated into the project by creating large courtyards, connected by alleys and hallways that extend the life of the neighborhood inwards.
The project respects and integrates the architecture and the historical and symbolic character of its urban context. The façade on Calle 6D is set back on the first floor with a portico that serves as a transition between the public square along with the Belén Church and the interior space. Similarly, the access from Carrera 3 is adapted to the topography with a double-height portico. These elements help to consolidate a pedestrian environment and a transition between the public and the private.
The façade of the building was designed incorporating the aesthetic, historical and symbolic values of the neighborhood, with floor-to-ceiling windows and a façade configuration that highlights proportion, rhythm and tones. In addition, some apartments have balconies that extend the living spaces to the outside.
The project not only addresses the demand for housing in the city center, but also contributes to the economic reactivation and consolidation of the social fabric. It houses state workers, students and tourists, activating services and businesses in the neighborhood. The covered porticos that give access to commercial premises have become meeting points for residents, visitors and neighbors. The commercial offer and some communal services such as a theater and playroom contribute to the well-being of residents and to integration with the neighborhood.
Most of the housing blocks are organized in double bays and are aligned in a north-south direction to ensure adequate ventilation and natural sunlight. In addition, they adapt to the sloping topography of the foothills in four floors distributed over eight levels, including two basements for parking. The 273 housing units are distributed in a staggered pattern given by the topography of the lot and the local regulations of a maximum height of 10 meters, which favored a wide range of apartment types, some with balconies or terraces, and varied views towards patios and the city landscape.
Project gallery
客服
消息
收藏
下载
最近































