查看完整案例

收藏

下载
“MSLAN corner”是退化建筑为服装品牌MSLAN设计的全新街铺模型。因处在一个街区的街角,这家店在设计上考虑了与街角的特殊关系,退让出一个小小的、供人休息的口袋“公园”。
“MSLAN corner” is a new street shop model designed for the clothing brand MSLAN by DEVOLUTION. Because it is located at the corner of a block, we have considered its unique relationship with the street in the design, giving way to a small pocket park for people to rest.
▼项目外观,exterior of the project ©邹训楷
▼外摆区域,outdoor dining area ©邹训楷
▼入口区域,entrance area ©邹训楷
店内以 “工作室开放日 openday ”为出发点,它由自然的松木为主要基底,制造了一个工作室主人外出的轻松场景。“创作者工作室”是一个独处空间、个人创作场域、会客区域多位一体,并杂糅着个人审美、家具品味、兴趣爱好、生活趣味、收藏品,和个人创作元素的空间,它松弛,充满个人色彩,沉淀着良好的品味。既私人化也有开放感。为MSLAN在原本的服装零售的基础上,融入杂货、咖啡提供了场景语境。
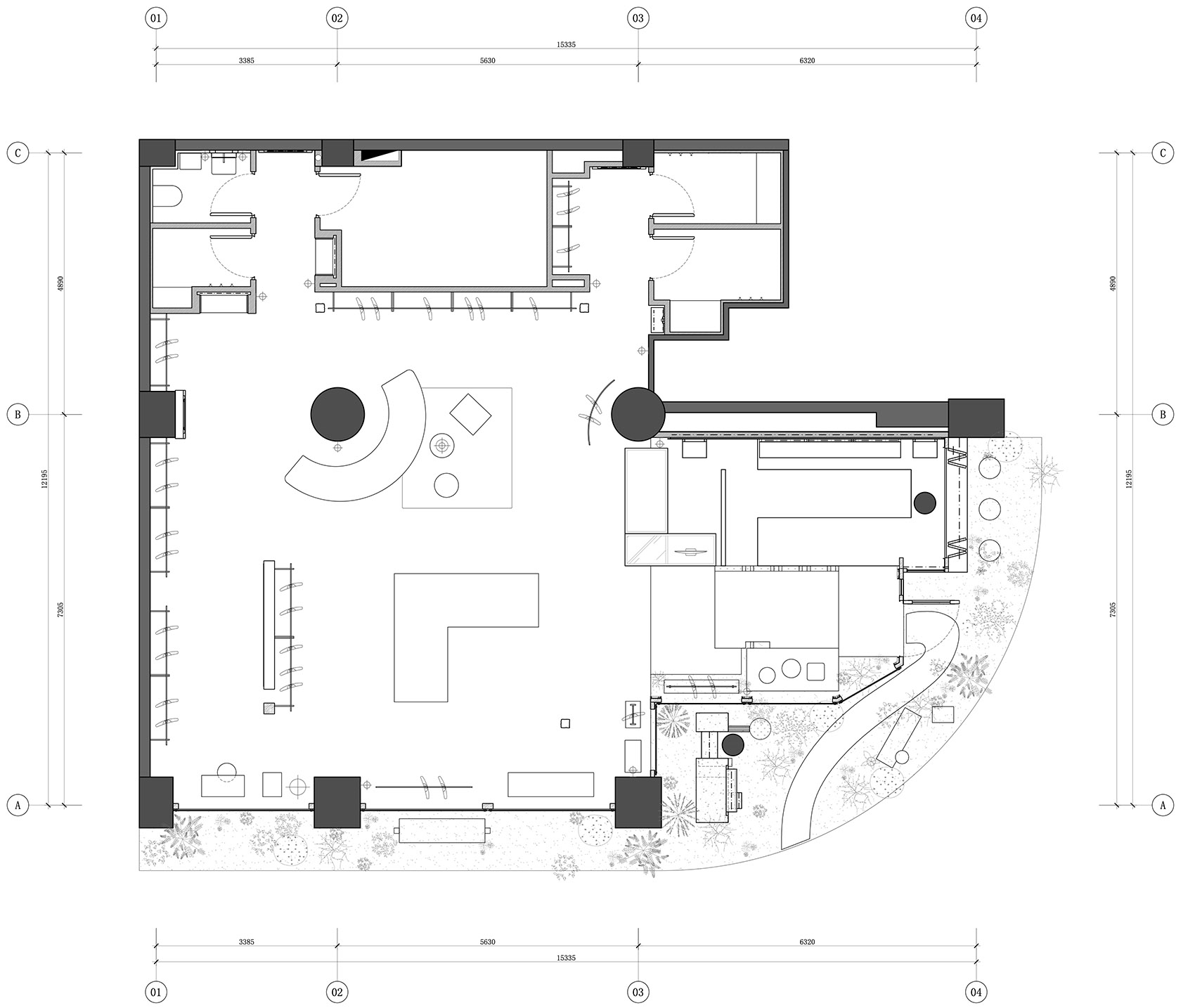
▼平面图,plan ©退化建筑
We take “Studio Open Day” as its starting concept, using natural pinewood as the main material to create a relaxing scene that evokes the feeling of the studio owner being away. The “Creator’s Studio” is a multifunctional space that integrates solitude, creative site, and a meeting area. It blends personal aesthetics, furniture taste, hobbies, life interests, collectibles, and elements of personal creation. The space is relaxing, full of individuality, and exudes refined taste. It is both private and open in nature. This concept provides a contextual setting for MSLAN to incorporate lifestyle goods and coffee into its original fashion retail model.
▼制造了一个工作室主人外出的轻松场景,
create a relaxing scene that evokes the feeling of the studio owner being away ©邹训楷
▼既私人化也有开放感的空间,both private and open in nature ©邹训楷
▼由自然的松木为主要基底,using natural pinewood as the main material ©邹训楷
▼零售区,retail area ©邹训楷
在未来,不同的“创作者” (或MSLAN的不同系列)也将为这个“工作室”提供不同的内容可能性。 同时,作为一家新型街铺,MSLAN也在积极思考街铺的社区功能。除了是一家店,“MSLAN corner”在 未来也会提供更多的社区便民服务。 这是MSLAN在这个街角的第10年,通过这个全新的形象,“老朋友”MSLAN也在积极思考街铺的社区功能,让自己成为一个“新邻里”。
In the future, different “creators” (or various MSLAN collections) will bring diverse possibilities to this “studio.” Meanwhile, as a new type of street shop, MSLAN is also actively exploring the communal functions of such spaces. Beyond being a store, “MSLAN corner” will also offer more community services in the future. Celebrating its 10th year at this street corner, the “old friend” MSLAN is reimagining itself with this fresh new identity, aiming to become a “new neighbor” in the neighborhood.
▼从室外望向室内,look into the indoor space from outside ©邹训楷
▼傍晚街景,street view at dusk ©邹训楷
▼立面,elevation ©退化建筑
项目名称:MSLAN corner
项目面积:180㎡
项目地点:中国福建省厦门市思明区禾祥东路12-13号
项目完工时间:2024年11月
主创设计:汤建松、王琦
设计团队:蔡蔡、龙涛
摄影:邹训楷
施工单位:如林装饰
装修主材:不锈钢 混凝土 松木
Project name: MSLAN corner
Design: DEVOLUTION退化建筑
Completion Year: 2024
Project location: Xiamen, Fujian, China
Main design: Tang Jiansong, Wang Qi
Design team: Caicai, Longtao
Gross built area: 180 ㎡
Photo credit: Zou,Xunkai
Partner: Construction Team: Rulin Deco
Materials: Concrete, Stainless steel, pinewood
客服
消息
收藏
下载
最近






















