查看完整案例

收藏

下载
01
宏福樘设计
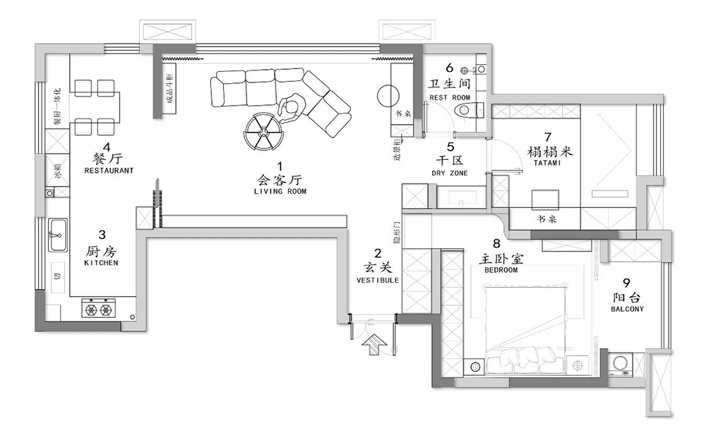
此住宅拥有难得一见的入户独立走廊,但与内部区域无任何互动关联性,客餐厅采光也因此不太丰沛。
设计时,索性将其全部纳入,9.3m的玄关长度通通改造为落地窗户,香格里拉帘很好的将光线过滤引入。
原始内部6.5m横厅格局,让客餐厅尺寸过于拥挤,在玄关纳入后,以不可拆除的承重墙为点,定制岛台连接餐桌一体,直接将餐厅位置移换,与整个公区之间形成功能与景观互融的布局状态。
外部独立玄关纳入后,为空间引入丰沛的自然光线,一扫原格局的内部阴霾气氛。餐厅位置变动后,给予客厅更充足的使用面积。
原木色自然的温暖舒适,而黑色则增添稳重深度,搭配中形成鲜明的对比,提升整体的空间的格调质感。
低饱和度的黑白灰融合嵌入式的暖光光源搭配出温馨舒适而又富有质感的卧室睡眠氛围。
主卧卫生间干湿分离后,为夫妻定制双盆洗漱台,两人可同时使用,提升日常效率与舒适感受。
平面图
项目地址:成都
设计机构:成都宏福樘设计
02
巴克空间设计
房屋整体以黑白色调为主,呈现现代风的装修风格。
进门首先是由书桌搭配柜子组成的玄关,玩偶的搭配增添了几分温馨与俏皮。
客厅配有整面墙的落地窗,充足的光照让室内明亮通透。顶面圆形的轨道灯搭配无主灯的设计,使整体氛围更加融合。
沙发旁边配有复古风的咖啡台,放置着咖啡机等,方便业主准备和调制咖啡,享受惬意时光。
三联动的玻璃门巧妙地分割了客厅空间跟餐厅空间,嵌入式的岛台节省了餐厅空间,搭配开放式的厨房,餐厅和厨房的利用空间大大增加。
主卧推门进去,映入眼帘的是弧形造型呈现的小景观,黑白的色调搭配木饰面共同组成了床头背景墙,营造出舒适且具有质感的睡眠环境。
次卧以榻榻米搭配书桌,合理地利用了小空间,功能性与美观性兼具。
平面图
项目地点:山东
设计机构:巴克空间设计
项目摄影:隐像筑影—华子
客服
消息
收藏
下载
最近








































