查看完整案例

收藏

下载
案例信息
案例风格 | 现代简约
案例面积 | 120㎡
案例户型 | 三室两厅
案例来源 | 锦华装饰
BEHIND STORY:
本案是一套 120 平的精装修改造设计,男主人平时工作休闲之余喜欢居家生活,是一个有品质,且享受家的安逸的人。
整体风格设计选择现代简约风,浅白的杏色作为主基调,黑色和原木色搭配点缀,使空间明亮舒适,墙面的米咖色,冷暖调配色让整个空间呈现出简洁、安静、素雅的感觉。
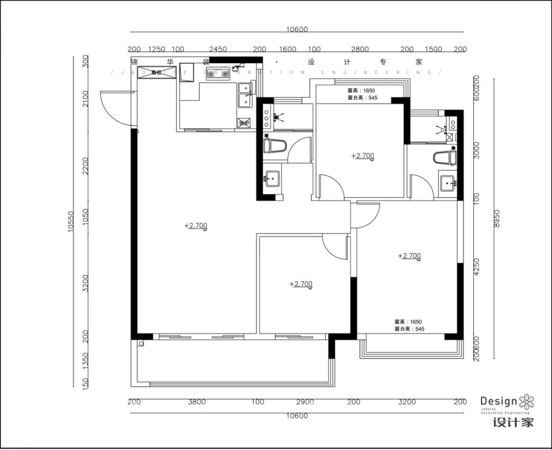
Planning
户型图
01• Entrance 入户处 -
入户处做玄关柜,中间留白部分及底部都有灯带,高级又实用。
•
02 Livingroom 客厅
少量的暗色搭配大面积的浅色,与自然天光共同营造舒适和简约感。石材的清冽冷峻,金属的精致,奏响一场高品质的舒适家居空间。
客厅的无主灯设计,采用交错手法,搭配光源衍生出空间的情绪。
03• Dining room 餐厅
白色的石台餐桌、杏色的软皮餐桌,一深一潜,刚柔并济。餐边柜利用色块收纳储藏空间,黑色镜面柜门和实木灰色柜门,虚虚实实,化解了餐厅墙面的厚重感,侧旁衍生出的镜面展示空间,达成一种视觉上的重轻平衡。
• 04
Balcony
阳台
阳台选择灰色无把手储物柜搭配白色台盆,简约干净。生活阳台和休闲阳台共处,收纳有序,整洁美观。
05. Kitchen 厨房
厨房干净简约,没有任何多余的造型,柜门干净简约,搭配白色的石材台面。美观与实用兼具。
•
06Toilet
卫生间
卫生间调整成干湿分离的布局,空间最大化利用,方便一家人的使用。
07• Bedroon 卧室
卧室看上去就非常的柔软舒适,浅灰木色的半高护墙床头面板,搭配杏色的面板,非常适合睡眠空间。
• 08 Cloakroom 衣帽间 -
衣帽间以定制柜搭配书桌为主,定制柜做了大面积的玻璃陈列展示区,搭配金色的金属门把手,精致且简约。
09•
Study
书房
以定制柜体填充细碎结构,大面积的镜面展示区域,实虚结合,搭配灯带,这个空间满足了储存、陈列、阅读、工作和娱乐的需求。延续整个家的深木色和浅杏色低调的气质,构筑起一个自由与松弛感的个人天地。
26 年放心家装
锦华初心不改
无论是过去,现在或是未来
放心家装路上
锦华始终与你同在!
还可领取实景作品集喔
13773168019
客服
消息
收藏
下载
最近





















